Ce bien a été vendu par Grégoire
Appartement de 92.7 m² à Paris
Ce bien est vendu
19 photos
Plan 2D

Coup de coeur / Appartement en dernier étage 93 m2 - 3 ch / Cité d'Angoulême 75011 Paris

Cité d'Angoulême, Paris - 4 pièces - 92.7 m² - 3 chambres

Voir la localisation

1 040 000 €

11 219 € / m²
Ce bien est vendu
19 photos
Plan 2D

Coup de coeur / Appartement en dernier étage 93 m2 - 3 ch / Cité d'Angoulême 75011 Paris Voir la localisation

Cité d'Angoulême, Paris - 4p - 3c - 92.7 m²

1 040 000 €

11 219 € / m²
Votre expert immobilier
Expert Hosman Grégoire
Prix de mise en vente 1 040 000 €
Type de bien Appartement
Surface Carrez 92,7 m²
Surface au Sol 94,12 m²
Étage 3 sur 3
Période de construction Avant 1850
Nombre de pièces 4
Nombre de chambres 3

Prestations

Cave

L'œil de l'expert

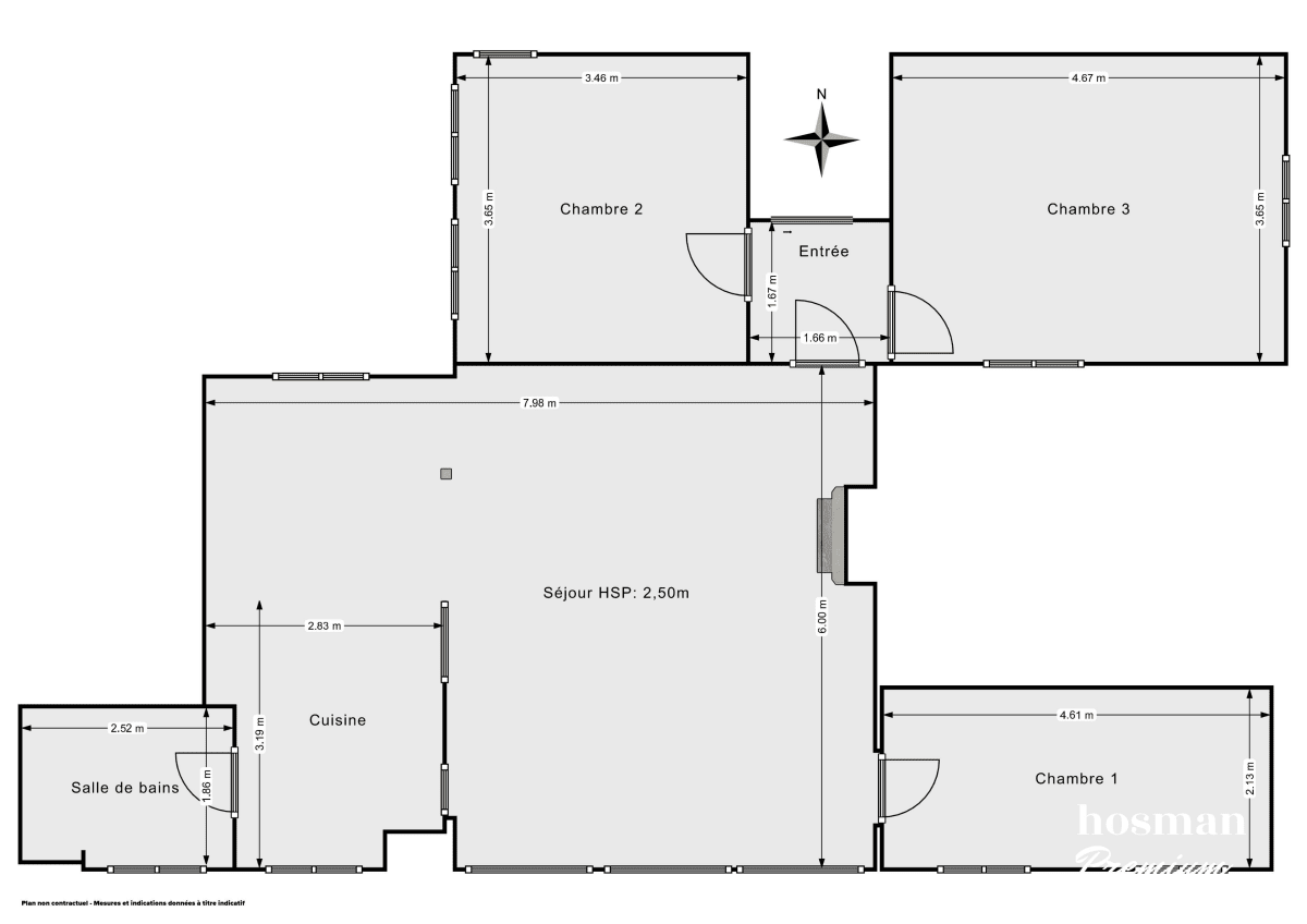
Hosman vous propose à la vente ce magnifique 4 pièces rénové par architecte, d'une surface de 92,70 m2 loi Carrez (94,12 m2 au sol), situé Cité d'Angoulême à Paris.

L’appartement, comme une maison sous les toits, est au 3ème et dernier étage sans ascenseur (l'entrée se fait au 2ème étage par un escalier privé) d'un immeuble historique, un ancien théâtre.

Le bien, calme, baigné de lumière et avec très peu de vis-à-vis, se compose comme suit.
Un grand espace de vie de 45 m2, donnant à la fois sur la Cité d'Angoulême et sur cour, avec :
- un séjour de 28,48 m2 traversant Est-Ouest et lumière zénithale grâce à des vélux sur le toit. Eléments contribuant au charme de cet espace : poêle à granulés, poutres apparentes, beau parquet, bibliothèque sur mesure, escalier d'entrée pouvant être dissimulé !
- une cuisine semi-ouverte parfaitement équipée et repensée par architecte,
- un coin salle-à-manger faisant le lien entre la salon et la cuisine.
Une salle de bains avec baignoire, double vasque, toilettes suspendues, fenêtre et VMC.
D'un espace nuit, entièrement sur cour, composé d'une première chambre de 12,02 m2 sans vis-à-vis, d'un grand dressing de 3,31 m2, et d'une seconde grande chambre de 16,56 m2 avec une belle hauteur sous plafond de 3,60 m et poutres apparentes.
Une troisième chambre très lumineuse, de 8,58 m2 est accessible du salon.

Un cellier de 5,01 m2 au 1er étage complète ce bien.

Le système de chauffage est individuel au gaz.
Electricité et plomberie refaites il y a 2 ans, chaudière changée.
Autorisation obtenue pour installer une climatisation.

Les charges de copropriété s'élèvent à 710 € par trimestre.
La taxe foncière est de 854 €.
Le bien est soumis au statut de copropriété.

Le bien se situe à 2 minutes à pied du métro Parmentier (ligne 3), 5 minutes du métro Goncourt (ligne 11) ou Couronnes (ligne 2) et 7 minutes du métro Oberkampf (lignes 5 et 9).
La place de la République et le Canal Saint-Martin sont à 10 minutes à pied.
Nombreuses écoles à proximité.

Chez Hosman, on vous évite des appels inutiles, et on vous fait gagner du temps : des annonces exhaustives pour trouver toutes les réponses à vos questions, une visite virtuelle, la prise de visite en ligne au moment qui vous arrange. C'est plus pratique et plus rapide

Hosman s'efforce de réinventer l’agence immobilière en offrant un service innovant et transparent aux acheteurs et aux vendeurs.
Nos frais d'agence sont de 8 900 euros fixes à la charge du vendeur.

Les + du bien

- Dernier étage
- Lumière, calme
- Refait à neuf
- Cellier
- Charme
- Bon emplacement

Nombre de salles de bain 1
Nombre de toilettes 1
Chauffage Individuel - Gaz
Eau Individuel (gaz)
Type de cuisine Semi-ouverte
Exposition du séjour Ouest

Localisation et quartier

Parmentier (à 150 m)
Goncourt (à 450 m)
Rue Saint-Maur (à 450 m)

Financer ce bien

Prix du bien : 1 040 000 €
Frais de notaire indicatifs (7,5%)
Les frais de notaire dans l'ancien sont entre 7% et 8% du prix du bien
: 78 000 €
Montant total à financer : 1 118 000 €
Vos mensualités
/ mois
Taux de marché
Source : creditadvisor.fr - Novembre 2025
À durée égale, les taux varient fortement d'un prêt à l'autre et des critères qui entrent en jeu comme votre profil emprunteur, votre projet immobilier ou la négociation avec les banques.
%
Votre apport
Durée du prêt
ans

Soyez alerté quand de nouvelles annonces correspondent à votre recherche !

Votre expert immobilier
Expert Hosman Grégoire

Vous cherchez un bien ou souhaitez vendre votre bien à Paris 11 ?

Consulter la page de notre agence immobilière à Paris 11

Vous avez un bien à vendre ?
Vous souhaitez vendre un bien immobilier ? N'hésitez pas à contacter nos experts pour effectuer l'estimation du bien immobilier concerné ou réalisez sans plus attendre une première estimation en ligne, totalement gratuite.
Estimation 100% gratuite et sans engagement !
visual product