Ce bien a été vendu par Laurian
Appartement de 82.64 m² à Nantes
13 photos
Plan 2D

Hyper Centre - Appartement Coup de Coeur - T3 de 87.58 m2 - Charme de l'ancien et lumineux - Rue Grétry 44000 Nantes

Rue Grétry, Nantes - 3 pièces - 82.64 m² - 2 chambres

Voir la localisation

370 000 €

4 477 € / m²
Votre agent Hosman

Laurian Malou

01 84 80 61 19


Informations clés

Prix de mise en vente 370 000 €
Type de bien Appartement
Surface Carrez 82,64 m²
Surface au Sol 87,58 m²
Étage 3 sur 5
Nombre de pièces 3
Nombre de chambres 2
Période de construction Avant 1850

Prestations

Cave

L'œil de l'agent

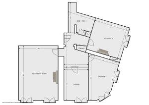
Hosman vous propose à la vente ce 3 pièces d'une surface de 87,58 m2 au sol et 82.64 m2 Carrez, situé Rue Grétry à Nantes.

Cet appartement - mêlant à la perfection le charme de l'ancien associé au confort du contemporain - est situé au 3ème étage sur 4 d'une résidence du début du 19eme siècle, parfaitement entretenue et fraichement ravalée.

Intégralement sur parquet d'époque, et avec une hauteur sous plafond de 3,50 m, il se compose comme suit :

D'une entrée en étoile avec rangements, desservant à la perfection l'appartement, d'une surface de 3,23 m2.
D'un spacieux et lumineux séjour d'une surface de 27,45 m2, exposé Sud Ouest au travers de grande fenêtre en double vitrage.
D'une cuisine séparée, moderne et fonctionnelle de 10,55 m2.
De deux chambres spacieuses, d'une surface de 13,65 et 14,55 m2.
D'une salle de bain, avec baignoire et douche - meuble double vasque et WC, pour une surface de 7,43 m2.

Une cave de 8 m2 ainsi qu'un grenier de 7,50 m2 complètent ce bien.

Le système de chauffage et de production d'eau chaude se fait par chaudière à gaz, annuellement révisée.

Les charges de copropriété s'élèvent à 300 € par trimestre et la copropriété compte 14 lots principaux.

La taxe foncière est de 990 €.

Hosman s'efforce de réinventer l’agence immobilière en offrant un service innovant et transparent aux acheteurs et aux vendeurs.
Nos frais d'agence sont de 4900 euros fixes à la charge du vendeur.

Les + du bien

- Idéalement placé - Hyper Centre Graslin 
- Appartement associant à la perfection le charme de l’ancien au confort du contemporain - Parquet Pointe de Hongrie
- Hauteur sous plafond
- Cheminée de marbre  

- Double plan en étoile - Circulation fluide et agréable 
- Exposition Sud Ouest - Très lumineux 
- Idéal primo accédant
- Bien complet : Cave & Grenier 
- Copropriété saine et sans sujet - Ravalement de façade récent, aucun travaux à prévoir
- Proche de toutes commodités 

Intérieur

Nombre de salles de bain 1
Nombre de toilettes 1
Chauffage Individuel - Gaz
Eau Individuel (gaz)
Type de cuisine Séparée
Exposition du séjour Sud Ouest

Dépense énergétique

Performance énergétique (DPE)

A
B
C
D
213
kWh/m2 par an
E
F
G

Émissions de gaz à effet de serre (GES)

A
B
C
D
43
kg CO2/m2 par an
E
F
G
Votre agent Hosman

Logement très performant : faible consommation énergétique.

Localisation et quartier

<span class="translation_missing" title="translation missing: fr.advert_map_alt">Advert Map Alt</span>

Financer ce bien

Prix du bien : 370 000 €

Frais de notaire indicatifs (7,5%)
Les frais de notaire dans l'ancien sont entre 7% et 8% du prix du bien

27 750 €

Montant total à financer :

397 750 €

Vos mensualités

/ mois
Taux de marché

Source : creditadvisor.fr - Mai 2026

À durée égale, les taux varient fortement d'un prêt à l'autre et des critères qui entrent en jeu comme votre profil emprunteur, votre projet immobilier ou la négociation avec les banques.

%

ans

Soyez alerté quand de nouvelles annonces correspondent à votre recherche !

Photo 1 - Appartement 82.64 Nantes
Photo 2 - Appartement 82.64 Nantes
Photo 3 - Appartement 82.64 Nantes
Photo 4 - Appartement 82.64 Nantes
Photo 5 - Appartement 82.64 Nantes
Photo 6 - Appartement 82.64 Nantes
Photo 7 - Appartement 82.64 Nantes
Photo 8 - Appartement 82.64 Nantes
Photo 9 - Appartement 82.64 Nantes
Photo 10 - Appartement 82.64 Nantes
Photo 11 - Appartement 82.64 Nantes
Photo 12 - Appartement 82.64 Nantes
Plan 2D - Appartement 82.64 Nantes

Vous avez un bien à vendre ?

Vous souhaitez vendre un bien immobilier ? N'hésitez pas à contacter nos agents pour effectuer l'estimation du bien immobilier concerné ou réalisez sans plus attendre une première estimation en ligne, totalement gratuite.

Estimer mon bien

Estimation 100% gratuite et sans engagement !

visual product
Découvrez La Boussole,
le point immo par Hosman.
Recevez un décryptage du marché et des conseils d'agents pour vous guider dans votre projet immobilier.
Fait à Paris - © 2017 - 2026 tous droits réservés Hosman