Ce bien a été vendu par Joseph
Maison de 53.02 m² à Clamart
16 photos
Plan 2D

Coup de coeur I Maison non mitoyenne de 53,02m2 - Très calme / Aucun vis-à-vis / Terrasse / Jardin

Clamart - 2 pièces - 53.02 m² - Une chambre

Voir la localisation

535 000 €

10 091 € / m²
Votre agent Hosman

Joseph Rimpot

01 84 80 61 19


Informations clés

Prix de mise en vente 535 000 €
Type de bien Maison
Surface habitable 53,02 m²
Surface au sol 53,02 m²
Nombre de pièces 2
Nombre de chambres 1
Période de construction De 1850 à 1913

Prestations

Local à vélo
Terrasse
Jardin

L'œil de l'agent

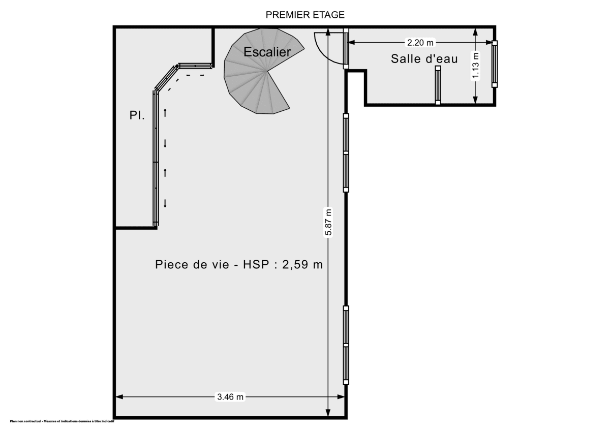
Hosman vous propose à la vente cette jolie maison non mitoyenne de 2 pièces d'une surface habitable de 53,02 m2 (pas d'extension envisageable), idéalement située dans un quartier recherché, rue du Moulin de Pierre, à proximité des commerces et des transports (à 6 min à pied du futur métro ligne 15 et de la Gare de Clamart).

Cette maison, construite en 1850 sur une parcelle de 100 m2, se compose :
- au rez-de-chaussée d'une entrée avec rangements, d'une cuisine équipée, d'une grande pièce de vie exposée Sud-Ouest et d'un WC séparé ;
- au 1er étage, d'une grande chambre avec dressing et d'une salle d'eau ;
- d'un grand grenier sous les combles (très sain mais non aménageable en l'état), accessible depuis la chambre.

Entièrement rénovée en 2014. Très bonne isolation. Double vitrage. Environnement très calme et arboré (maison entourée de jardins, pas de vis-à-vis). Terrasse de 10m2. Abri de jardin. Chauffage au gaz.

La taxe foncière est de 647 €.

Hosman s'efforce de réinventer l’agence immobilière en offrant un service innovant et transparent aux acheteurs et aux vendeurs.
Nos frais d'agence sont de 5900 euros fixes à la charge du vendeur.

Les + du bien

- Quartier recherché
- Jolie maison idéalement située au calme, entourée de jardins
- Entièrement rénovée avec goût en 2014
- Non mitoyenne
- Grande pièce de vie 
- Cuisine équipée
- Grande chambre avec rangements
- Terrasse de 10m2
- Grenier
- Abri de jardin 
- A proximité des commerces et transports

Intérieur

Nombre de salles de bain 1
Nombre de toilettes 1
Chauffage Individuel - Gaz
Eau Individuel (gaz)
Type de cuisine Semi-ouverte
Exposition du séjour Sud Ouest

Dépense énergétique

Performance énergétique (DPE)

A
B
C
D
E
236
kWh/m2 par an
F
G

Émissions de gaz à effet de serre (GES)

A
B
C
D
E
51
kg CO2/m2 par an
F
G

Localisation et quartier

<span class="translation_missing" title="translation missing: fr.advert_map_alt">Advert Map Alt</span>

Financer ce bien

Prix du bien : 535 000 €

Frais de notaire indicatifs (7,5%)
Les frais de notaire dans l'ancien sont entre 7% et 8% du prix du bien

40 125 €

Montant total à financer :

575 125 €

Vos mensualités

/ mois
Taux de marché

Source : creditadvisor.fr - Mai 2026

À durée égale, les taux varient fortement d'un prêt à l'autre et des critères qui entrent en jeu comme votre profil emprunteur, votre projet immobilier ou la négociation avec les banques.

%

ans

Soyez alerté quand de nouvelles annonces correspondent à votre recherche !

Vous cherchez un bien ou souhaitez vendre votre bien à Clamart ?

Consulter la page de notre agence immobilière à Clamart

Photo 1 - Maison 53.02 Clamart
Photo 2 - Maison 53.02 Clamart
Photo 3 - Maison 53.02 Clamart
Photo 4 - Maison 53.02 Clamart
Photo 5 - Maison 53.02 Clamart
Photo 6 - Maison 53.02 Clamart
Photo 7 - Maison 53.02 Clamart
Photo 8 - Maison 53.02 Clamart
Photo 9 - Maison 53.02 Clamart
Photo 10 - Maison 53.02 Clamart
Photo 11 - Maison 53.02 Clamart
Photo 12 - Maison 53.02 Clamart
Photo 13 - Maison 53.02 Clamart
Photo 14 - Maison 53.02 Clamart
Photo 15 - Maison 53.02 Clamart
Plan 2D - Maison 53.02 Clamart

Vous avez un bien à vendre ?

Vous souhaitez vendre un bien immobilier ? N'hésitez pas à contacter nos agents pour effectuer l'estimation du bien immobilier concerné ou réalisez sans plus attendre une première estimation en ligne, totalement gratuite.

Estimer mon bien

Estimation 100% gratuite et sans engagement !

visual product
Découvrez La Boussole,
le point immo par Hosman.
Recevez un décryptage du marché et des conseils d'agents pour vous guider dans votre projet immobilier.
Fait à Paris - © 2017 - 2026 tous droits réservés Hosman