Ce bien a été vendu par Amaury
Appartement de 71.12 m² à Boulogne-Billancourt
Ce bien est vendu
DPE C
14 photos
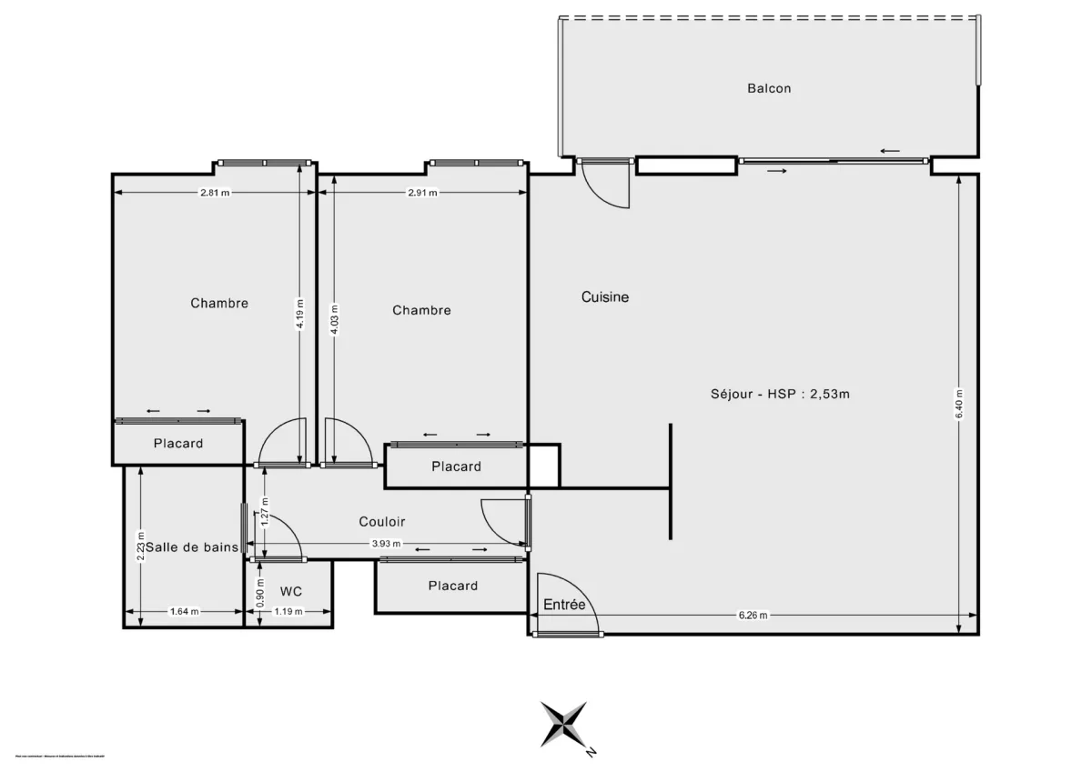
Plan 2D

Bel appartement T3 lumineux - 71 m2 - Avec balcon et parking - Passage les Enfants du Paradis, Boulogne-Billancourt

Boulogne-Billancourt - 3 pièces - 71.12 m² - 2 chambres

Voir la localisation

725 000 €

10 194 € / m²
Ce bien est vendu
DPE C
14 photos
Plan 2D

Bel appartement T3 lumineux - 71 m2 - Avec balcon et parking - Passage les Enfants du Paradis, Boulogne-Billancourt Voir la localisation

Boulogne-Billancourt - 3p - 2c - 71.12 m²

725 000 €

10 194 € / m²
Votre expert immobilier
Expert Hosman Amaury
Prix de mise en vente 725 000 €
Type de bien Appartement
Surface Carrez 71,12 m²
Surface au Sol 71,12 m²
Étage 6 sur 8
Période de construction De 1981 à 1991
Nombre de pièces 3
Nombre de chambres 2

Prestations

Ascenseur Parking Cave Local à vélo Terrasse Fibre optique

L'œil de l'expert

Hosman vous propose ce 3 pièces de 71.12 m² Carrez, situé Passage les Enfants du Paradis, Boulogne-Billancourt. L'appartement se trouve au 6ème étage d'un immeuble avec ascenseur. Idéalement exposé sud-ouest, il profite d'une belle luminosité.

Planifiez facilement votre visite en choisissant le créneau qui vous convient depuis le site d'Hosman.

L'appartement comprend :
Un séjour spacieux exposé Sud Ouest,
Une cuisine ouverte toute équipée et fonctionnelle,
Un balcon de 10 m2 avec une vue dégagée,
Deux chambres confortables au calme avec rangements,
Une salle de bain moderne,
Des toilettes séparées.

Vous bénéficierez d'une cave pour plus de rangements et d'une place de parking (boxable) en sus.

Les charges de copropriété sont de 620 euros par trimestre.
La taxe foncière est de 950 euros.

À découvrir sans tarder dans ce quartier dynamique de Boulogne-Billancourt, connu pour ses infrastructures de qualité : à 5 minutes à pied du métro Porte de Saint-Cloud, proximité des commerces, parcs, ainsi que de l'école élémentaire Point du Jour. Vous apprécierez le calme tout en restant connecté au centre de Paris.

Le bien est soumis au statut de copropriété. L'immeuble, construit entre 1981 et 1991, est bien entretenu, avec un gardien et un local à vélos.

Hosman propose un service innovant et transparent aux acheteurs et aux vendeurs, avec des frais d'agence fixes de 18 900 euros à la charge du vendeur.

Si vous êtes un professionnel de l'immobilier (agent, mandataire ou chasseur immobilier), sachez que toutes les annonces Hosman sont ouvertes à la collaboration. N'hésitez pas à nous contacter pour en discuter.

Les + du bien

Étage élevé avec ascenseur
Double vitrage performant
Pas de vis-à-vis
Exposition du séjour recherchée
Très lumineux
Pas de travaux à prévoir
Idéalement agencé - pas de perte d'espace
Rangement optimisé
Cuisine ouverte
Cuisine entièrement équipée
Baignoire dans la salle de bain
Toilettes séparées
Copropriété sécurisée avec gardien
Copropriété bien entretenue
Présence d'une cave
Présence d'un local à vélos
Présence d'une place de parking boxable (en sus)
Présence d'un balcon
Proche des transports en commun
Proche des commerces

Nombre de salles de bain 1
Nombre de toilettes 1
Chauffage Individuel - Électrique
Eau Individuel (électrique)
Type de cuisine Ouverte
Exposition du séjour Sud Ouest
Dépense énergétique
Performance énergétique (DPE)

A

B

C

162 kWh/m2 par an

D

E

F

G

Émissions de gaz à effet de serre (GES)

A

5 kg CO2/m2 par an

B

C

D

E

F

G

Votre expert Hosman

Logement très performant : faible consommation énergétique.

Localisation et quartier

Financer ce bien

Prix du bien : 725 000 €
Frais de notaire indicatifs (7,5%)
Les frais de notaire dans l'ancien sont entre 7% et 8% du prix du bien
: 54 375 €
Montant total à financer : 779 375 €
Vos mensualités
/ mois
Taux de marché
Source : creditadvisor.fr - Décembre 2025
À durée égale, les taux varient fortement d'un prêt à l'autre et des critères qui entrent en jeu comme votre profil emprunteur, votre projet immobilier ou la négociation avec les banques.
%
Votre apport
Durée du prêt
ans

Soyez alerté quand de nouvelles annonces correspondent à votre recherche !

Votre expert immobilier
Expert Hosman Amaury

Vous cherchez un bien ou souhaitez vendre votre bien à Boulogne-Billancourt ?

Consulter la page de notre agence immobilière à Boulogne-Billancourt

Vous avez un bien à vendre ?
Vous souhaitez vendre un bien immobilier ? N'hésitez pas à contacter nos experts pour effectuer l'estimation du bien immobilier concerné ou réalisez sans plus attendre une première estimation en ligne, totalement gratuite.
Estimation 100% gratuite et sans engagement !
visual product