Ce bien a été vendu par Boris
Appartement de 42.45 m² à Lyon
Ce bien est vendu
DPE D
13 photos
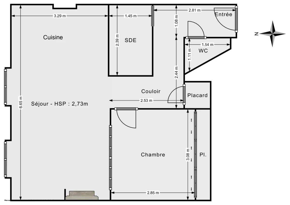
Plan 2D

Coup de Coeur - 2 pièces de 43 m2 - Entièrement rénové, bien agencé et avec charme - Rue Bossuet, Lyon 6ème

Rue Bossuet, Lyon - 2 pièces - 42.45 m² - 1 chambre

Voir la localisation

287 000 €

6 761 € / m²
Ce bien est vendu
DPE D
13 photos
Plan 2D

Coup de Coeur - 2 pièces de 43 m2 - Entièrement rénové, bien agencé et avec charme - Rue Bossuet, Lyon 6ème Voir la localisation

Rue Bossuet, Lyon - 2p - 1c - 42.45 m²

287 000 €

6 761 € / m²
Votre expert immobilier
Expert Hosman Boris
Prix de mise en vente 287 000 €
Type de bien Appartement
Surface Carrez 42,45 m²
Surface au Sol 43,16 m²
Étage 2 sur 3
Période de construction De 1948 à 1969
Nombre de pièces 2
Nombre de chambres 1

Prestations

Cave Fibre optique

L'œil de l'expert

Hosman vous propose à la vente ce très beau 2 pièces entièrement rénové en 2020 d'une surface de 42,45 m2 Carrez, situé Rue Bossuet à Lyon 6ème. L’appartement est situé au 2ème étage sur 3 d'un immeuble bien entretenu, sans ascenseur.

Si vous souhaitez le visiter, choisissez le créneau qui vous convient le mieux et planifiez votre visite en toute autonomie, depuis notre site hosman . co

Lumineux et bien agencé, le bien se compose :
- D'une agréable pièce de vie avec cheminée et parquet
- D'une cuisine ouverte et entièrement équipée (plaque à induction, hotte, réfrigérateur, four et lave vaisselle).
- D'une chambre séparée en second jour avec jolie verrière
- D'une salle d'eau avec douche et sèche-serviette
- De toilettes séparés

Ce bien propose également un double vitrage complet ainsi qu'une cave. Terrain HCL avec un bail de 30 ans du 1/7/2015 au 30/6/2045.
Idéalement situé dans un quartier calme, proche de toutes commodités et parfaitement desservi par les transports en commun. À proximité directe de Masséna et du quartier des Brotteaux, l’appartement est au cœur de l’écosystème lyonnais. La Gare de la Part-Dieu se trouve à moins de 10 minutes à pied de l’appartement. Il est également possible de se rendre facilement sur les Berges du Rhône ainsi qu’au Parc de la Tête d’Or en moins de 10 minutes à pied.

Le système de chauffage est individuel électrique. Les charges de copropriété s'élèvent à 180 € par trimestre (eau froide et entretien de l'immeuble). La taxe foncière est de 346 par an. Le bien est soumis au statut de copropriété.

Hosman s'efforce de réinventer l’agence immobilière en offrant un service innovant et transparent aux acheteurs et aux vendeurs. Nos frais d'agence sont de 6900 euros fixes à la charge du vendeur.
Si vous êtes un professionnel de l'immobilier (agent, mandataire ou chasseur immobilier) sachez que toutes les annonces Hosman sont ouvertes à la collaboration. N'hésitez pas à nous contacter pour en discuter.

Les + du bien

- Appartement entièrement rénové en 2020 et ayant conservé le charme de l’ancien
- Situé dans un environnement calme, proche de toutes commodités et transports en commun
- Offrant une agréable pièce de vie attenante à une cuisine ouverte et équipée
- Doté d’une chambre en second jour
- Présence d’espaces de rangements optimisés
- Une cave complète ce bien

Nombre de salles de bain 1
Nombre de toilettes 1
Chauffage Individuel - Électrique
Eau Individuel (électrique)
Type de cuisine Ouverte
Exposition du séjour Nord Ouest
Dépense énergétique
Performance énergétique (DPE)

A

B

C

D

195 kWh/m2 par an

E

F

G

Émissions de gaz à effet de serre (GES)

A

B

6 kg CO2/m2 par an

C

D

E

F

G

Votre expert Hosman

Logement très performant : faible consommation énergétique.

Localisation et quartier

Financer ce bien

Prix du bien : 287 000 €
Frais de notaire indicatifs (7,5%)
Les frais de notaire dans l'ancien sont entre 7% et 8% du prix du bien
: 21 525 €
Montant total à financer : 308 525 €
Vos mensualités
/ mois
Taux de marché
Source : creditadvisor.fr - Novembre 2025
À durée égale, les taux varient fortement d'un prêt à l'autre et des critères qui entrent en jeu comme votre profil emprunteur, votre projet immobilier ou la négociation avec les banques.
%
Votre apport
Durée du prêt
ans

Soyez alerté quand de nouvelles annonces correspondent à votre recherche !

Votre expert immobilier
Expert Hosman Boris

Vous cherchez un bien ou souhaitez vendre votre bien à Lyon 6 ?

Consulter la page de notre agence immobilière à Lyon 6

Vous avez un bien à vendre ?
Vous souhaitez vendre un bien immobilier ? N'hésitez pas à contacter nos experts pour effectuer l'estimation du bien immobilier concerné ou réalisez sans plus attendre une première estimation en ligne, totalement gratuite.
Estimation 100% gratuite et sans engagement !
visual product