 
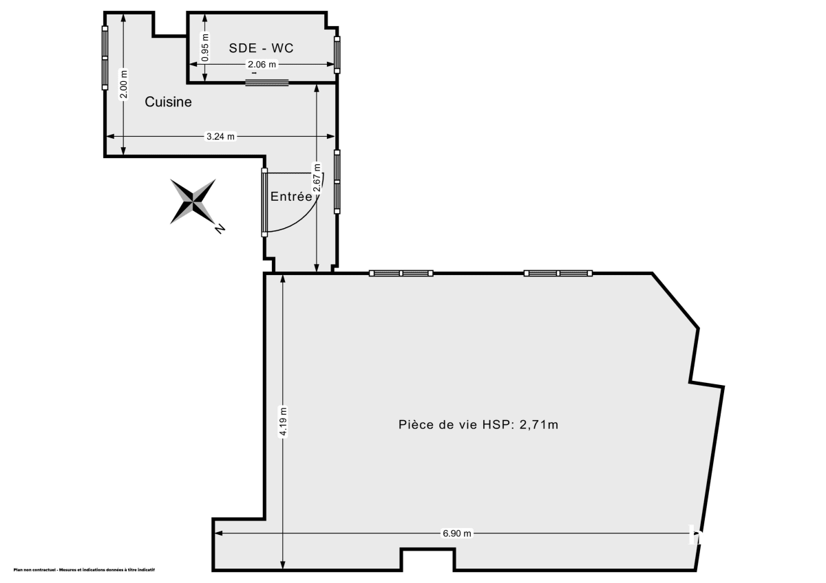
 Avenue de Choisy, Paris - Une pièce - 33.0 m² - 1 chambre
Voir la localisationVous cherchez un bien ou souhaitez vendre votre bien à Paris 13 ?
Consulter la page de notre agence immobilière à Paris 13
Nous vous proposons également des biens dans des zones à proximité :