Ce bien a été vendu par Natacha
Appartement de 24.25 m² à Paris
Ce bien est vendu
DPE D
14 photos
Plan 2D

Coup de coeur studio de 24 m2 - 5min des métros Parmentier et Oberkampf - Rue de la Folie Méricourt, 75011 Paris

Rue de la Folie Méricourt, Paris - Studio -

Voir la localisation

294 000 €

12 124 € / m²
Ce bien est vendu
DPE D
14 photos
Plan 2D

Coup de coeur studio de 24 m2 - 5min des métros Parmentier et Oberkampf - Rue de la Folie Méricourt, 75011 Paris Voir la localisation

Rue de la Folie Méricourt, Paris - Studio -

294 000 €

12 124 € / m²
Votre agent immobilier
Agent Hosman Natacha
Prix de mise en vente 294 000 €
Type de bien Appartement
Surface Carrez 24,25 m²
Surface au Sol 25 m²
Étage 2 sur 6
Période de construction De 1850 à 1913
Nombre de pièces Studio

Prestations

Local à vélo Fibre optique

L'œil de l'agent

Hosman vous propose à la vente ce studio d'une surface de 24.25 m2 Carrez, situé Rue de la Folie Méricourt à Paris.

Le bien, entièrement sur cour, est calme avec du double-vitage aux fenêtres. Avec un très beau parquet et des poutres au plafond, cet appartement bénéficie du charme de l'ancien.

L’appartement est situé au 2ème étage d'une résidence sécurisée et un gardien réside dans l’immeuble. Un local à vélos / poussettes est également présent.

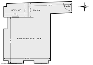
Le bien se compose :
- D'un séjour lumineux, exposé Ouest qui donne sur la cour de l'appartement, très calme.
- D’une cuisine ouverte bien agencée, en bon état
- D’une salle de bain équipée d'une douche, d'une simple vasque et de toilettes.

L'appartement est idéalement situé dans un quartier commerçant, parfaitement desservi par les transports (ligne 3, 5, 8, 9 et 11 de métro accessibles à pied depuis l’appartement). À proximité directe de la place de la République, l’appartement est au coeur de l’écosystème parisien. Le canal Saint-Martin se trouve à moins de 3 minutes à pied de l’appartement.

Le système de chauffage est: Individuel - Électrique

Les charges de copropriété s'élèvent à 400 € par trimestre.
La taxe foncière est de 358 €.

Le bien est soumis au statut de copropriété.

Chez Hosman, on vous évite des appels inutiles, et on vous fait gagner du temps : des annonces exhaustives pour trouver toutes les réponses à vos questions, une visite virtuelle, la prise de visite en ligne au moment qui vous arrange. C'est plus pratique et plus rapide.

Hosman s'efforce de réinventer l’agence immobilière en offrant un service innovant et transparent aux acheteurs et aux vendeurs.
Nos frais d'agence sont de 5900 euros fixes à la charge du vendeur.

Les + du bien

- Appartement en bon état 
- Charme des poutres au plafond 
- Calme sur cour avec double-vitrage 
- Appartement bien agencé, pas de perte d’espace 
- Localisation recherchée
- Immeuble bien entretenu 
- Proches de toutes commodités (transports et commerces) 

Nombre de salles de bain 1
Nombre de toilettes 1
Chauffage Individuel - Électrique
Eau Collectif
Type de cuisine Ouverte
Exposition du séjour Ouest
Dépense énergétique
Performance énergétique (DPE)

A

B

C

D

244 kWh/m2 par an

E

F

G

Émissions de gaz à effet de serre (GES)

A

B

7 kg CO2/m2 par an

C

D

E

F

G

Votre agent Hosman

Logement très performant : faible consommation énergétique.

Localisation et quartier

Oberkampf (à 220 m)
Parmentier (à 360 m)
Goncourt (à 380 m)
République (à 400 m)
Filles du Calvaire (à 440 m)

Financer ce bien

Prix du bien : 294 000 €
Frais de notaire indicatifs (7,5%)
Les frais de notaire dans l'ancien sont entre 7% et 8% du prix du bien
: 22 050 €
Montant total à financer : 316 050 €
Vos mensualités
/ mois
Taux de marché
Source : creditadvisor.fr - Avril 2026
À durée égale, les taux varient fortement d'un prêt à l'autre et des critères qui entrent en jeu comme votre profil emprunteur, votre projet immobilier ou la négociation avec les banques.
%
Votre apport
Durée du prêt
ans

Soyez alerté quand de nouvelles annonces correspondent à votre recherche !

Votre agent immobilier
Agent Hosman Natacha

Vous cherchez un bien ou souhaitez vendre votre bien à Paris 11 ?

Consulter la page de notre agence immobilière à Paris 11

Vous avez un bien à vendre ?
Vous souhaitez vendre un bien immobilier ? N'hésitez pas à contacter nos agents pour effectuer l'estimation du bien immobilier concerné ou réalisez sans plus attendre une première estimation en ligne, totalement gratuite.
Estimation 100% gratuite et sans engagement !
visual product