Ce bien a été vendu par Hugues
Appartement de 91.47 m² à Paris
Ce bien est vendu
DPE C
15 photos
Plan 2D

PICPUS/RUE DU RENDEZ-VOUS - Bel appartement familial de 91,5m2 avec terrasse de 4,5m2

Rue de la Voûte, Paris - 4 pièces - 91.47 m² - 3 chambres

Voir la localisation

980 000 €

10 714 € / m²
Ce bien est vendu
DPE C
15 photos
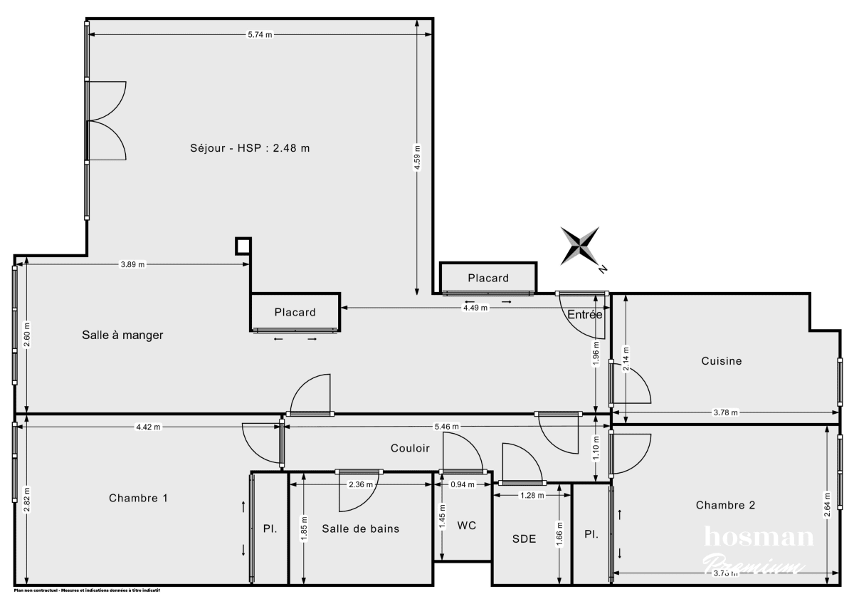
Plan 2D

PICPUS/RUE DU RENDEZ-VOUS - Bel appartement familial de 91,5m2 avec terrasse de 4,5m2 Voir la localisation

Rue de la Voûte, Paris - 4p - 3c - 91.47 m²

980 000 €

10 714 € / m²
Votre expert immobilier
Expert Hosman Hugues
Prix de mise en vente 980 000 €
Type de bien Appartement
Surface Carrez 91,47 m²
Surface au Sol 92 m²
Étage 1 sur 8
Période de construction De 1981 à 1991
Nombre de pièces 4
Nombre de chambres 3

Prestations

Ascenseur Parking Cave Local à vélo Terrasse Fibre optique

L'œil de l'expert

Hosman vous propose à la vente ce 4 pièces d'une surface de 91.47 m2 Carrez, situé Rue de la Voûte à Paris.

L’appartement est situé au calme, au 1er étage avec ascenseur d'un immeuble bien tenu et sécurisé, datant de 1991.

Le bien, traversant et à la distribution idéale, se compose :
D'une entrée avec grand placard ;
D'une cuisine indépendante toute équipée ;
D'une belle pièce de vie lumineuse, exposée Sud Est avec accès à la terrasse de 4,5m2 donnant sur la cour arborée de l'immeuble ;
D'un coin nuit desservant 2 chambres avec placards ;
D'une salle de bains avec grande baignoire, sèche serviette, emplacement lave linge et WC ;
D'une salle d'eau avec douche et sèche serviette ;
D'un WC indépendant avec lave mains.

La disposition actuelle présente 2 chambres mais l'appartement est très facilement transformable en 4 pièces tel qu'il l'était à l'origine (simple cloison dans le séjour).

L'appartement est en bon état, le chauffage et l'eau chaude sont individuels électrique avec convecteurs récents, ballon de 250L, volets électriques et stores bateaux qui resteront.

Une cave ainsi qu'une place de parking en sous-sol complètent ce bien.
Un local vélo/poussette est également présent dans l'immeuble.

Le bien est idéalement situé dans un quartier commerçant et dynamique, parfaitement desservi par les transports (lignes de métro 1-2-6-9, Tramway T3a et T3b).
À proximité immédiate de la très agréable rue du Rendez-vous, et à 2 pas de la place de la Nation.
Le Bois de Vincennes se trouve à 15 minutes à pied. Il est également possible de se rendre facilement dans le centre de Paris ou à Vincennes.

Les charges de copropriété s'élèvent à 740 € par trimestre.
La taxe foncière est de 1 258 €.

Le bien est soumis au statut de copropriété.

Hosman s'efforce de réinventer l’agence immobilière en offrant un service innovant et transparent aux acheteurs et aux vendeurs.
Nos frais d'agence sont de 9900 euros fixes à la charge du vendeur.

Les + du bien

- Quartier recherché, à proximité des commerces, écoles et transports
- Immeuble bien tenu et sécurisé
- Au calme
- Terrasse bien exposée
- Appartement traversant
- Bonne distribution de l'espace
- Une cave
- Une place de parking
- Rangements
- Fibre

Nombre de salles de bain 2
Nombre de toilettes 1
Chauffage Individuel - Électrique
Eau Individuel (électrique)
Type de cuisine Séparée
Exposition du séjour Sud Est
Dépense énergétique
Performance énergétique (DPE)

A

B

C

166 kWh/m2 par an

D

E

F

G

Émissions de gaz à effet de serre (GES)

A

5 kg CO2/m2 par an

B

C

D

E

F

G

Votre expert Hosman

Logement très performant : faible consommation énergétique.

Localisation et quartier

Porte de Vincennes (à 220 m)
Alexandra David-Néel (à 280 m)
Picpus (à 430 m)

Financer ce bien

Prix du bien : 980 000 €
Frais de notaire indicatifs (7,5%)
Les frais de notaire dans l'ancien sont entre 7% et 8% du prix du bien
: 73 500 €
Montant total à financer : 1 053 500 €
Vos mensualités
/ mois
Taux de marché
Source : creditadvisor.fr - Octobre 2025
À durée égale, les taux varient fortement d'un prêt à l'autre et des critères qui entrent en jeu comme votre profil emprunteur, votre projet immobilier ou la négociation avec les banques.
%
Votre apport
Durée du prêt
ans

Soyez alerté quand de nouvelles annonces correspondent à votre recherche !

Votre expert immobilier
Expert Hosman Hugues

Vous cherchez un bien ou souhaitez vendre votre bien à Paris 12 ?

Consulter la page de notre agence immobilière à Paris 12

Vous avez un bien à vendre ?
Vous souhaitez vendre un bien immobilier ? N'hésitez pas à contacter nos experts pour effectuer l'estimation du bien immobilier concerné ou réalisez sans plus attendre une première estimation en ligne, totalement gratuite.
Estimer mon bien
Estimation 100% gratuite et sans engagement !
visual product