Ce bien a été vendu par Brice
Appartement de 83.0 m² à Paris
Ce bien est vendu
19 photos
Plan 2D

Coup de coeur - Loft souplex - 83 m2 - Charme de la copro et du bien - Rue Oberkampf 75011 Paris

Rue Oberkampf, Paris - 3 pièces - 83.0 m² - 2 chambres

Voir la localisation

850 000 €

10 241 € / m²
Ce bien est vendu
19 photos
Plan 2D

Coup de coeur - Loft souplex - 83 m2 - Charme de la copro et du bien - Rue Oberkampf 75011 Paris Voir la localisation

Rue Oberkampf, Paris - 3p - 2c - 83.0 m²

850 000 €

10 241 € / m²
Votre expert immobilier
Expert Hosman Brice
Prix de mise en vente 850 000 €
Type de bien Appartement
Surface Carrez 83 m²
Surface au Sol 83 m²
Étage RDC sur 6
Période de construction De 1850 à 1913
Nombre de pièces 3
Nombre de chambres 2

Prestations

Cave

L'œil de l'expert

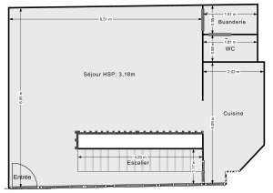
Hosman vous propose à la vente ce remarquable souplex de 3 pièces d'une surface de 83 m2 Carrez, situé Rue Oberkampf à Paris.

Le bien, entièrement rénové avec goût en 2015, se compose
Au RDC : très beaux volumes avec un salon/Salle à manger super lumineux de 3,20m de hauteur sous plafond, très beau parquet en chêne massif vieilli. Grande cuisine équipée, avec verrière donnant sur la salle à manger/salon.
Espace buanderie. Toilettes indépendantes avec lavabo.
Vous accédez en bas par un escalier encastré ajouré qui descend sur un patio lumineux, à l’aplomb de la verrière.

Vous accédez en bas par un escalier encastré ajouré qui descend sur un patio lumineux, à l’aplomb de la verrière.
En bas, 1 grande chambre de 18m² avec verrière donnant sur le patio et grands placards.
Une deuxième chambre de 16m² avec verrière (on voit le ciel et les plantes depuis le lit) et grand dressing.
Une salle de bains avec baignoire + 2 lavabos + toilette + rangements.
Le sous-sol est très agréable à vivre car il est inondé de lumière naturelle, aéré, fait 2,20m de hauteur sous plafond, possède une aération VMC ultra-performante avec un échange d’air continu. Appartement très sain.
Possibilité de faire une 3ème chambre.

Une grande cave et un parking en sus complètent ce bien.
Le système de chauffage est individuel électrique
Les charges de copropriété s'élèvent à 600 € par trimestre.
La taxe foncière est de 789 €

Le bien se situe à 1 minutes à pied de la station de métro ''Ménilmontant''.
La ligne 3 est également accessible à 7 minutes a pied. Vous êtes au cœur du quartier dynamique de Ménilmontant avec ses nombreux commerces (Marché, Darty, Super Casino), tout en étant au calme sur cour.

Chez Hosman, on vous évite des appels inutiles, et on vous fait gagner du temps : des annonces exhaustives pour trouver toutes les réponses à vos questions, une visite virtuelle, la prise de visite en ligne au moment qui vous arrange. C'est plus pratique et plus rapide

Hosman s'efforce de réinventer l’agence immobilière en offrant un service innovant et transparent aux acheteurs et aux vendeurs.
Nos frais d'agence sont de 9900 euros fixes à la charge du vendeur.

Les + du bien

- Excellent état du bien - entièrement rénové en 2015
- Charme du bien - 3,5m sous plafond
- 13 m2 de terrasse non inclus dans le bien mais avec jouissance exclusive
- Parking en sus + grande cave
- Localisation recherchée

Nombre de salles de bain 1
Nombre de toilettes 2
Chauffage Individuel - Électrique
Eau Individuel (électrique)
Type de cuisine Semi-ouverte
Exposition du séjour Ouest

Localisation et quartier

Ménilmontant (à 80 m)
Couronnes (à 290 m)
Rue Saint-Maur (à 330 m)
Père Lachaise (à 470 m)

Financer ce bien

Prix du bien : 850 000 €
Frais de notaire indicatifs (7,5%)
Les frais de notaire dans l'ancien sont entre 7% et 8% du prix du bien
: 63 750 €
Montant total à financer : 913 750 €
Vos mensualités
/ mois
Taux de marché
Source : creditadvisor.fr - Novembre 2025
À durée égale, les taux varient fortement d'un prêt à l'autre et des critères qui entrent en jeu comme votre profil emprunteur, votre projet immobilier ou la négociation avec les banques.
%
Votre apport
Durée du prêt
ans

Soyez alerté quand de nouvelles annonces correspondent à votre recherche !

Votre expert immobilier
Expert Hosman Brice

Vous cherchez un bien ou souhaitez vendre votre bien à Paris 11 ?

Consulter la page de notre agence immobilière à Paris 11

Vous avez un bien à vendre ?
Vous souhaitez vendre un bien immobilier ? N'hésitez pas à contacter nos experts pour effectuer l'estimation du bien immobilier concerné ou réalisez sans plus attendre une première estimation en ligne, totalement gratuite.
Estimation 100% gratuite et sans engagement !
visual product