Ce bien a été vendu par Frédéric
Appartement de 82.0 m² à Arcueil
Ce bien est vendu
DPE C
14 photos

Appartement familial - 4 pièces - 82 m2 - Bon état général - Balcon - Rue Emile Raspail 94110 Arcueil

Rue Emile Raspail, Arcueil - 4 pièces - 82.0 m² - 3 chambres

Voir la localisation

385 000 €

4 695 € / m²
Ce bien est vendu
DPE C
14 photos

Appartement familial - 4 pièces - 82 m2 - Bon état général - Balcon - Rue Emile Raspail 94110 Arcueil Voir la localisation

Rue Emile Raspail, Arcueil - 4p - 3c - 82.0 m²

385 000 €

4 695 € / m²
Votre expert immobilier
Expert Hosman Frédéric
Prix de mise en vente 385 000 €
Type de bien Appartement
Surface Carrez 82 m²
Surface au Sol 82 m²
Étage 2 sur 6
Période de construction De 1970 à 1980
Nombre de pièces 4
Nombre de chambres 3

Prestations

Ascenseur Parking Cave Balcon Fibre optique

L'œil de l'expert

Hosman vous propose à la vente ce spacieux 4 pièces d'une surface de 82.0 m2 Carrez, situé Rue Emile Raspail à Arcueil.

Profitez de la visite virtuelle en 3D pour vous projeter dans ce bien !
Si vous souhaitez le visiter, choisissez le créneau qui vous convient le mieux et planifiez votre visite en toute autonomie, depuis notre site hosman . co

L’appartement est situé au 2ème étage sur 6 (avec ascenseur) d'une résidence construite entre les annéesf1970t1980.
La résidence est également sécurisée et un gardien réside dans l’immeuble.

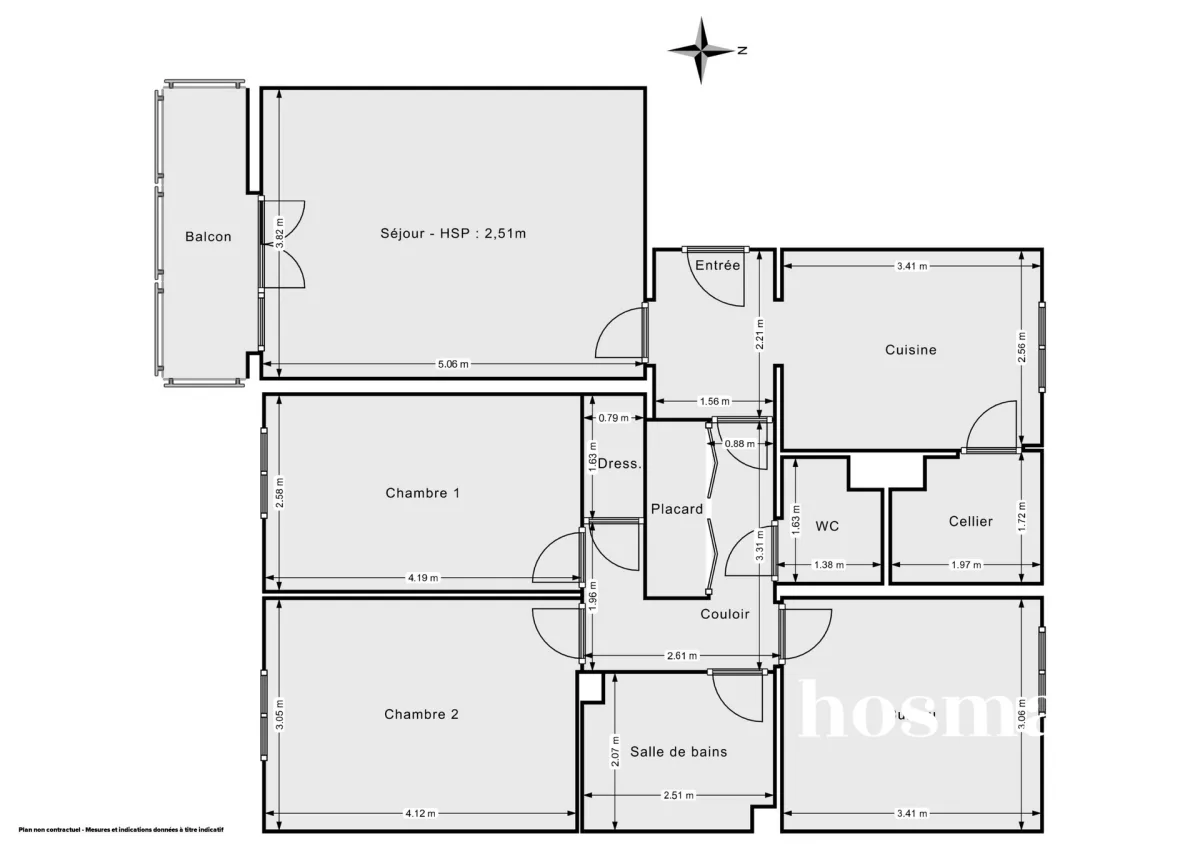
Idéal pour un aménagement en famille ce bien se compose d'un grand séjour 19m2 avec balcon attenant exposé Ouest , d'une grande cuisine dinatoire toute équipée de 9m2, de deux chambres de 10m2 et une grande chambre de 12m2, d'une salle de bain équipée d'une double vasque et d'une baignoire.Ce bien comporte également des toilettes séparées.

Une cave et une place de parking boxée complètent ce bien. .

Bien idéalement situé dans un quartier commerçant et familial, parfaitement desservi par les transports (Accès RER B à 5 minutes). L’appartement est à proximité immédiate des commerces et infrastructures de quartier ainsi que de l’ensemble des établissements scolaires.

Le système de chauffage est collectif géothermique.

Les charges de copropriété sont à 860€ par trimestre.
La taxe foncière est de 1444€.

Le bien est soumis au statut de copropriété.

Hosman s'efforce de réinventer l’agence immobilière en offrant un service innovant et transparent aux acheteurs et aux vendeurs.
Nos frais d'agence sont de 7900 euros fixes à la charge du vendeur.

Les + du bien

- Appartement traversant et lumineux
- Bon état général de l’appartement 
- Peintures refaites récemment 
-  Cuisine dinatoire toute équipée
- Belle pièce de vie avec balcon attenant
- Nombreux rangements (dressing, couloir et cellier)
-  Doubles vitrages
- WC séparé
- Cave
- Parking boxé
- Copropriété bien entretenue et familial

Nombre de salles de bain 1
Nombre de toilettes 1
Chauffage Collectif
Eau Individuel (thermo)
Type de cuisine Séparée
Exposition du séjour Double E./O.
Dépense énergétique
Performance énergétique (DPE)

A

B

C

165 kWh/m2 par an

D

E

F

G

Émissions de gaz à effet de serre (GES)

A

B

C

5 kg CO2/m2 par an

D

E

F

G

Votre expert Hosman

Logement très performant : faible consommation énergétique.

Localisation et quartier

Arcueil - Cachan (à 330 m)

Financer ce bien

Prix du bien : 385 000 €
Frais de notaire indicatifs (7,5%)
Les frais de notaire dans l'ancien sont entre 7% et 8% du prix du bien
: 28 875 €
Montant total à financer : 413 875 €
Vos mensualités
/ mois
Taux de marché
Source : creditadvisor.fr - Décembre 2025
À durée égale, les taux varient fortement d'un prêt à l'autre et des critères qui entrent en jeu comme votre profil emprunteur, votre projet immobilier ou la négociation avec les banques.
%
Votre apport
Durée du prêt
ans

Soyez alerté quand de nouvelles annonces correspondent à votre recherche !

Votre expert immobilier
Expert Hosman Frédéric

Vous cherchez un bien ou souhaitez vendre votre bien à Arcueil ?

Consulter la page de notre agence immobilière à Arcueil

Vous avez un bien à vendre ?
Vous souhaitez vendre un bien immobilier ? N'hésitez pas à contacter nos experts pour effectuer l'estimation du bien immobilier concerné ou réalisez sans plus attendre une première estimation en ligne, totalement gratuite.
Estimation 100% gratuite et sans engagement !
visual product