Ce bien a été vendu par Stacy
Appartement de 72.0 m² à Pessac
Ce bien est vendu
DPE D
14 photos
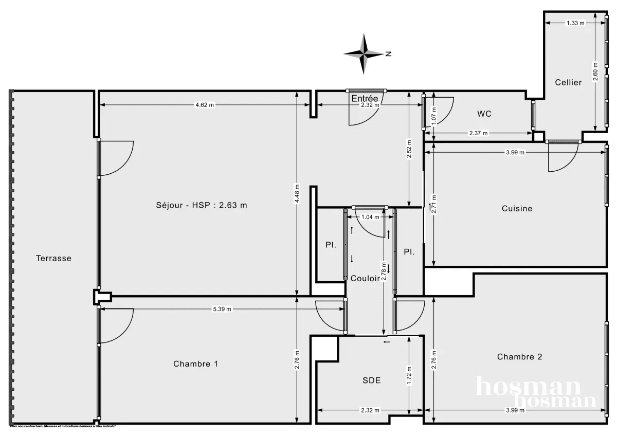
Plan 2D

Coup de coeur, Appartement de 72 m2 - Proche tramway B - Avenue Roger Chaumet 33600 Pessac

Pessac - 3 pièces - 72.0 m² - 2 chambres

Voir la localisation

269 900 €

3 374 € / m²
Ce bien est vendu
DPE D
14 photos
Plan 2D

Coup de coeur, Appartement de 72 m2 - Proche tramway B - Avenue Roger Chaumet 33600 Pessac Voir la localisation

Pessac - 3p - 2c - 72.0 m²

269 900 €

3 374 € / m²
Votre expert immobilier
Expert Hosman Stacy
Prix de mise en vente 269 900 €
Type de bien Appartement
Surface Carrez 72 m²
Surface au Sol 72 m²
Étage 3 sur 3
Période de construction De 1948 à 1969
Nombre de pièces 3
Nombre de chambres 2

Prestations

2 parkings Cave Local à vélo Balcon Terrasse Fibre optique

L'œil de l'expert

Hosman vous propose à la vente ce 3 pièces, traversant, d'une surface de 72 m2 Carrez, proche Tramway B, situé Avenue Roger Chaumet à Pessac.

L’appartement est situé au dernier étage sur 3 d'un immeuble des années 60, entièrement rénové il y a quatre ans. La résidence est sécurisée et un gardien réside dans l’immeuble.

Le bien se compose :
- D'un séjour de 21m2, exposé Sud qui donne sur la terrasse de 13 m2 avec une superbe vue dégagée
- De 2 chambres d’une surface de 13 m2 et 12 m2
- D’une cuisine séparée de 11 m2, meublée et équipée de mobilier datant de 2 ans
- D’une salle de bain de 4 m2, équipée d’une douche et d'une grande vasque
- Ce bien comporte également des toilettes séparées.

Une cave de 8 m2 complète ce bien.
Une place de parking extérieure accompagne ce bien.
Un local à vélo / un local à poussette est également présent dans l’immeuble.

Le bien se situe à 5 minutes à pied de la ligne de Tramway B, arrêt Camponac médiathèque et gare de Pessac à 12 minutes.

Le système de chauffage est: Collectif

Les charges de copropriété s'élèvent à 500 € par trimestre comprenant chauffage, eau, entretien résidence.
La taxe foncière est de 990 €.

Le bien est soumis au statut de copropriété.

Profitez de la visite virtuelle en 3D pour vous projeter dans ce bien !
Si vous souhaitez le visiter, choisissez le créneau qui vous convient le mieux et planifiez votre visite en toute autonomie, depuis notre site hosman.co

Hosman s'efforce de réinventer l’agence immobilière en offrant un service innovant et transparent aux acheteurs et aux vendeurs.
Nos frais d'agence sont de 5900 euros fixes à la charge du vendeur.

Les + du bien

- Résidence sécurisée et arborée
- Stationnement parking privé à la résidence
- Pas de travaux à prévoir
- Belles prestations
- Beaux volumes
- 5 min Tram B et gare de Pessac à 12 minutes à pied
- Proche de 2 terrains de tennis (pour les amateurs)

Nombre de salles de bain 1
Nombre de toilettes 1
Chauffage Collectif
Eau Individuel (électrique)
Type de cuisine Séparée
Exposition du séjour Sud
Dépense énergétique
Performance énergétique (DPE)

A

B

C

D

243 kWh/m2 par an

E

F

G

Émissions de gaz à effet de serre (GES)

A

B

C

24 kg CO2/m2 par an

D

E

F

G

Votre expert Hosman

Logement très performant : faible consommation énergétique.

Localisation et quartier

Financer ce bien

Prix du bien : 269 900 €
Frais de notaire indicatifs (7,5%)
Les frais de notaire dans l'ancien sont entre 7% et 8% du prix du bien
: 20 243 €
Montant total à financer : 290 143 €
Vos mensualités
/ mois
Taux de marché
Source : creditadvisor.fr - Novembre 2025
À durée égale, les taux varient fortement d'un prêt à l'autre et des critères qui entrent en jeu comme votre profil emprunteur, votre projet immobilier ou la négociation avec les banques.
%
Votre apport
Durée du prêt
ans

Soyez alerté quand de nouvelles annonces correspondent à votre recherche !

Votre expert immobilier
Expert Hosman Stacy

Vous cherchez un bien ou souhaitez vendre votre bien à Pessac ?

Consulter la page de notre agence immobilière à Pessac

Vous avez un bien à vendre ?
Vous souhaitez vendre un bien immobilier ? N'hésitez pas à contacter nos experts pour effectuer l'estimation du bien immobilier concerné ou réalisez sans plus attendre une première estimation en ligne, totalement gratuite.
Estimation 100% gratuite et sans engagement !
visual product