Ce bien a été vendu par Marine
Appartement de 55.58 m² à Saint-Maur-des-Fossés
Ce bien est vendu
15 photos
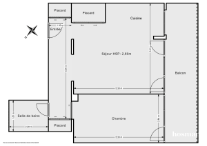
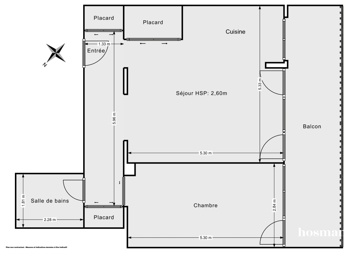
Plan 2D

Lumineux deux pièces de 55.58 m² avec balcon de 8,23 m² - Quartier Adamville à Saint-Maur-des-Fossés

Avenue de la République, Saint-Maur-des-Fossés - 2 pièces - 55.58 m² - 1 chambre

Voir la localisation

370 000 €

6 657 € / m²
Ce bien est vendu
15 photos
Plan 2D

Lumineux deux pièces de 55.58 m² avec balcon de 8,23 m² - Quartier Adamville à Saint-Maur-des-Fossés Voir la localisation

Avenue de la République, Saint-Maur-des-Fossés - 2p - 1c - 55.58 m²

370 000 €

6 657 € / m²
Votre expert immobilier
Expert Hosman Marine
Prix de mise en vente 370 000 €
Type de bien Appartement
Surface Carrez 55,58 m²
Surface au Sol 66,06 m²
Étage 4 sur 5
Période de construction De 1948 à 1969
Nombre de pièces 2
Nombre de chambres 1

Prestations

Ascenseur Parking Local à vélo Balcon

L'œil de l'expert

Hosman vous propose à la vente ce 2 pièces d'une surface de 55.58 m² Carrez, situé Avenue de la République à Saint-Maur-des-Fossés.

L’appartement est situé au 4ème étage avec ascenseur d'une résidence datant des années 70 sans travaux prévoir.

Le bien se compose :
- D'une entrée de 9,05 m² avec des rangements et un espace buanderie,
- D'un séjour de 25,21 m², exposé Sud Ouest avec une cuisine ouverte toute équipée,
- D'un balcon de 8,23 m²,
- D'une chambre de 14,81 m²,
- D'une salle de bains de 4,53 m²,
- De toilettes séparées de 1,32 m².

Une place de parking intérieure accompagne ce bien.
Un local à vélo / poussette est également présent dans l’immeuble.

Le bien se situe à moins de 2 minutes de la rue commerçante Baratte Cholet, à une dizaine de minutes à pied de la Mairie de Saint-Maur et à 750 mètres de l'arrêt Le Parc (RER A).

Le système de chauffage est Collectif

Les charges de copropriété s'élèvent à 690 € par trimestre.
La taxe foncière est de 1400 €.

Le bien est soumis au statut de copropriété.

Chez Hosman, on vous évite des appels inutiles, et on vous fait gagner du temps : des annonces exhaustives pour trouver toutes les réponses à vos questions, une visite virtuelle, la prise de visite en ligne au moment qui vous arrange. C'est plus pratique et plus rapide

Hosman s'efforce de réinventer l’agence immobilière en offrant un service innovant et transparent aux acheteurs et aux vendeurs.
Nos frais d'agence sont de 5900 euros fixes à la charge du vendeur.

Les + du bien

- Lumineux
- Belle pièce de vie
- Grande chambre avec possibilité de faire un coin bureau
- Une buanderie
- Un balcon
- Une place de parking

Nombre de salles de bain 1
Nombre de toilettes 1
Chauffage Collectif
Eau Collectif
Type de cuisine Ouverte
Exposition du séjour Sud Ouest
Dépense énergétique
Performance énergétique (DPE)

A

B

C

D

E

F

327 kWh/m2 par an

G

Émissions de gaz à effet de serre (GES)

A

B

C

D

E

F

98 kg CO2/m2 par an

G

Localisation et quartier

Financer ce bien

Prix du bien : 370 000 €
Frais de notaire indicatifs (7,5%)
Les frais de notaire dans l'ancien sont entre 7% et 8% du prix du bien
: 27 750 €
Montant total à financer : 397 750 €
Vos mensualités
/ mois
Taux de marché
Source : creditadvisor.fr - Décembre 2025
À durée égale, les taux varient fortement d'un prêt à l'autre et des critères qui entrent en jeu comme votre profil emprunteur, votre projet immobilier ou la négociation avec les banques.
%
Votre apport
Durée du prêt
ans

Soyez alerté quand de nouvelles annonces correspondent à votre recherche !

Votre expert immobilier
Expert Hosman Marine

Vous cherchez un bien ou souhaitez vendre votre bien à Saint-Maur-des-Fossés ?

Consulter la page de notre agence immobilière à Saint-Maur-des-Fossés

Vous avez un bien à vendre ?
Vous souhaitez vendre un bien immobilier ? N'hésitez pas à contacter nos experts pour effectuer l'estimation du bien immobilier concerné ou réalisez sans plus attendre une première estimation en ligne, totalement gratuite.
Estimation 100% gratuite et sans engagement !
visual product