Ce bien a été vendu par Charline
Appartement de 47.0 m² à Paris
Ce bien est vendu
12 photos
Plan 2D

Appartement à rénover - 2 pièces - 47 m2 - Lumineux, étage élevé, Parking - Métro Olympiades - Rue du Disque Paris 13ème

Rue du Disque, Paris - 2 pièces - 47.0 m² - 1 chambre

Voir la localisation

355 000 €

7 553 € / m²
Ce bien est vendu
12 photos
Plan 2D

Appartement à rénover - 2 pièces - 47 m2 - Lumineux, étage élevé, Parking - Métro Olympiades - Rue du Disque Paris 13ème Voir la localisation

Rue du Disque, Paris - 2p - 1c - 47.0 m²

355 000 €

7 553 € / m²
Votre expert immobilier
Expert Hosman Charline
Prix de mise en vente 355 000 €
Type de bien Appartement
Surface Carrez 47 m²
Surface au Sol 47 m²
Étage 19 sur 34
Période de construction De 1970 à 1980
Nombre de pièces 2
Nombre de chambres 1

Prestations

Ascenseur Parking Cave Local à vélo Fibre optique

L'œil de l'expert

Hosman vous propose à la vente ce 2 pièces lumineux d'une surface de 47 m2 Carrez, situé Rue du Disque à Paris.

L’appartement est situé au 19ème étage d'un immeuble de 1975 avec ascenseurs dans une résidence sécurisée avec gardien. Une place de parking intérieure et une cave complètent ce bien. L'immeuble dispose d'un local à vélos et poussettes.

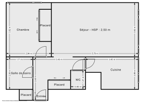
À fort potentiel, modulable et avec une vue dégagée sur les toits de Paris, ce bien se compose d'un vaste séjour de 20 m2 exposé Sud-Ouest ; d’une chambre d’une surface de 10,3 m2 ; d’une cuisine ouvrable; d’une salle de bain ; et de toilettes séparées.

Le bien se situe à 5 minutes à pied du Métro Olympiades (ligne 14) et est à proximité de la station de Métro Tolbiac (ligne 7).

La Place d’Italie se trouve à 10 minutes à pied de l’appartement ( Centre commercial Italie 2). Il est également possible de se rendre facilement dans le quartier de la Butte aux Cailles. Le Parc de Choisy à proximité également.

La taxe foncière est de 780 €.
Les charges trimestrielles de copropriété sont de 1052 €.

Hosman s'efforce de réinventer l’agence immobilière en offrant un service innovant et transparent aux acheteurs et aux vendeurs. Nos frais d'agence sont de 5900 euros fixes à la charge du vendeur. Profitez de la visite virtuelle en 3D pour vous projeter dans ce bien !

Les + du bien

- Appartement lumineux - séjour exposé Sud-Ouest
- Etage élevé - vue dégagée 
- Nombreux rangements 
- Toilettes séparées 
- Fibre 
- Parking intérieur 
- Cave 
- Local à vélo 
- Résidence sécurisée 
- À proximité des transports (L14 et L7)

Nombre de salles de bain 1
Nombre de toilettes 1
Chauffage Collectif
Eau Collectif
Type de cuisine Séparée
Exposition du séjour
Dépense énergétique
Performance énergétique (DPE)

A

B

C

D

E

F

391 kWh/m2 par an

G

Émissions de gaz à effet de serre (GES)

A

B

C

D

E

58 kg CO2/m2 par an

F

G

Localisation et quartier

Olympiades (à 410 m)
Maison Blanche (à 490 m)

Financer ce bien

Prix du bien : 355 000 €
Frais de notaire indicatifs (7,5%)
Les frais de notaire dans l'ancien sont entre 7% et 8% du prix du bien
: 26 625 €
Montant total à financer : 381 625 €
Vos mensualités
/ mois
Taux de marché
Source : creditadvisor.fr - Novembre 2025
À durée égale, les taux varient fortement d'un prêt à l'autre et des critères qui entrent en jeu comme votre profil emprunteur, votre projet immobilier ou la négociation avec les banques.
%
Votre apport
Durée du prêt
ans

Soyez alerté quand de nouvelles annonces correspondent à votre recherche !

Votre expert immobilier
Expert Hosman Charline

Vous cherchez un bien ou souhaitez vendre votre bien à Paris 13 ?

Consulter la page de notre agence immobilière à Paris 13

Vous avez un bien à vendre ?
Vous souhaitez vendre un bien immobilier ? N'hésitez pas à contacter nos experts pour effectuer l'estimation du bien immobilier concerné ou réalisez sans plus attendre une première estimation en ligne, totalement gratuite.
Estimation 100% gratuite et sans engagement !
visual product