Ce bien a été vendu par Mathieu
Appartement de 39.4 m² à Bordeaux
Ce bien est vendu
13 photos
Plan 2D

Ravissant, Appartement - 39.4 m2 - Rue Sainte-Catherine 33000 Bordeaux

Rue Sainte-Catherine, Bordeaux - 2 pièces - 39.4 m² - 1 chambre

Voir la localisation

240 000 €

6 091 € / m²
Ce bien est vendu
13 photos
Plan 2D

Ravissant, Appartement - 39.4 m2 - Rue Sainte-Catherine 33000 Bordeaux Voir la localisation

Rue Sainte-Catherine, Bordeaux - 2p - 1c - 39.4 m²

240 000 €

6 091 € / m²
Votre expert immobilier
Expert Hosman Mathieu
Prix de mise en vente 240 000 €
Type de bien Appartement
Surface Carrez 39,4 m²
Surface au Sol -
Étage 4 sur 4
Période de construction Avant 1850
Nombre de pièces 2
Nombre de chambres 1

Prestations

Cave

L'œil de l'expert

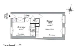
Hosman vous propose à la vente ce 2 pièces d'une surface de 39.4 m2 Carrez, situé Rue Sainte-Catherine à Bordeaux.

L’appartement est situé au dernier étage, sans ascenseur, d'un immeuble de 1850 du centre historique de Bordeaux.

Le bien se compose :
D'un séjour de 25 m2, exposé Est qui donne sur la rue mais sans nuisance sonore car au dernier étage.
D’une cuisine ouverte meublée et équipée.
D’une chambre d’une surface de 11 m2 avec placard
D’une salle de bain équipée d’une douche, un sèche serviettes et une vasque.
Ce bien comporte également des toilettes séparées.

Une cave de 5 m2 complète ce bien.

Le système de chauffage est: individuel - électrique

Les charges de copropriété s'élèvent à 260 € par trimestre.
La taxe foncière est de 715 €.

Le bien est soumis au statut de copropriété.

Chez Hosman, on vous fait gagner du temps : des annonces exhaustives pour trouver toutes les réponses à vos questions, une visite virtuelle, la prise de visite en ligne au moment qui vous arrange. C'est plus pratique et plus rapide

Hosman s'efforce de réinventer l’agence immobilière en offrant un service innovant et transparent aux acheteurs et aux vendeurs.
Nos frais d'agence sont de 4900 euros fixes à la charge du vendeur.

Les + du bien

- Dernier étage d’un bel immeuble 

- Pas de gros travaux à prévoir 

- Belle pièce de vie, lumineuse  

- Très bien entretenu 

Nombre de salles de bain 1
Nombre de toilettes 1
Chauffage Individuel - Électrique
Eau Individuel (électrique)
Type de cuisine Ouverte
Exposition du séjour Est
Dépense énergétique
Performance énergétique (DPE)

A

B

C

D

E

276 kWh/m2 par an

F

G

Émissions de gaz à effet de serre (GES)

A

B

8 kg CO2/m2 par an

C

D

E

F

G

Localisation et quartier

Financer ce bien

Prix du bien : 240 000 €
Frais de notaire indicatifs (7,5%)
Les frais de notaire dans l'ancien sont entre 7% et 8% du prix du bien
: 18 000 €
Montant total à financer : 258 000 €
Vos mensualités
/ mois
Taux de marché
Source : creditadvisor.fr - Décembre 2025
À durée égale, les taux varient fortement d'un prêt à l'autre et des critères qui entrent en jeu comme votre profil emprunteur, votre projet immobilier ou la négociation avec les banques.
%
Votre apport
Durée du prêt
ans

Soyez alerté quand de nouvelles annonces correspondent à votre recherche !

Votre expert immobilier
Expert Hosman Mathieu
Vous avez un bien à vendre ?
Vous souhaitez vendre un bien immobilier ? N'hésitez pas à contacter nos experts pour effectuer l'estimation du bien immobilier concerné ou réalisez sans plus attendre une première estimation en ligne, totalement gratuite.
Estimation 100% gratuite et sans engagement !
visual product