Ce bien a été vendu par Victor
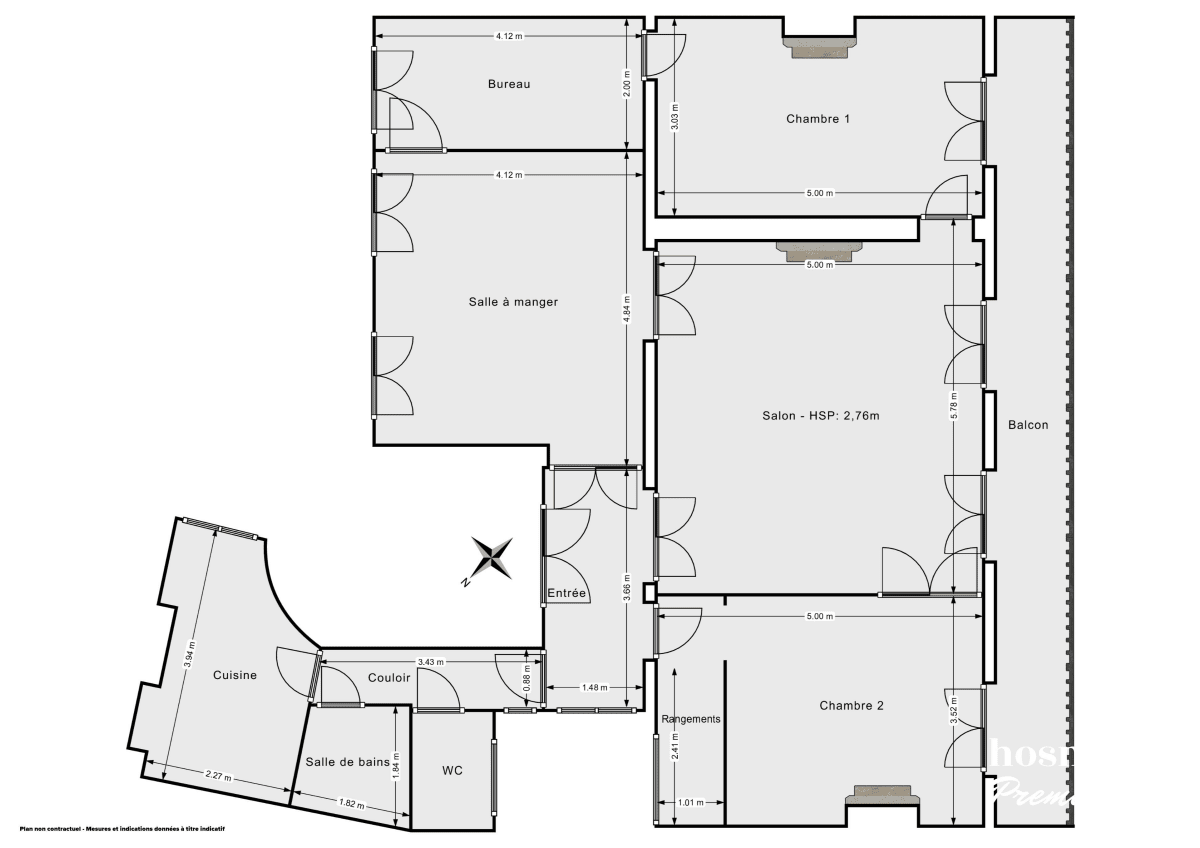
Appartement de 102.16 m² à Paris
Ce bien est vendu
DPE C
18 photos
Plan 2D

Superbe appartement traversant - 102 m2 - En étage élevé avec balcon - Métro Saint-Ambroise - 75011

Boulevard Voltaire, Paris - 5 pièces - 102.16 m² - 3 chambres

Voir la localisation

1 260 000 €

12 334 € / m²
Ce bien est vendu
DPE C
18 photos
Plan 2D

Superbe appartement traversant - 102 m2 - En étage élevé avec balcon - Métro Saint-Ambroise - 75011 Voir la localisation

Boulevard Voltaire, Paris - 5p - 3c - 102.16 m²

1 260 000 €

12 334 € / m²
Votre expert immobilier
Expert Hosman Victor
Prix de mise en vente 1 260 000 €
Type de bien Appartement
Surface Carrez 102,16 m²
Surface au Sol 102,16 m²
Étage 5 sur 6
Période de construction De 1850 à 1913
Nombre de pièces 5
Nombre de chambres 3

Prestations

Ascenseur Cave Balcon

L'œil de l'expert

Hosman vous propose à la vente ce très beau 5 pièces traversant d'une surface de 102.16 m2 loi carrez, situé boulevard Voltaire à Paris.

Avec un seul appartement par niveau, le bien se trouve au 5ème étage avec ascenseur d'un bel immeuble haussmannien bien entretenu.
Un gardien réside dans l’immeuble.

Offrant de belles prestations (parquet point de Hongrie, moulures et cheminées), le bien se compose :
D'un séjour lumineux orienté Sud Ouest auquel est rattaché un balcon filant de 7 m2; d'une salle à manger; de 3 chambres; d’une cuisine séparée; d’une salle de bain.
Ce bien comporte également des toilettes séparées.

Une cave complète le bien.

Bénéficiant d'un emplacement idéal, l'appartement est à proximité de toutes les commodités.

Le bien est équipé d'une chaudière au gaz individuelle.

Les charges de copropriété s'élèvent à 1100 € par trimestre.
La taxe foncière est entre 1200 et 1300€.

Le bien est soumis au statut de copropriété.

Chez Hosman, on vous évite des appels inutiles, et on vous fait gagner du temps : des annonces exhaustives pour trouver toutes les réponses à vos questions, une visite virtuelle, la prise de visite en ligne au moment qui vous arrange. C'est plus pratique et plus rapide

Hosman s'efforce de réinventer l’agence immobilière en offrant un service innovant et transparent aux acheteurs et aux vendeurs.
Nos frais d'agence sont de 8900 euros fixes à la charge du vendeur.

Les + du bien

- Bon état général
- Charme de l'ancien: parquet point de Hongrie, moulures et cheminées
- En étage élevé avec ascenseur
- Très lumineux 
- Secteur recherché du 11ème arrondissement (Saint-Ambroise)

Nombre de salles de bain 1
Nombre de toilettes 1
Chauffage Individuel - Gaz
Eau
Type de cuisine Séparée
Exposition du séjour Sud Ouest
Dépense énergétique
Performance énergétique (DPE)

A

B

C

97 kWh/m2 par an

D

E

F

G

Émissions de gaz à effet de serre (GES)

A

B

C

D

22 kg CO2/m2 par an

E

F

G

Votre expert Hosman

Logement très performant : faible consommation énergétique.

Localisation et quartier

Saint-Ambroise (à 20 m)
Richard Lenoir (à 250 m)
Parmentier (à 400 m)

Financer ce bien

Prix du bien : 1 260 000 €
Frais de notaire indicatifs (7,5%)
Les frais de notaire dans l'ancien sont entre 7% et 8% du prix du bien
: 94 500 €
Montant total à financer : 1 354 500 €
Vos mensualités
/ mois
Taux de marché
Source : creditadvisor.fr - Décembre 2025
À durée égale, les taux varient fortement d'un prêt à l'autre et des critères qui entrent en jeu comme votre profil emprunteur, votre projet immobilier ou la négociation avec les banques.
%
Votre apport
Durée du prêt
ans

Soyez alerté quand de nouvelles annonces correspondent à votre recherche !

Votre expert immobilier
Expert Hosman Victor

Vous cherchez un bien ou souhaitez vendre votre bien à Paris 11 ?

Consulter la page de notre agence immobilière à Paris 11

Vous avez un bien à vendre ?
Vous souhaitez vendre un bien immobilier ? N'hésitez pas à contacter nos experts pour effectuer l'estimation du bien immobilier concerné ou réalisez sans plus attendre une première estimation en ligne, totalement gratuite.
Estimation 100% gratuite et sans engagement !
visual product