Ce bien a été vendu par Stacy
Maison de 90.0 m² à Martignas-sur-Jalle
Ce bien est vendu
17 photos
Plan 2D

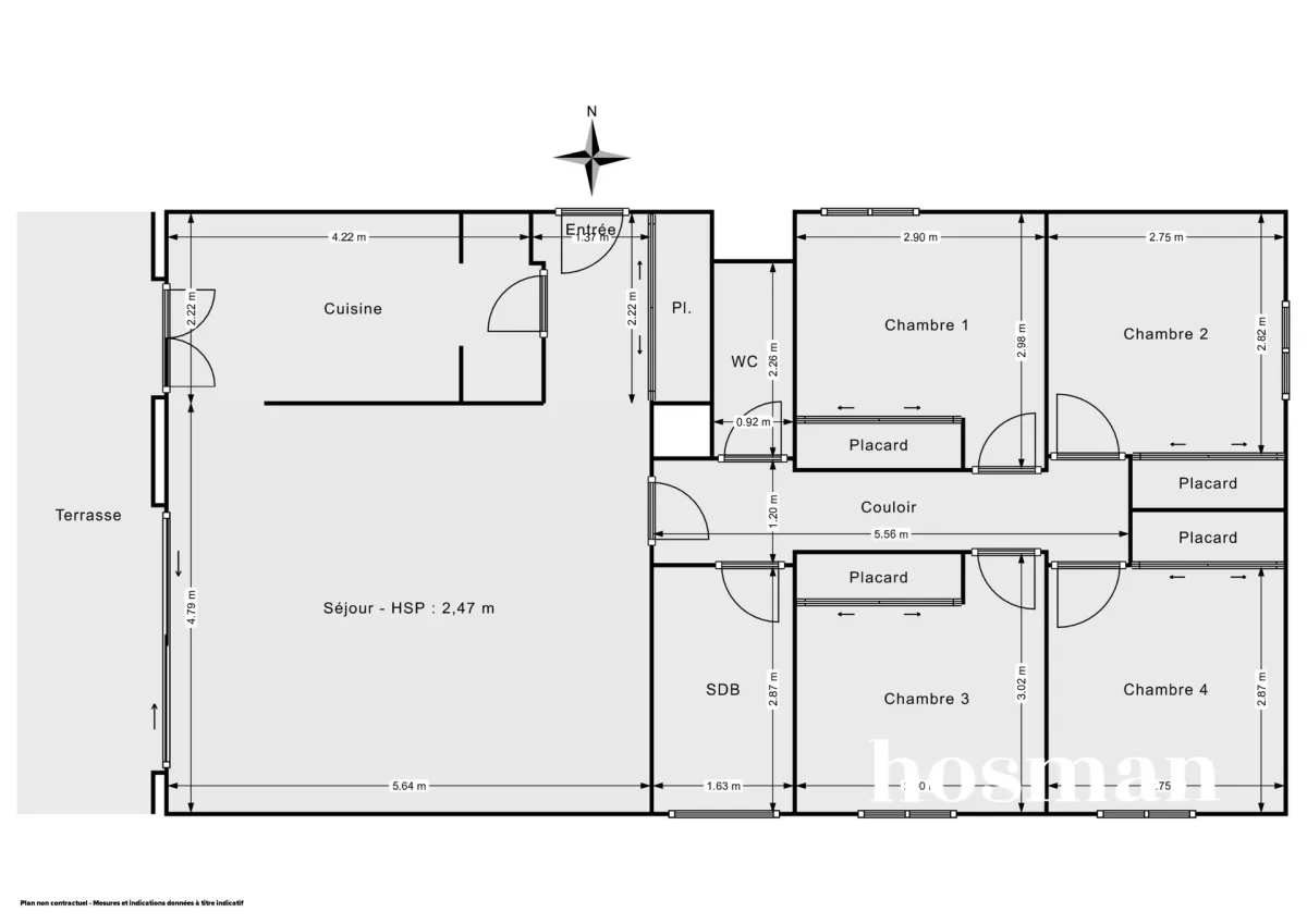
Maison de 90.0 m2 - Le Domaine des Bruyères - Rue des Bateleurs 33127 Martignas-sur-Jalle

Martignas-sur-Jalle - 5 pièces - 90.0 m² - 4 chambres

Voir la localisation

326 000 €

3 622 € / m²
Ce bien est vendu
17 photos
Plan 2D

Maison de 90.0 m2 - Le Domaine des Bruyères - Rue des Bateleurs 33127 Martignas-sur-Jalle Voir la localisation

Martignas-sur-Jalle - 5p - 4c - 90.0 m²

326 000 €

3 622 € / m²
Votre expert immobilier
Expert Hosman Stacy
Prix de mise en vente 326 000 €
Type de bien Maison
Surface habitable 90 m²
Surface au sol 90 m²
Période de construction De 1992 à 2000
Nombre de pièces 5
Nombre de chambres 4

Prestations

2 parkings Garage Jardin Fibre optique

L'œil de l'expert

Hosman vous propose à la vente cette maison de 5 pièces (4 chambres) d'une surface habitable de 90.0 m2, situé Rue des Bateleurs à Martignas-sur-Jalle.

Profitez de la visite virtuelle en 3D pour vous projeter dans ce bien !
Si vous souhaitez le visiter, choisissez le créneau qui vous convient le mieux et planifiez votre visite en toute autonomie, depuis notre site hosman . co

Dans une résidence calme, sécurisée, bien entretenue et disposant d'une piscine commune, sur un terrain de 130 m2, la maison est construite de plain pied , comme suit :

L'entrée de la maison donne sur la partie "espace de vie", celle-ci est composée d'un grand séjour et d'une cuisine. Cet espace dispose également d'un grand placard de rangement intégré.

Directement sur votre droite vous trouverez la cuisine, séparée et lumineuse, de près de 10 m2, disposant de rangements intégrés et donnant accès à la terrasse du jardin.

Le séjour d'une belle surface de plus de 26 m2, est exposé plein Ouest et donne également sur le jardin via la terrasse.

Un couloir partant du séjour dessert les chambres, les wc et la salle de bain.

Cette dernière est équipée d'une baignoire, d'un ouverture sur l'extérieur et d'une double vasque.

Des toilettes séparés se trouvent face à la salle de bain.

Les chambres sont toutes adjacentes et se font faces les unes aux autres, deux par deux. Elles disposent toutes les quatre d'un placard de rangement intégré.

La première chambre donne vue sur la cour à l'entrée de la maison et sur l'emplacement réservé aux voitures, elle mesure une surface d'environ 9m2.

La seconde, d'une surface d'environ 9 m2 également, dispose d'une fenêtre qui donne sur le petit jardinet à l'avant de la maison.

La troisième et la quatrième, font face aux deux premières et donnent sur le jardin entourant la maison par le côté. Elles mesurent toutes les deux environ 9 m2.

L'espace extérieur est composé de deux places de parking à l'avant de la maison ainsi que d'un grand espace de stockage/atelier dans lequel vous pourrez bricoler aisément.

Le jardin à l'arrière de la maison bénéficie d'une exposition plein Ouest. Il est équipé d'un cabanon vous permettant de stocker votre mobilier de jardin ou encore vos appareils de jardinage.
Une terrasse abritée de près de 10 m2 longe la cuisine et le séjour, vous apprécierez y manger les durant les beaux jours.

La maison est idéalement située dans un quartier calme et résidentiel.

À proximité directe du collège Aliénor d’Aquitaine et de l’école primaire Jean de la Fontaine, la maison est au coeur de l’écosystème de Martignas Sur Jalles.

À équidistance du Bassin d’Arcachon et du centre ville de Bordeaux, la maison se trouve également à quelques minutes de voiture de l’aéroport de Bordeaux.

Le système de chauffage est individuel et électrique

La taxe foncière est de 939 €.
Le bien est soumis au statut de copropriété

Hosman s'efforce de réinventer l’agence immobilière en offrant un service innovant et transparent aux acheteurs et aux vendeurs.
Nos frais d'agence sont de 5900 euros fixes à la charge du vendeur.

Les + du bien

- Parties communes sécurisée et entretenues 

- Jardin verdoyant et bien exposé 

- Deux places de parking et plusieurs espaces de stockage 

Nombre de salles de bain 1
Nombre de toilettes 1
Chauffage Individuel - Électrique
Eau Individuel (électrique)
Type de cuisine Semi-ouverte
Exposition du séjour Ouest

Localisation et quartier

Financer ce bien

Prix du bien : 326 000 €
Frais de notaire indicatifs (7,5%)
Les frais de notaire dans l'ancien sont entre 7% et 8% du prix du bien
: 24 450 €
Montant total à financer : 350 450 €
Vos mensualités
/ mois
Taux de marché
Source : creditadvisor.fr - Décembre 2025
À durée égale, les taux varient fortement d'un prêt à l'autre et des critères qui entrent en jeu comme votre profil emprunteur, votre projet immobilier ou la négociation avec les banques.
%
Votre apport
Durée du prêt
ans

Soyez alerté quand de nouvelles annonces correspondent à votre recherche !

Votre expert immobilier
Expert Hosman Stacy

Vous cherchez un bien ou souhaitez vendre votre bien à Saint-Jean-d'Illac ?

Consulter la page de notre agence immobilière à Saint-Jean-d'Illac

Vous avez un bien à vendre ?
Vous souhaitez vendre un bien immobilier ? N'hésitez pas à contacter nos experts pour effectuer l'estimation du bien immobilier concerné ou réalisez sans plus attendre une première estimation en ligne, totalement gratuite.
Estimation 100% gratuite et sans engagement !
visual product