Ce bien a été vendu par Laurian
Maison de 65.0 m² à Fontenay-aux-Roses
Ce bien est vendu
16 photos
Plan 2D

A rénover Maison de 64,17 m2 - Quartier Blagis - Gare - Fontenay aux Roses - Rue André Chénier 92260 Fontenay-aux-Roses

Rue André Chénier, Fontenay-aux-Roses - 3 pièces - 65.0 m² - 2 chambres

Voir la localisation

299 000 €

4 600 € / m²
Ce bien est vendu
16 photos
Plan 2D

A rénover Maison de 64,17 m2 - Quartier Blagis - Gare - Fontenay aux Roses - Rue André Chénier 92260 Fontenay-aux-Roses Voir la localisation

Rue André Chénier, Fontenay-aux-Roses - 3p - 2c - m²

299 000 €

4 600 € / m²
Votre expert immobilier
Expert Hosman Laurian
Prix de mise en vente 299 000 €
Type de bien Maison
Surface habitable 65 m²
Surface au sol -
Période de construction De 1948 à 1969
Nombre de pièces 3
Nombre de chambres 2

Prestations

Jardin

L'œil de l'expert

Hosman vous propose à la vente cette maison à rénover de 3 pièces (2 chambres) d'une surface habitable de 64,17 m2, situé Rue André Chénier à Fontenay-aux-Roses.

La maison, sans mur mitoyen et sur un terrain de 90 m2, est construite sur 2 niveaux, comme suit :

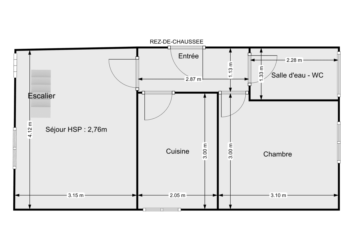
Au RDC :
D'une entré de 2,85 m2 desservant le reste de l'étage
D'un séjour de 13 m2, exposé Sud qui donne sur la petite courette de l'entrée de la maison.
D’une cuisine séparée de 5,85 m2.
D'une chambre de 8,65 m2
D'une salle d'eau de 2,85 m2

Au 1er étage :
D'une grande chambre lumineuse, avec poutres apparentes, de 30,77 m2, exposé Sud, Est et Ouest.

A l'extérieur vous trouverez un petit jardin / terrasse d'environ 45 m2, sans vis à vis.

L'ensemble des murs ainsi que la toiture de la maison ont été rénovés en 2010, comprenant le cerclage de la maison, le changement et la surélévation de la toiture, ainsi que l'isolation et le ravalement.

Une structure saine avec un intérieur vous offrant de nombreuses possibilités d'aménagement.

Le bien se situe à 8 minutes à pied de la station de RER B, Fontenay Aux Roses.

Le système de chauffage est : individuel - électrique

La taxe foncière est de 438 €.

Chez Hosman, nous souhaitons réinventer l’agence immobilière en offrant un service innovant et transparent aux acheteurs et aux vendeurs.

Nos frais de commercialisation sont de 4 900 euros fixes à la charge du vendeur.
L'équipe Hosman se tient à votre disposition pour répondre à vos questions, organiser une visite ou une estimation de votre bien actuel si cet achat dépend de la vente de votre domicile.

Les + du bien

- Petite Maisonnette au coeur de Fontenay aux Roses 
- Maison sans mur mitoyen
- Petit jardin sans vis à vis 
- Multiple possibilités d’aménagement 
- Etage lumineux 
- Maison très calme 
- Toiture, isolation et cerclage de la maison rénovés - Structure saine 
- Proche des commodités - RER B, Station Fontenay Aux Roses à 8 min à pied du logement 

Nombre de salles de bain 1
Nombre de toilettes 1
Chauffage Individuel - Gaz
Eau Individuel (gaz)
Type de cuisine Séparée
Exposition du séjour Sud
Dépense énergétique
Performance énergétique (DPE)

A

B

C

D

E

F

439 kWh/m2 par an

G

Émissions de gaz à effet de serre (GES)

A

B

C

D

25 kg CO2/m2 par an

E

F

G

Localisation et quartier

Fontenay-aux-Roses (à 340 m)

Financer ce bien

Prix du bien : 299 000 €
Frais de notaire indicatifs (7,5%)
Les frais de notaire dans l'ancien sont entre 7% et 8% du prix du bien
: 22 425 €
Montant total à financer : 321 425 €
Vos mensualités
/ mois
Taux de marché
Source : creditadvisor.fr - Décembre 2025
À durée égale, les taux varient fortement d'un prêt à l'autre et des critères qui entrent en jeu comme votre profil emprunteur, votre projet immobilier ou la négociation avec les banques.
%
Votre apport
Durée du prêt
ans

Soyez alerté quand de nouvelles annonces correspondent à votre recherche !

Votre expert immobilier
Expert Hosman Laurian
Vous avez un bien à vendre ?
Vous souhaitez vendre un bien immobilier ? N'hésitez pas à contacter nos experts pour effectuer l'estimation du bien immobilier concerné ou réalisez sans plus attendre une première estimation en ligne, totalement gratuite.
Estimation 100% gratuite et sans engagement !
visual product