Ce bien a été vendu par Robin
Appartement de 86.0 m² à Boulogne-Billancourt
Ce bien est vendu
14 photos
Plan 2D

Ravissant appartement - 86.0 m2 - Rue de l'Est 92100 Boulogne-Billancourt

Rue de l'Est, Boulogne-Billancourt - 4 pièces - 86.0 m² - 3 chambres

Voir la localisation

830 000 €

9 651 € / m²
Ce bien est vendu
14 photos
Plan 2D

Ravissant appartement - 86.0 m2 - Rue de l'Est 92100 Boulogne-Billancourt Voir la localisation

Rue de l'Est, Boulogne-Billancourt - 4p - 3c - 86.0 m²

830 000 €

9 651 € / m²
Votre agent immobilier
Agent Hosman Robin
Prix de mise en vente 830 000 €
Type de bien Appartement
Surface Carrez 86 m²
Surface au Sol 86 m²
Étage 2 sur 8
Période de construction
Nombre de pièces 4
Nombre de chambres 3

Prestations

Ascenseur Cave Balcon

L'œil de l'agent

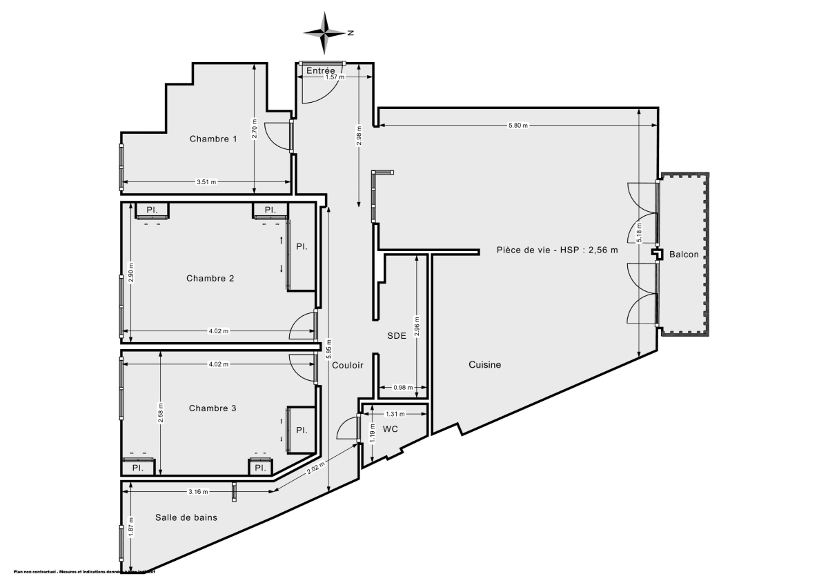
Hosman vous propose à la vente ce 4 pièces d'une surface de 86.0 m2 Carrez, situé Rue de l'Est à Boulogne-Billancourt.

L’appartement est situé au 2ème étage immeuble, et un ascenseur est présent dans l’immeuble.
La résidence est également sécurisée et un gardien réside dans l’immeuble.

Le bien se compose :
- D'un séjour spacieux et lumineux, exposé Nord.
- Un balcon de 5.5 m2 est rattaché au séjour et exposé Nord.
- De 3 chambres calmes, sur cour.
- D’une cuisine ouverte sur le séjour, moderne et parfaitement équipée.
- De deux salles d'eau équipées de baignoire et douche à l'italienne.
- Ce bien comporte également des toilettes séparées.

Une cave complète ce bien etUn local à vélo / un local à poussette est également présent dans l’immeuble.

Bien idéalement situé dans un quartier commerçant, parfaitement desservi par les
transports (ligne 9 et ligne 10).
À proximité directe de la porte de saint-cloud, l’appartement est au plus proche du coeur de l’écosystème parisien.
Le bois de boulogne se trouve à seulement quelques minutes à pied de l’appartement.

Le système de chauffage est: collectif au gaz

Les charges de copropriété s'élèvent à 875 € par trimestre.


Le bien est soumis au statut de copropriété.

Chez Hosman, on vous évite des appels inutiles, et on vous fait gagner du temps : des annonces exhaustives pour trouver toutes les réponses à vos questions, une visite virtuelle, la prise de visite en ligne au moment qui vous arrange. C'est plus pratique et plus rapide

Hosman s'efforce de réinventer l’agence immobilière en offrant un service innovant et transparent aux acheteurs et aux vendeurs.
Nos frais d'agence sont de 4900 euros fixes à la charge du vendeur.

Les + du bien

- Refait à neuf

- Bon agencement

- Séjour spacieux / Lumineux

- Deux salle d’eau

- Toilettes séparées

- Rangement optimisé

- Balcon

- Gardien

- Cave

Nombre de salles de bain 2
Nombre de toilettes 1
Chauffage
Eau
Type de cuisine Ouverte
Exposition du séjour Nord

Localisation et quartier

Financer ce bien

Prix du bien : 830 000 €
Frais de notaire indicatifs (7,5%)
Les frais de notaire dans l'ancien sont entre 7% et 8% du prix du bien
: 62 250 €
Montant total à financer : 892 250 €
Vos mensualités
/ mois
Taux de marché
Source : creditadvisor.fr - Avril 2026
À durée égale, les taux varient fortement d'un prêt à l'autre et des critères qui entrent en jeu comme votre profil emprunteur, votre projet immobilier ou la négociation avec les banques.
%
Votre apport
Durée du prêt
ans

Soyez alerté quand de nouvelles annonces correspondent à votre recherche !

Votre agent immobilier
Agent Hosman Robin

Vous cherchez un bien ou souhaitez vendre votre bien à Boulogne-Billancourt ?

Consulter la page de notre agence immobilière à Boulogne-Billancourt

Vous avez un bien à vendre ?
Vous souhaitez vendre un bien immobilier ? N'hésitez pas à contacter nos agents pour effectuer l'estimation du bien immobilier concerné ou réalisez sans plus attendre une première estimation en ligne, totalement gratuite.
Estimation 100% gratuite et sans engagement !
visual product