Ce bien a été vendu par Alexandra
Appartement de 79.76 m² à Saint-Cloud
Ce bien est vendu
16 photos
Plan 2D

Beau et spacieux 3 pièces de 80m2 avec 12m2 de balcons - rue du Mont-Valérien - 92210 Saint-Cloud

Rue du Mont Valérien, Saint-Cloud - 3 pièces - 79.76 m² - 2 chambres

Voir la localisation

628 000 €

7 874 € / m²
Ce bien est vendu
16 photos
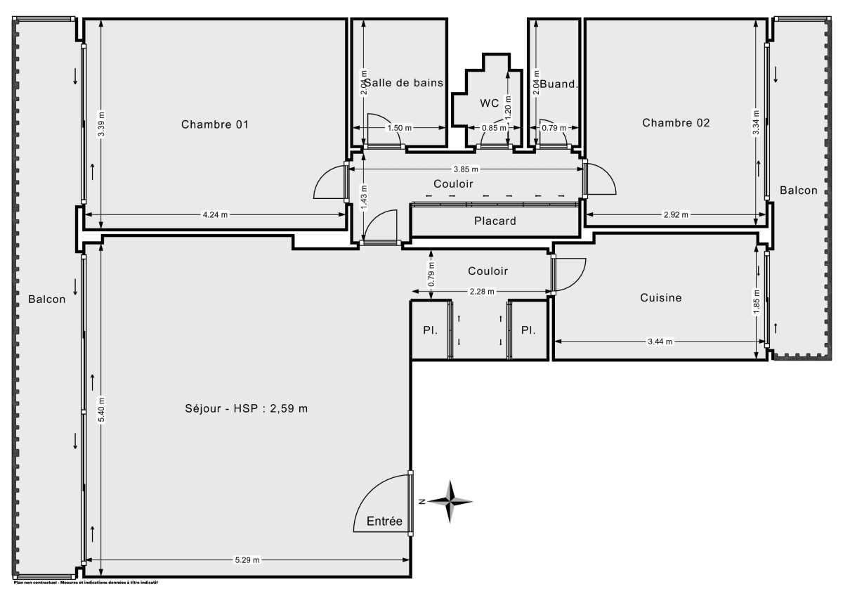
Plan 2D

Beau et spacieux 3 pièces de 80m2 avec 12m2 de balcons - rue du Mont-Valérien - 92210 Saint-Cloud Voir la localisation

Rue du Mont Valérien, Saint-Cloud - 3p - 2c - 79.76 m²

628 000 €

7 874 € / m²
Votre expert immobilier
Expert Hosman Alexandra
Prix de mise en vente 628 000 €
Type de bien Appartement
Surface Carrez 79,76 m²
Surface au Sol 80 m²
Étage 4 sur 5
Période de construction De 1948 à 1969
Nombre de pièces 3
Nombre de chambres 2

Prestations

Ascenseur Parking Cave Balcon

L'œil de l'expert

Hosman vous propose à la vente ce beau et spacieux 3 pièces d'une surface de 79,76m2 Carrez, situé rue du Mont-Valérien, dans le charmant quartier du Val d'Or, à Saint-Cloud.

Il se situe au 4ème étage avec ascenseur d'une copropriété de bon standing très bien entretenue, arborée et sécurisée (présence d'une gardienne).

L’appartement, lumineux (traversant) et calme, bénéficie de beaux volumes de vie d'un bon aménagement et d'un plan à la circulation fluide et agréable.

Il se compose d'une très spacieuse pièce de vie de 35m2 à la vue dégagée et lumineux avec ses grandes baies vitrées donnant accès à un balcon filant de 8m2, d'une cuisine séparée très fonctionnelle et équipée (qui donne également accès à un balcon de 4m2). Il se compose également de deux belles chambres, d'une salle de bain avec baignoire et double-vasque, d'un WC séparé et d'un espace buanderie. Nombreux placards de rangements au sein de l'appartement, aucune perte de place.

Une cave saine et bétonnée ainsi qu'une place de parking situées en sous-sol et en accès direct complètent ce bien.

Le bien est idéalement situé à moins de 5 minutes à pied de la Gare du Val d'Or (transilien L), et à 7 minutes à pied du tramway 2, vous permettant de rejoindre le coeur de la capitale en moins d'une demie heure et la Défense en 10 minutes.

Sa localisation vous permet ainsi de bénéficier d'une très bonne connexion tout en vous offrant un cadre de vie des plus agréables, étant à proximité des commerces de quartier, des écoles (de la maternelle au lycée) et des espaces verts tels que le Golf de Paris et l'Hippodrome de Saint-Cloud, le Bois de Boulogne, le Domaine National de Saint-Cloud... A noter que la copropriété se situe en face du complexe sportif des Tourneroches et vous permettra de vous adonner à toute forme d'activité sportive (natation, tennis...)

Le système de chauffage et d'eau chaude est collectif.
Les charges de copropriété s'élèvent à 950€ par trimestre (comprenant notamment le chauffage, l'eau, l'entretien des espaces verts et le gardien). La taxe foncière annuelle s’élève quant à elle à 1350 €.
Le bien est soumis au statut de copropriété. Cette dernière est composée de 98 lots, parkings, boxs et caves inclus.

Chez Hosman, nous souhaitons réinventer l’agence immobilière en offrant un service innovant et transparent aux acheteurs et aux vendeurs.

Nos frais de commercialisation sont de 4 900 euros fixes à la charge du vendeur.
L'équipe Hosman se tient à votre disposition pour répondre à vos questions, organiser une visite ou une estimation de votre bien actuel si cet achat dépend de la vente de votre domicile.

Les + du bien

- Appartement en bon état proposant de beaux volumes de vie
- Cuisine équipée et fonctionnelle
- Calme
- Lumineux, traversant
- Vue dégagée
- Deux beaux balcons filants de 12m2 au total
- Cave
- Place de parking en sous-sol
- Ascenseur
- Très bien situé proche des transports, commerces, écoles et espaces verts

Nombre de salles de bain 1
Nombre de toilettes 1
Chauffage
Eau
Type de cuisine Séparée
Exposition du séjour Nord
Dépense énergétique
Performance énergétique (DPE)

A

B

C

D

E

295 kWh/m2 par an

F

G

Émissions de gaz à effet de serre (GES)

A

B

C

D

E

F

69 kg CO2/m2 par an

G

Localisation et quartier

Le Val d'Or (à 340 m)

Financer ce bien

Prix du bien : 628 000 €
Frais de notaire indicatifs (7,5%)
Les frais de notaire dans l'ancien sont entre 7% et 8% du prix du bien
: 47 100 €
Montant total à financer : 675 100 €
Vos mensualités
/ mois
Taux de marché
Source : creditadvisor.fr - Décembre 2025
À durée égale, les taux varient fortement d'un prêt à l'autre et des critères qui entrent en jeu comme votre profil emprunteur, votre projet immobilier ou la négociation avec les banques.
%
Votre apport
Durée du prêt
ans

Soyez alerté quand de nouvelles annonces correspondent à votre recherche !

Votre expert immobilier
Expert Hosman Alexandra

Vous cherchez un bien ou souhaitez vendre votre bien à Saint-Cloud ?

Consulter la page de notre agence immobilière à Saint-Cloud

Vous avez un bien à vendre ?
Vous souhaitez vendre un bien immobilier ? N'hésitez pas à contacter nos experts pour effectuer l'estimation du bien immobilier concerné ou réalisez sans plus attendre une première estimation en ligne, totalement gratuite.
Estimation 100% gratuite et sans engagement !
visual product