Ce bien a été vendu par Nicolas
Appartement de 73.0 m² à Le Kremlin-Bicêtre
14 photos
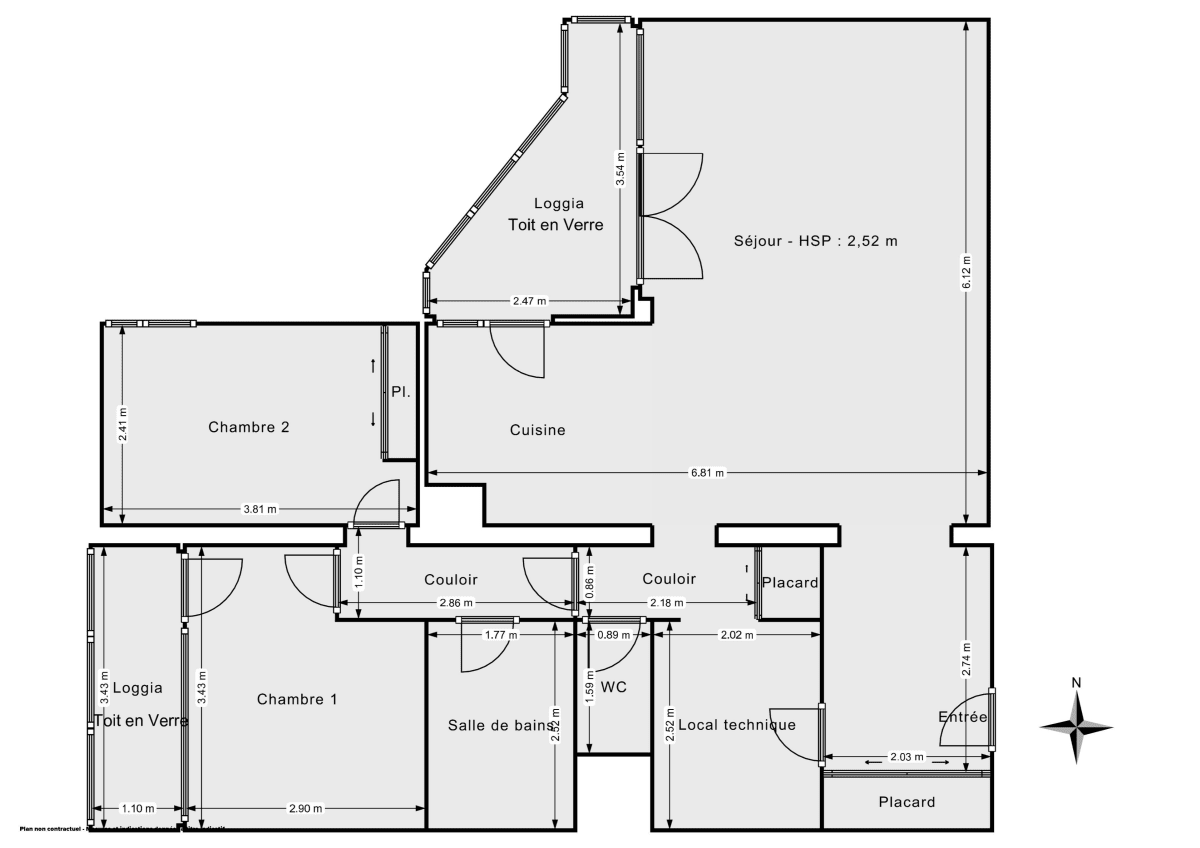
Plan 2D

Très beau et lumineux 3/4 pièces de 73m2 au coeur du Kremlin-Bicêtre - avenue Eugène Thomas - 94270 Le Kremlin-Bicêtre

Avenue Eugène Thomas, Le Kremlin-Bicêtre - 4 pièces - 73.0 m² - 2 chambres

Voir la localisation

450 000 €

6 164 € / m²
Votre agent Hosman

Nicolas Maechler

01 84 80 61 19


Informations clés

Prix de mise en vente 450 000 €
Type de bien Appartement
Surface Carrez 73 m²
Surface au Sol 87 m²
Étage 4 sur 4
Nombre de pièces 4
Nombre de chambres 2
Période de construction De 1970 à 1980

Prestations

Ascenseur
Parking
Local à vélo
Balcon
Fibre optique

L'œil de l'agent

Hosman vous propose à la vente ce 4 pièces d'une surface de 73m2 Carrez, situé avenue Eugène Thoms au coeur du Kremlin-Bicêtre.

L’appartement est situé au 4ème et dernier étage, avec ascenseur, d'un immeuble bien entretenu et sécurisé (présence d'une gardienne).

Très calme(double-vitrage), lumineux, à la peinture fraîchement refaite et à la vue dégagée, le bien bénéficie d'un plan optimisé, à la circulation fluide et agréable et de nombreux rangements.

Il se compose :
- D'un séjour de 25 m2, exposé Sud-Est donnant sur une loggia vitrée de 7m2
- D'une cuisine semi-ouverte, aménagée et équipée de 6m2
- De 2 chambres d’une surface de 10 m2 dont une donnant sur une véranda de 3,4m2
- D'un bureau de 5m2
- D’une salle de bain de 4,39 m2 avec baignoire
- D'un WC séparé

Un local sur le palier partagé entre les 5 copropriétaires complète ce bien, ainsi qu'une place de parking en sous-sol. Présence d'un local à vélos également.

Le bien se situe à 3 minutes à pied de la station de métro Kremlin-Bicêtre (M7) et du centre commercial Okabé, et à proximité immédiate de tous les commerces et restaurants de quartier, ainsi que de la Médiathèque, de l'Hôpital et du parc Pinel.

Le système de chauffage est collectif.
Les charges de copropriété s'élèvent à 681€ par trimestre. (Chauffage, parking, ascenseur et gardien).
La taxe foncière est de 1455 €.
Le bien est soumis au statut de copropriété.

Chez Hosman, on vous évite des appels inutiles, et on vous fait gagner du temps : des annonces exhaustives pour trouver toutes les réponses à vos questions, une visite virtuelle, la prise de visite en ligne au moment qui vous arrange. C'est plus pratique et plus rapide

Hosman s'efforce de réinventer l’agence immobilière en offrant un service innovant et transparent aux acheteurs et aux vendeurs.
Nos frais d'agence sont de 5 900 euros fixes à la charge du vendeur.

Les + du bien

- Bon état
- Très lumineux
- Calme
- Vue dégagée
- Nombreux rangements
- Loggias
- Parking
- Ascenseur
- Gardienne
- Copropriété bien entretenue
- Proche commerces et transports

Intérieur

Nombre de salles de bain 1
Nombre de toilettes 1
Chauffage Collectif
Eau Collectif
Type de cuisine Semi-ouverte
Exposition du séjour Sud Est

Dépense énergétique

Performance énergétique (DPE)

A
B
C
D
233
kWh/m2 par an
E
F
G

Émissions de gaz à effet de serre (GES)

A
B
C
17
kg CO2/m2 par an
D
E
F
G
Votre agent Hosman

Logement très performant : faible consommation énergétique.

Localisation et quartier

Le Kremlin - Bicêtre (à 190 m)
Transport
<span class="translation_missing" title="translation missing: fr.advert_map_alt">Advert Map Alt</span>

Financer ce bien

Prix du bien : 450 000 €

Frais de notaire indicatifs (7,5%)
Les frais de notaire dans l'ancien sont entre 7% et 8% du prix du bien

33 750 €

Montant total à financer :

483 750 €

Vos mensualités

/ mois
Taux de marché

Source : creditadvisor.fr - Mai 2026

À durée égale, les taux varient fortement d'un prêt à l'autre et des critères qui entrent en jeu comme votre profil emprunteur, votre projet immobilier ou la négociation avec les banques.

%

ans

Soyez alerté quand de nouvelles annonces correspondent à votre recherche !

Vous cherchez un bien ou souhaitez vendre votre bien à Le Kremlin-Bicêtre ?

Consulter la page de notre agence immobilière à Le Kremlin-Bicêtre

Photo 1 - Appartement 73.0 Le Kremlin-Bicêtre
Photo 2 - Appartement 73.0 Le Kremlin-Bicêtre
Photo 3 - Appartement 73.0 Le Kremlin-Bicêtre
Photo 4 - Appartement 73.0 Le Kremlin-Bicêtre
Photo 5 - Appartement 73.0 Le Kremlin-Bicêtre
Photo 6 - Appartement 73.0 Le Kremlin-Bicêtre
Photo 7 - Appartement 73.0 Le Kremlin-Bicêtre
Photo 8 - Appartement 73.0 Le Kremlin-Bicêtre
Photo 9 - Appartement 73.0 Le Kremlin-Bicêtre
Photo 10 - Appartement 73.0 Le Kremlin-Bicêtre
Photo 11 - Appartement 73.0 Le Kremlin-Bicêtre
Photo 12 - Appartement 73.0 Le Kremlin-Bicêtre
Photo 13 - Appartement 73.0 Le Kremlin-Bicêtre
Plan 2D - Appartement 73.0 Le Kremlin-Bicêtre

Vous avez un bien à vendre ?

Vous souhaitez vendre un bien immobilier ? N'hésitez pas à contacter nos agents pour effectuer l'estimation du bien immobilier concerné ou réalisez sans plus attendre une première estimation en ligne, totalement gratuite.

Estimer mon bien

Estimation 100% gratuite et sans engagement !

visual product
Découvrez La Boussole,
le point immo par Hosman.
Recevez un décryptage du marché et des conseils d'agents pour vous guider dans votre projet immobilier.
Fait à Paris - © 2017 - 2026 tous droits réservés Hosman