Ce bien a été vendu par Margaux
Appartement de 70.38 m² à Paris
Ce bien est vendu
DPE D
15 photos
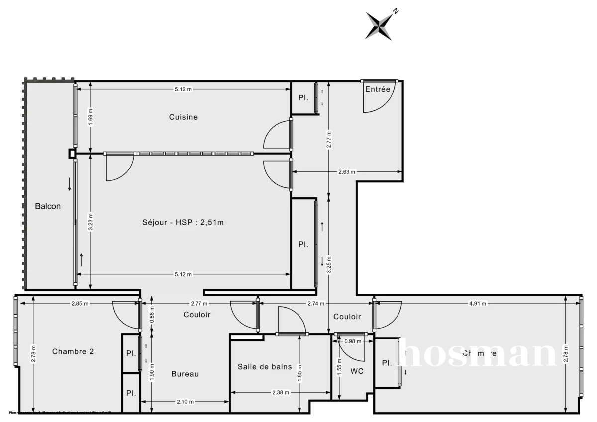
Plan 2D

GAMBETTA - Coup de coeur pour ce 3 pièces de 70m2 en étage élevé avec vue dégagée et grand balcon de 5,85m2

Rue Stendhal, Paris - 3 pièces - 70.38 m² - 2 chambres

Voir la localisation

726 000 €

10 315 € / m²
Ce bien est vendu
DPE D
15 photos
Plan 2D

GAMBETTA - Coup de coeur pour ce 3 pièces de 70m2 en étage élevé avec vue dégagée et grand balcon de 5,85m2 Voir la localisation

Rue Stendhal, Paris - 3p - 2c - 70.38 m²

726 000 €

10 315 € / m²
Votre expert immobilier
Expert Hosman Margaux
Prix de mise en vente 726 000 €
Type de bien Appartement
Surface Carrez 70,38 m²
Surface au Sol 70,63 m²
Étage 6 sur 7
Période de construction De 1970 à 1980
Nombre de pièces 3
Nombre de chambres 2

Prestations

Ascenseur Cave Balcon Fibre optique

L'œil de l'expert

Hosman vous propose à la vente ce 3 pièces d'une surface de 70,38 m2 Carrez, situé Rue Stendhal à Paris.

L’appartement est situé au 6ème étage sur 7 d'un immeuble des années 70 avec ascenseur, bien entretenu. Aucun gros poste de travaux n'est à prévoir.
La résidence est également sécurisée et un gardien réside dans l’immeuble.

Le bien a été entièrement rénové, il est traversant et très lumineux.
La distribution idéale de l'appartement présente :
Un agréable séjour lumineux, exposé Ouest, donnant accès au grand balcon de 6,85m2 avec belle vue dégagée,
Une cuisine séparée par verrière, toute équipée,
De 2 chambres de 13m2 dont une aménagée en chambre + espace bureau,
D’une salle de bain avec baignoire,
De WC séparés.

Une cave en -2 complète ce bien.

Le bien se situe à 1 min de la station Gambetta (métro ligne 3 et 3B) et de tous ses commerces. Le cimetière du Père Lachaise est à 500m.

Le système de chauffage est: Collectif

Les charges de copropriété s'élèvent à 930€ par trimestre et comprennent l'entretien courant, l'ascenseur, l'eau froide et chaude ainsi que le chauffage.
La taxe foncière est de 840€.

Le bien est soumis au statut de copropriété.

Les + du bien

- Quartier dynamique très recherché
- Immeuble bien tenu et sécurisé
- Etage élevé avec ascenseur
- Excellent état
- Très lumineux
- Vue dégagée
- Une cave

Nombre de salles de bain 1
Nombre de toilettes 1
Chauffage Collectif
Eau Collectif
Type de cuisine Ouverte
Exposition du séjour Ouest
Dépense énergétique
Performance énergétique (DPE)

A

B

C

D

228 kWh/m2 par an

E

F

G

Émissions de gaz à effet de serre (GES)

A

B

C

D

49 kg CO2/m2 par an

E

F

G

Votre expert Hosman

Logement très performant : faible consommation énergétique.

Localisation et quartier

Gambetta (à 270 m)

Financer ce bien

Prix du bien : 726 000 €
Frais de notaire indicatifs (7,5%)
Les frais de notaire dans l'ancien sont entre 7% et 8% du prix du bien
: 54 450 €
Montant total à financer : 780 450 €
Vos mensualités
/ mois
Taux de marché
Source : creditadvisor.fr - Décembre 2025
À durée égale, les taux varient fortement d'un prêt à l'autre et des critères qui entrent en jeu comme votre profil emprunteur, votre projet immobilier ou la négociation avec les banques.
%
Votre apport
Durée du prêt
ans

Soyez alerté quand de nouvelles annonces correspondent à votre recherche !

Votre expert immobilier
Expert Hosman Margaux

Vous cherchez un bien ou souhaitez vendre votre bien à Paris 20 ?

Consulter la page de notre agence immobilière à Paris 20

Vous avez un bien à vendre ?
Vous souhaitez vendre un bien immobilier ? N'hésitez pas à contacter nos experts pour effectuer l'estimation du bien immobilier concerné ou réalisez sans plus attendre une première estimation en ligne, totalement gratuite.
Estimation 100% gratuite et sans engagement !
visual product