Appartement 3 pièces de 68,5 m² avec balcon de 13 m² et parking - Vue dégagée - Rue Armand Numès, Asnières-sur-Seine

Rue Armand Numès, Asnières-sur-Seine - 3 pièces - 68.5 m² - 2 chambres

Voir la localisation

425 000 €

6 204 € / m²
Réserver une visite
DPE C

Appartement 3 pièces de 68,5 m² avec balcon de 13 m² et parking - Vue dégagée - Rue Armand Numès, Asnières-sur-Seine Voir la localisation

Rue Armand Numès, Asnières-sur-Seine - 3p - 2c - 68.5 m²

425 000 €

6 204 € / m²
Votre agent immobilier
Agent Hosman Paul
Réserver une visite
Réservez votre visite en 1 clic !

Recevoir des biens similaires
Réserver une visite
Réservez votre visite en 1 clic !
Prix de mise en vente 425 000 €
Type de bien Appartement
Surface Carrez 68,5 m²
Surface au Sol 68,5 m²
Étage 4 sur 17
Période de construction Après 2011
Nombre de pièces 3
Nombre de chambres 2

Prestations

Ascenseur Parking Balcon

L'œil de l'agent

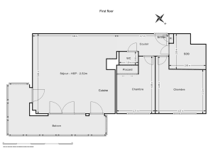
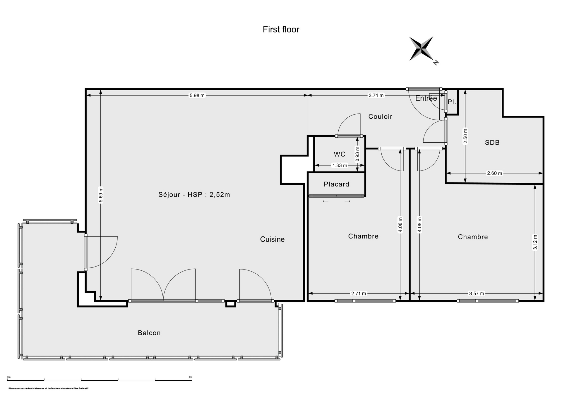
Appartement de trois pièces situé au quatrième étage d'un immeuble de 17 étages avec ascenseur et une belle vue dégagée. Avec une surface Carrez de 68,5 m², cet appartement est lumineux.

Pour votre confort, planifiez facilement votre visite en choisissant le créneau qui vous convient depuis le site d’Hosman.

L'agencement de cet appartement comprend un séjour de 33 m² avec une cuisine ouverte, équipée et fonctionnelle. Les deux chambres mesurent respectivement 9,5 m² et 13,75 m². Vous disposez d'un balcon de 13 m² accessible depuis la pièce principale. Le bien est équipé de fenêtres à double vitrage et d'un parking privatif ainsi que des espaces réservés aux deux roues. La taxe foncière annuelle est de 1307 €.

Le chauffage et l'eau sont collectivement alimentés au CPCU (gaz de ville). Avec de belles prestations, un local à vélo, un espace potager collectif, et une belle vie de quartier à proximité de la SEINE, avec marché et commerces à proximité immédiate

Situé dans un quartier agréable d'Asnières-sur-Seine, le bien est à proximité immédiate de l'école élémentaire Aulagnier et l'écoquartier des Grésillons. Un terrain multisports est présent juste à l'arrière de la résidence.
Pour vos déplacements, l'appartement est à 2 minutes à pied de plusieurs lignes de bus (177, 277), 12 minutes de la station Les Grésillons (RER C, future ligne 15) et 15 minutes de la station de métro Gabriel Péri (ligne 13).
Côté voiture, l'appartement bénéficie d'une excellente desserte grâce à l'A86 toute proche et un accès direct vers Paris (Porte de Clichy).

Le bien est soumis au statut de copropriété. L'immeuble a été construit en 2020 et les parties communes sont en très bon état. Les charges de copropriété s’élèvent à 600 € par trimestre.

Hosman s'efforce de réinventer l'agence immobilière en offrant un service innovant et transparent aux acheteurs et aux vendeurs. Nos frais d'agence sont de 10 900 euros fixes à la charge du vendeur.

Si vous êtes un professionnel de l'immobilier (agent, mandataire ou chasseur immobilier), sachez que toutes les annonces Hosman sont ouvertes à la collaboration. N'hésitez pas à nous contacter pour en discuter.

Les + du bien

Calme

Étage élevé avec ascenseur

Pas de vis-à-vis

Idéalement agencé - pas de perte d'espace

Rangement optimisé

Cuisine ouverte

Cuisine entièrement équipée

Copropriété bien entretenue

Présence d'un balcon

Local à vélo

Proche des commerces

Collé à l'école

Local poussette

Nombre de salles de bain 1
Nombre de toilettes 1
Chauffage Collectif
Eau Collectif
Type de cuisine Semi-ouverte
Exposition du séjour Double N./E.
Dépense énergétique
Performance énergétique (DPE)

A

B

C

112 kWh/m2 par an

D

E

F

G

Émissions de gaz à effet de serre (GES)

A

B

C

18 kg CO2/m2 par an

D

E

F

G

Votre agent Hosman

Logement très performant : faible consommation énergétique.

Localisation et quartier

Street view

Financer ce bien

Prix du bien : 425 000 €
Frais de notaire indicatifs (7,5%)
Les frais de notaire dans l'ancien sont entre 7% et 8% du prix du bien
: 31 875 €
Montant total à financer : 456 875 €
Vos mensualités
/ mois
Taux de marché
Source : creditadvisor.fr - Avril 2026
À durée égale, les taux varient fortement d'un prêt à l'autre et des critères qui entrent en jeu comme votre profil emprunteur, votre projet immobilier ou la négociation avec les banques.
%
Votre apport
Durée du prêt
ans

Soyez alerté quand de nouvelles annonces correspondent à votre recherche !

Votre agent immobilier
Agent Hosman Paul
Réserver une visite
Réservez votre visite en 1 clic !

Recevoir des biens similaires

Vous cherchez un bien ou souhaitez vendre votre bien à Asnières-sur-Seine ?

Consulter la page de notre agence immobilière à Asnières-sur-Seine

Vous avez un bien à vendre ?
Vous souhaitez vendre un bien immobilier ? N'hésitez pas à contacter nos agents pour effectuer l'estimation du bien immobilier concerné ou réalisez sans plus attendre une première estimation en ligne, totalement gratuite.
Estimation 100% gratuite et sans engagement !
visual product