Ce bien a été vendu par Camille
Appartement de 61.0 m² à Bordeaux
15 photos
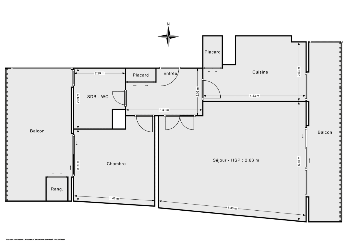
Plan 2D

Ravissant Appartement - 61 m2 - Rue de Saint- Genès 33000 Bordeaux

Rue de Saint- Genès, Bordeaux - 2 pièces - 61.0 m² - Une chambre

Voir la localisation

290 000 €

4 754 € / m²
Votre agent Hosman

Camille Crobeddu

01 84 80 61 19


Informations clés

Prix de mise en vente 290 000 €
Type de bien Appartement
Surface Carrez 61 m²
Surface au Sol 61 m²
Étage 4 sur 4
Nombre de pièces 2
Nombre de chambres 1
Période de construction De 1970 à 1980

Prestations

Ascenseur
Parking
Local à vélo
Balcon
Terrasse

L'œil de l'agent

Hosman vous propose à la vente ce 2 pièces d'une surface de 61.0 m2 Carrez, situé Rue de Saint- Genès à Bordeaux.

L’appartement est situé au dernier étage d'une résidence des années 1970 de standing au calme et en retrait de la rue Saint Genès (piscine extérieure commune).
Un ascenseur est présent dans l’immeuble.
La résidence est également sécurisée et un gardien réside dans l’immeuble.

Le bien se compose :
D'un séjour d'environ 30 m2, exposé Est qui donne sur un balcon filant avec vue dégagée.
D’une chambre lumineuse d’une surface de 11 m2.
D’une cuisine moderne entièrement aménagée et séparée de 10 m2.
D’une salle de bain équipée d’une douche, d'une baignoire et de WC.
D'une grande terrasse de 28m2 côté chambre avec vue dégagée sur les toits de Bordeaux.

Une place de parking intérieure accompagne ce bien.
Des places de parking extérieures non numérotées sont également à disposition.

Le bien se situe à 5 minutes à pied de l'arrêt le plus proche (Barrière Saint Genes-Ségur).
Le quartier est très recherché, on retrouve de nombreuses écoles (crèches, écoles élémentaires, Lycée Saint Genes, etc). Mais aussi tous les commerces et services de proximité nécessaires (supermarchés, soins médicaux, etc).

Le système de chauffage est Individuel - Électrique avec climatisation réversible.

Les charges de copropriété s'élèvent à 750 € par trimestre (eau froide, entretien des communs, gardien, parking, etc).
La taxe foncière est de 1527 €.

Chez Hosman, on vous évite des appels inutiles, et on vous fait gagner du temps : des annonces exhaustives pour trouver toutes les réponses à vos questions, une visite virtuelle, la prise de visite en ligne au moment qui vous arrange. C'est plus pratique et plus rapide

Hosman s'efforce de réinventer l’agence immobilière en offrant un service innovant et transparent aux acheteurs et aux vendeurs.
Nos frais d'agence sont de 4900 euros fixes à la charge du vendeur.

Les + du bien

• Deux espaces extérieurs avec vue dégagée sur Bordeaux
• Appartement en très bon état, aucun travaux à prévoir
• Situation géographique très recherchée
• Copropriété en excellent état
• Stationnement sécurisé

Intérieur

Nombre de salles de bain 1
Nombre de toilettes 1
Chauffage Individuel - Électrique
Eau Individuel (électrique)
Type de cuisine Séparée
Exposition du séjour Est

Dépense énergétique

Performance énergétique (DPE)

A
B
C
D
248
kWh/m2 par an
E
F
G

Émissions de gaz à effet de serre (GES)

A
B
C
14
kg CO2/m2 par an
D
E
F
G
Votre agent Hosman

Logement très performant : faible consommation énergétique.

Localisation et quartier

<span class="translation_missing" title="translation missing: fr.advert_map_alt">Advert Map Alt</span>

Financer ce bien

Prix du bien : 290 000 €

Frais de notaire indicatifs (7,5%)
Les frais de notaire dans l'ancien sont entre 7% et 8% du prix du bien

21 750 €

Montant total à financer :

311 750 €

Vos mensualités

/ mois
Taux de marché

Source : creditadvisor.fr - Mai 2026

À durée égale, les taux varient fortement d'un prêt à l'autre et des critères qui entrent en jeu comme votre profil emprunteur, votre projet immobilier ou la négociation avec les banques.

%

ans

Soyez alerté quand de nouvelles annonces correspondent à votre recherche !

Photo 1 - Appartement 61.0 Bordeaux
Photo 2 - Appartement 61.0 Bordeaux
Photo 3 - Appartement 61.0 Bordeaux
Photo 4 - Appartement 61.0 Bordeaux
Photo 5 - Appartement 61.0 Bordeaux
Photo 6 - Appartement 61.0 Bordeaux
Photo 7 - Appartement 61.0 Bordeaux
Photo 8 - Appartement 61.0 Bordeaux
Photo 9 - Appartement 61.0 Bordeaux
Photo 10 - Appartement 61.0 Bordeaux
Photo 11 - Appartement 61.0 Bordeaux
Photo 12 - Appartement 61.0 Bordeaux
Photo 13 - Appartement 61.0 Bordeaux
Photo 14 - Appartement 61.0 Bordeaux
Plan 2D - Appartement 61.0 Bordeaux

Vous avez un bien à vendre ?

Vous souhaitez vendre un bien immobilier ? N'hésitez pas à contacter nos agents pour effectuer l'estimation du bien immobilier concerné ou réalisez sans plus attendre une première estimation en ligne, totalement gratuite.

Estimer mon bien

Estimation 100% gratuite et sans engagement !

visual product
Découvrez La Boussole,
le point immo par Hosman.
Recevez un décryptage du marché et des conseils d'agents pour vous guider dans votre projet immobilier.
Fait à Paris - © 2017 - 2026 tous droits réservés Hosman