Ce bien a été vendu par Natacha
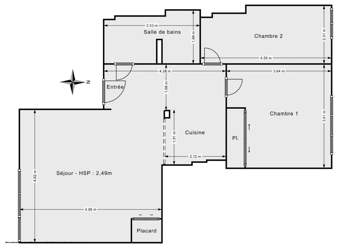
Appartement de 60.03 m² à Saint-Cloud
12 photos
Plan 2D

Ravissant appartement 61 m2 - Rue Gaston Latouche 92210 Saint-Cloud

Rue Gaston Latouche, Saint-Cloud - 3 pièces - 60.03 m² - 2 chambres

Voir la localisation

400 000 €

6 663 € / m²
Votre agent Hosman

Natacha Hassid

01 84 80 61 19


Informations clés

Prix de mise en vente 400 000 €
Type de bien Appartement
Surface Carrez 60,03 m²
Surface au Sol 60,03 m²
Étage 4 sur 4
Nombre de pièces 3
Nombre de chambres 2
Période de construction De 1948 à 1969

Prestations

Cave
Local à vélo
Fibre optique

L'œil de l'agent

Hosman vous propose à la vente ce 3 pièces d'une surface de 61 m2 Carrez, situé Rue Gaston Latouche à Saint-Cloud. Ce magnifique appartement traversant est très lumineux.

L’appartement est situé au dernier étage (4/4) d'une résidence sécurisée par un gardien. L'immeuble ne dispose pas d'ascenseur. Un local à vélos est présent dans l’immeuble.

Le bien se compose :
- D'un séjour exposé Sud Est
- D'une cuisine ouverte et équipée
- De Deux chambres avec vue dégagée sur La défense, le bois de Boulogne et la seine
- D’une salle de bain équipée d'une baignoire et de toilettes

Une cave complète ce bien.

Le système de chauffage est: Collectif

Les charges de copropriété s'élèvent à 710 € par trimestre.
La taxe foncière est de 776 €.

Le bien est soumis au statut de copropriété.

Hosman s'efforce de réinventer l’agence immobilière en offrant un service innovant et transparent aux acheteurs et aux vendeurs.
Nos frais d'agence sont de 5900 euros fixes à la charge du vendeur.

Les + du bien

• Vue dégagée et sans vis-à-vis
• Appartement traversant et lumineux
• Copropriété bien entretenue avec un gardien
• Cuisine ouverte et entièrement équipée
• Etage élevé
• Présence d’une cave
• Local à vélo
• Possibilité de louer une place de parking dans la résidence
• Proche des transports et des commerces

Intérieur

Nombre de salles de bain 1
Nombre de toilettes 1
Chauffage Collectif
Eau Collectif
Type de cuisine Ouverte
Exposition du séjour Sud Est

Dépense énergétique

Performance énergétique (DPE)

A
B
C
D
188
kWh/m2 par an
E
F
G

Émissions de gaz à effet de serre (GES)

A
B
C
D
40
kg CO2/m2 par an
E
F
G
Votre agent Hosman

Logement très performant : faible consommation énergétique.

Localisation et quartier

Saint-Cloud (à 120 m)
Transport Transport
Parc de Saint-Cloud (à 340 m)
Transport
Les Milons (à 480 m)
Transport
<span class="translation_missing" title="translation missing: fr.advert_map_alt">Advert Map Alt</span>

Financer ce bien

Prix du bien : 400 000 €

Frais de notaire indicatifs (7,5%)
Les frais de notaire dans l'ancien sont entre 7% et 8% du prix du bien

30 000 €

Montant total à financer :

430 000 €

Vos mensualités

/ mois
Taux de marché

Source : creditadvisor.fr - Mai 2026

À durée égale, les taux varient fortement d'un prêt à l'autre et des critères qui entrent en jeu comme votre profil emprunteur, votre projet immobilier ou la négociation avec les banques.

%

ans

Soyez alerté quand de nouvelles annonces correspondent à votre recherche !

Vous cherchez un bien ou souhaitez vendre votre bien à Saint-Cloud ?

Consulter la page de notre agence immobilière à Saint-Cloud

Photo 1 - Appartement 60.03 Saint-Cloud
Photo 2 - Appartement 60.03 Saint-Cloud
Photo 3 - Appartement 60.03 Saint-Cloud
Photo 4 - Appartement 60.03 Saint-Cloud
Photo 5 - Appartement 60.03 Saint-Cloud
Photo 6 - Appartement 60.03 Saint-Cloud
Photo 7 - Appartement 60.03 Saint-Cloud
Photo 8 - Appartement 60.03 Saint-Cloud
Photo 9 - Appartement 60.03 Saint-Cloud
Photo 10 - Appartement 60.03 Saint-Cloud
Photo 11 - Appartement 60.03 Saint-Cloud
Plan 2D - Appartement 60.03 Saint-Cloud

Vous avez un bien à vendre ?

Vous souhaitez vendre un bien immobilier ? N'hésitez pas à contacter nos agents pour effectuer l'estimation du bien immobilier concerné ou réalisez sans plus attendre une première estimation en ligne, totalement gratuite.

Estimer mon bien

Estimation 100% gratuite et sans engagement !

visual product
Découvrez La Boussole,
le point immo par Hosman.
Recevez un décryptage du marché et des conseils d'agents pour vous guider dans votre projet immobilier.
Fait à Paris - © 2017 - 2026 tous droits réservés Hosman