Ce bien a été vendu par Claire
Appartement de 57.45 m² à Saint-Denis
13 photos
Plan 2D

Beau 3 pièces de 58 m2 - avec balcon et parking - Rue Albert Einstein, Saint-Denis

Rue Albert Einstein, Saint-Denis - 3 pièces - 57.45 m² - 2 chambres

Voir la localisation

230 000 €

4 003 € / m²
Votre agent Hosman

Claire Gervais

01 84 80 61 19


Informations clés

Prix de mise en vente 230 000 €
Type de bien Appartement
Surface Carrez 57,45 m²
Surface au Sol 57,45 m²
Étage 2 sur 2
Nombre de pièces 3
Nombre de chambres 2
Période de construction Après 2011

Prestations

Ascenseur
Parking
Cave
Local à vélo
Balcon

L'œil de l'agent

Hosman vous propose ce bel appartement 3 pièces de 57,5 m² Carrez, situé Rue Albert Einstein à Saint-Denis. Au dernier étage d'un immeuble de 2012 bien entretenu avec ascenseur, cet appartement lumineux bénéficie d'un balcon de 10 m² et d'un parking privatif. Une cave complète ce bien.

Planifiez facilement votre visite en choisissant le créneau qui vous convient depuis le site d'Hosman.

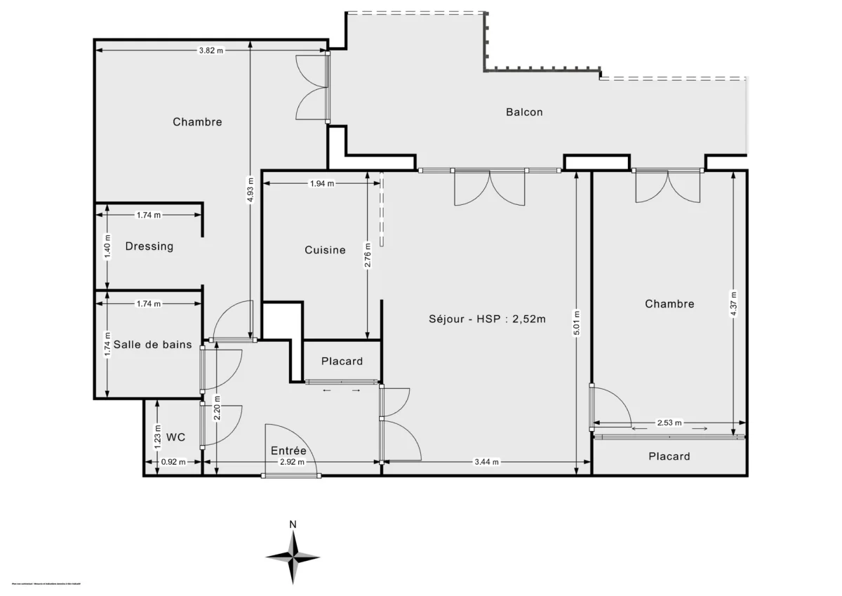
L'appartement se compose d'un séjour spacieux avec cuisine ouverte équipée, donnant sur le balcon ensoleillé ; une chambre parentale calme avec espace dressing ; une chambre enfant avec placard aménagé ; une salle de bain avec baignoire, vasque et sèche-serviette ; des toilettes séparées ; et une entrée agrémentée d'un placard.

Chauffage et eau chaude sont individuels électriques, avec un ballon d'eau chaude récent (moins de 3 ans).

La taxe foncière annuelle est de 1651 € et les charges sont de 126 € par mois.

Ce bien se situe dans un quartier calme et résidentiel, proche des transports (métro 13 et tram). À proximité directe du parc de la légion d'honneur, l’appartement est au cœur de l’écosystème dionysien. La basilique cathédrale de St Denis se trouve 10 minutes à pied de l’appartement. Il est également possible de se rendre facilement au marché ou à l'hôpital St Denis.

Le bien est soumis au statut de copropriété. L'immeuble, construit récemment, dispose d'un local à vélos sécurisé et présente des parties communes en excellent état.

Hosman s'efforce de réinventer l'agence immobilière en offrant un service innovant et transparent aux acheteurs et aux vendeurs. Nos frais d'agence sont de 7 900 euros fixes à la charge du vendeur.

Si vous êtes un professionnel de l'immobilier (agent, mandataire ou chasseur immobilier), sachez que toutes les annonces Hosman sont ouvertes à la collaboration. N'hésitez pas à nous contacter pour en discuter.

Les + du bien

-Appartement bénéficiant d'un plan optimisé sans perte de place
- Avec une belle surface d'extérieur
- Entièrement au calme sur jardin
- Cuisine ouverte équipée
- Nombreux rangements
- Copropriété sécurisée - pas de travaux à venir
- 2 chambres pour moins de 60m2
- Présence d'une cave
- Présence d'une place de parking
- Présence d'un ascenseur

Intérieur

Nombre de salles de bain 1
Nombre de toilettes 1
Chauffage Individuel - Électrique
Eau Individuel (électrique)
Type de cuisine Ouverte
Exposition du séjour Nord Est

Dépense énergétique

Performance énergétique (DPE)

A
B
C
D
229
kWh/m2 par an
E
F
G

Émissions de gaz à effet de serre (GES)

A
B
7
kg CO2/m2 par an
C
D
E
F
G
Votre agent Hosman

Logement très performant : faible consommation énergétique.

Localisation et quartier

Hôpital Delafontaine (à 210 m)
Transport
Cimetière de Saint-Denis (à 410 m)
Transport
<span class="translation_missing" title="translation missing: fr.advert_map_alt">Advert Map Alt</span>

Financer ce bien

Prix du bien : 230 000 €

Frais de notaire indicatifs (7,5%)
Les frais de notaire dans l'ancien sont entre 7% et 8% du prix du bien

17 250 €

Montant total à financer :

247 250 €

Vos mensualités

/ mois
Taux de marché

Source : creditadvisor.fr - Mai 2026

À durée égale, les taux varient fortement d'un prêt à l'autre et des critères qui entrent en jeu comme votre profil emprunteur, votre projet immobilier ou la négociation avec les banques.

%

ans

Soyez alerté quand de nouvelles annonces correspondent à votre recherche !

Vous cherchez un bien ou souhaitez vendre votre bien à Saint-Denis ?

Consulter la page de notre agence immobilière à Saint-Denis

Photo 1 - Appartement 57.45 Saint-Denis
Photo 2 - Appartement 57.45 Saint-Denis
Photo 3 - Appartement 57.45 Saint-Denis
Photo 4 - Appartement 57.45 Saint-Denis
Photo 5 - Appartement 57.45 Saint-Denis
Photo 6 - Appartement 57.45 Saint-Denis
Photo 7 - Appartement 57.45 Saint-Denis
Photo 8 - Appartement 57.45 Saint-Denis
Photo 9 - Appartement 57.45 Saint-Denis
Photo 10 - Appartement 57.45 Saint-Denis
Photo 11 - Appartement 57.45 Saint-Denis
Photo 12 - Appartement 57.45 Saint-Denis
Plan 2D - Appartement 57.45 Saint-Denis

Vous avez un bien à vendre ?

Vous souhaitez vendre un bien immobilier ? N'hésitez pas à contacter nos agents pour effectuer l'estimation du bien immobilier concerné ou réalisez sans plus attendre une première estimation en ligne, totalement gratuite.

Estimer mon bien

Estimation 100% gratuite et sans engagement !

visual product
Découvrez La Boussole,
le point immo par Hosman.
Recevez un décryptage du marché et des conseils d'agents pour vous guider dans votre projet immobilier.
Fait à Paris - © 2017 - 2026 tous droits réservés Hosman