Ce bien a été vendu par Alexandra
Appartement de 50.0 m² à Paris
11 photos

Magnifique 2 pièces de 50m2 – Paris 18ème arrondissement

Rue Doudeauville, Paris - 2 pièces - 50.0 m² - Une chambre

Voir la localisation

400 000 €

8 000 € / m²
Votre agent Hosman

Alexandra Guibal

01 84 80 61 19


Informations clés

Prix de mise en vente 400 000 €
Type de bien Appartement
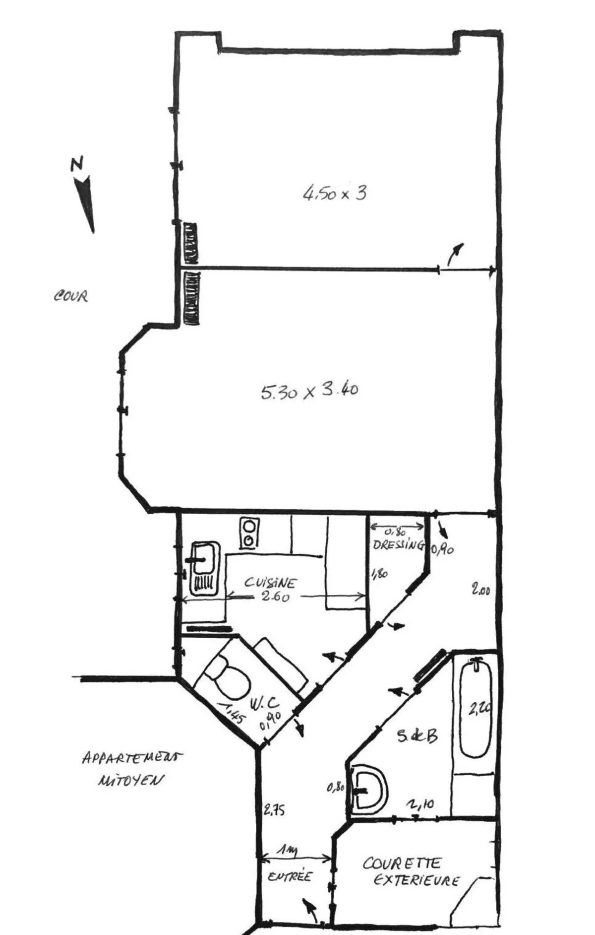
Surface Carrez 50 m²
Surface au Sol -
Étage 3 sur 8
Nombre de pièces 2
Nombre de chambres 1
Période de construction De 1914 à 1947

Prestations

Ascenseur
Cave

L'œil de l'agent

Hosman vous propose à la vente ce magnifique appartement de 50m2 dans le 18ème arrondissement à Paris.

Situé dans un quartier en pleine évolution et très vivant, rue Doudeauville, cet appartement est à proximité de nombreux commerces, dont le Marché de l’Olive à 9min à pied, ainsi que des transports : il est à équidistance des métros Château Rouge (ligne 4), La Chapelle (ligne 2), Marx Dormoy et Marcadet-Poissonniers (ligne 12).

Au 3ème étage avec ascenseur d’un immeuble en briques très bien entretenu, cet appartement se compose d’une entrée avec porte blindée, d’une penderie, d’une cuisine fermée, d’une salle de bain, et d’une chambre sur cour baignée de lumière en matinée.

Vous apprécierez le calme et la luminosité de ce bien. L’absence de murs porteurs vous laissera également la possibilité de l’aménager comme bon vous semble.

Une cave saine et fermée vient compléter ce bien.

Une charmante concierge surveille cette copropriété jeune et sympathique. Les charges de copropriété s’élèvent à 1 600€ par an et comprennent l’eau et le chauffage, entre autres. La taxe foncière est de 632€.

L'équipe Hosman se tient à votre disposition pour répondre à vos questions et organiser une visite. Nos frais de commercialisation sont de 4 500 euros, à la charge du vendeur. 


Les + du bien

- Chambre sur cour 



- Luminosité



- Calme



- Cave 


- Gardienne



- Ascenseur



- Absence de murs porteurs



- Quartier en pleine évolution et très dynamique



- Proximité commerces, écoles et transports



- Copropriété jeune et sympathique



Intérieur

Nombre de salles de bain 1
Nombre de toilettes 1
Chauffage Collectif
Eau Collectif
Type de cuisine Séparée
Exposition du séjour -

Localisation et quartier

Château Rouge (à 400 m)
Transport
Marx Dormoy (à 460 m)
Transport
Marcadet Poissonniers (à 470 m)
Transport Transport
<span class="translation_missing" title="translation missing: fr.advert_map_alt">Advert Map Alt</span>

Financer ce bien

Prix du bien : 400 000 €

Frais de notaire indicatifs (7,5%)
Les frais de notaire dans l'ancien sont entre 7% et 8% du prix du bien

30 000 €

Montant total à financer :

430 000 €

Vos mensualités

/ mois
Taux de marché

Source : creditadvisor.fr - Mai 2026

À durée égale, les taux varient fortement d'un prêt à l'autre et des critères qui entrent en jeu comme votre profil emprunteur, votre projet immobilier ou la négociation avec les banques.

%

ans

Soyez alerté quand de nouvelles annonces correspondent à votre recherche !

Vous cherchez un bien ou souhaitez vendre votre bien à Paris 18 ?

Consulter la page de notre agence immobilière à Paris 18

Photo 1 - Appartement 50.0 Paris
Photo 2 - Appartement 50.0 Paris
Photo 3 - Appartement 50.0 Paris
Photo 4 - Appartement 50.0 Paris
Photo 5 - Appartement 50.0 Paris
Photo 6 - Appartement 50.0 Paris
Photo 7 - Appartement 50.0 Paris
Photo 8 - Appartement 50.0 Paris
Photo 9 - Appartement 50.0 Paris
Photo 10 - Appartement 50.0 Paris
Photo 11 - Appartement 50.0 Paris

Vous avez un bien à vendre ?

Vous souhaitez vendre un bien immobilier ? N'hésitez pas à contacter nos agents pour effectuer l'estimation du bien immobilier concerné ou réalisez sans plus attendre une première estimation en ligne, totalement gratuite.

Estimer mon bien

Estimation 100% gratuite et sans engagement !

visual product
Découvrez La Boussole,
le point immo par Hosman.
Recevez un décryptage du marché et des conseils d'agents pour vous guider dans votre projet immobilier.
Fait à Paris - © 2017 - 2026 tous droits réservés Hosman