 
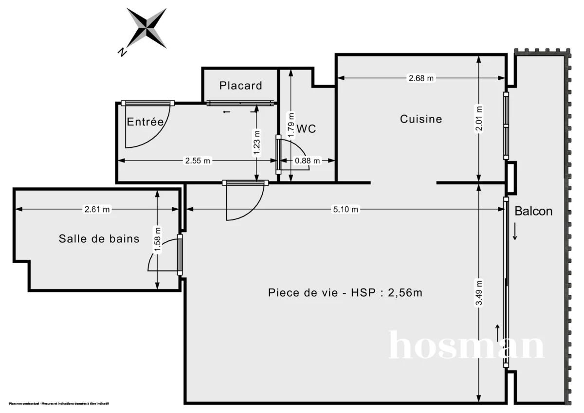
 Rue Jean Baptiste Baudin, Villejuif - Une pièce - 31.0 m² - 1 chambre
Voir la localisationVous cherchez un bien ou souhaitez vendre votre bien à Villejuif ?
Consulter la page de notre agence immobilière à Villejuif
Nous vous proposons également des biens dans des zones à proximité :