Ravissante maison de 2016 de 95,52 m² (103,52 m2 au sol) avec 3 chambres - jardin et garage - Quartier La Grassinière à Vertou

Vertou - 4 pièces - 95.52 m² - 3 chambres

Voir la localisation

370 000 €

3 874 € / m²
Réserver une visite
DPE C

Ravissante maison de 2016 de 95,52 m² (103,52 m2 au sol) avec 3 chambres - jardin et garage - Quartier La Grassinière à Vertou Voir la localisation

Vertou - 4p - 3c - m²

370 000 €

3 874 € / m²
Votre expert immobilier
Expert Hosman Ambre
Réserver une visite
Réservez votre visite en 1 clic !

Recevoir des biens similaires
Réserver une visite
Réservez votre visite en 1 clic !
Prix de mise en vente 370 000 €
Type de bien Maison
Surface habitable 95,52 m²
Surface au sol 103,52 m²
Période de construction Après 2011
Nombre de pièces 4
Nombre de chambres 3

Prestations

3 parkings Garage Terrasse Jardin Fibre optique

L'œil de l'expert

Hosman vous propose à la vente cette belle maison non mitoyenne de 95,52 m2 (103,52 m2 au sol) avec 3 chambres, située quartier La Grassinière à Vertou.

Cette maison de 2016, située en impasse, offre un jardin clos et arboré sur une parcelle de 600 m2.
La maison répond aux normes PMR.

Planifiez facilement votre visite en choisissant le créneau qui vous convient depuis le site d’Hosman.

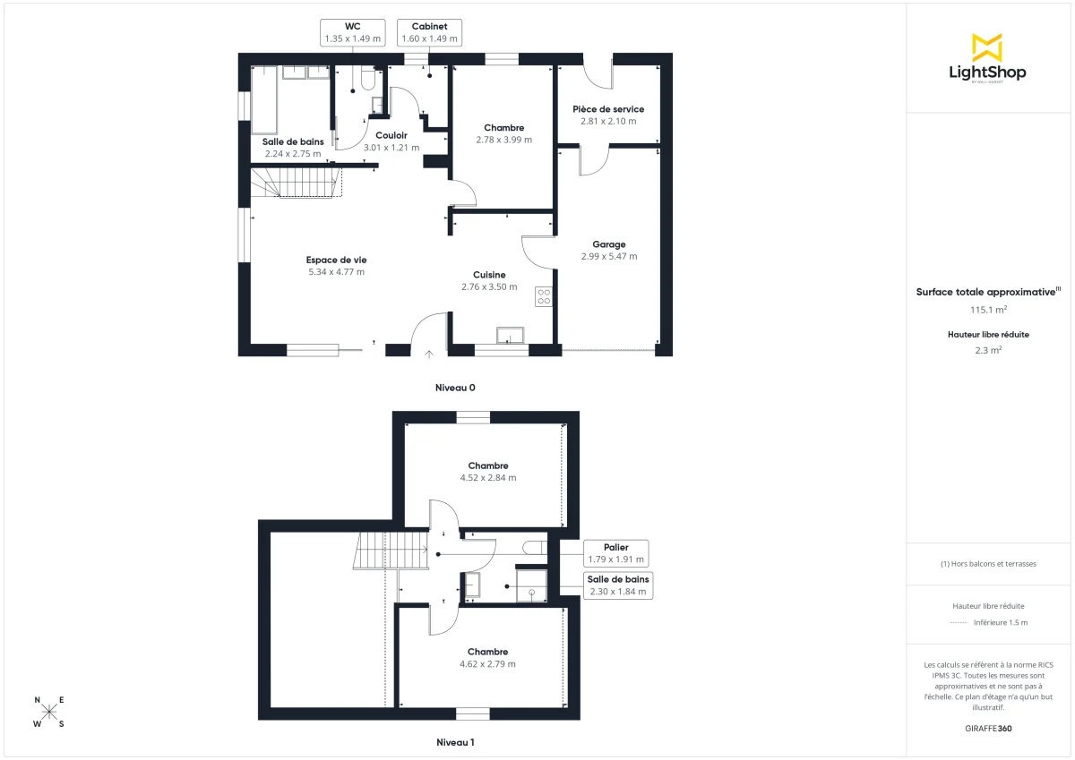
La maison se compose comme suit :
Au RDC :
- D'une belle pièce de vie lumineuse de 34 m2 avec un très belle hauteur sous plafond, donnant sur la terrasse et le jardin.
- D'une cuisine ouverte sur la pièce de vie (à équiper).
- D'une première chambre de 11,76 m2.
- D'une salle de bain avec baignoire.
- D'un espace bureau ou dressing séparé.
- De toilettes séparées.
- D'un espace buanderie séparé.

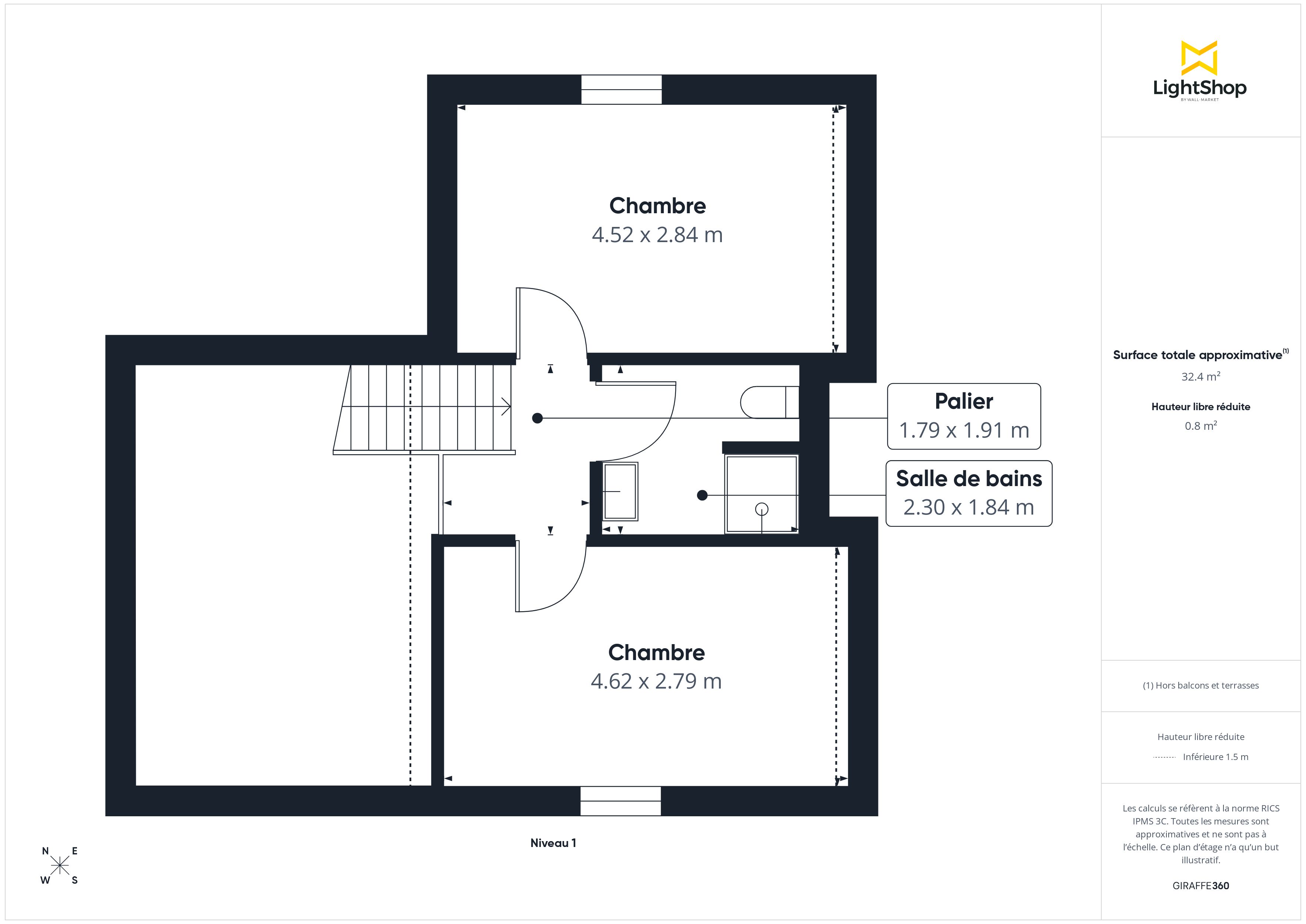
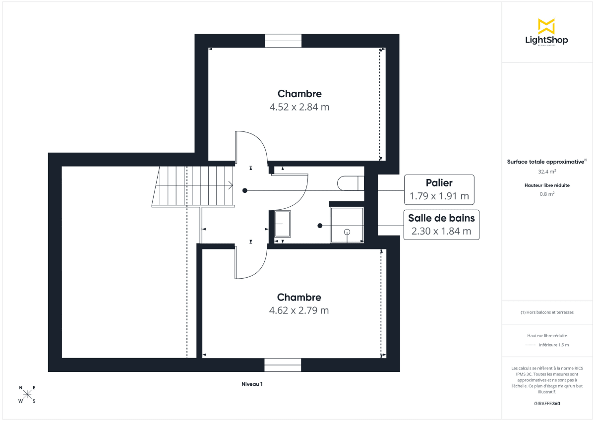
ETAGE :
- De deux chambres de 13 m2 au sol.
- D'une salle d'eau avec toilettes.

Un garage avec porte électrique complète ce bien. Une mezzanine est présente pour ajouter du stockage. Vous pourrez également stationner plusieurs véhicules sur la parcelle.

La maison est dotée d'un système de chauffage et d'eau chaude alimenté au gaz.
Au rdc, le chauffage se fait par le sol.
La taxe foncière est de 1326€.

La ligne de bus 47 est à 1 minute à pied de la maison. La ligne 97 est elle à 6 minutes à pied.
La maison se trouve à proximité du centre de Vertou et du quartier du Chêne, connu pour son ambiance paisible de village de pêcheurs. Vous trouverez à proximité la Chaussée des Moines, les commodités du quotidien et la Sèvre pour des balades au bord de l'eau.

Hosman s'efforce de réinventer l'agence immobilière en offrant un service innovant et transparent aux acheteurs et aux vendeurs. Nos frais d'agence sont de 10000 euros fixes à la charge du vendeur. Si vous êtes un professionnel de l'immobilier (agent, mandataire ou chasseur immobilier), sachez que toutes les annonces Hosman sont ouvertes à la collaboration. N'hésitez pas à nous contacter pour en discuter.

Les + du bien

- Maison T4 de 95,52m2 habitables (103,52 m2 au sol)
- Belle pièce de vie donnant sur le jardin
- Cuisine ouverte sur la pièce de vie
- Vie de plain pied possible avec une chambre et une salle de bain en RDC
- Bureau séparé en RDC
- 2 chambres à l'étage
- 1 salle d'eau à l'étage avec toilettes
- Toilettes séparées en RDC
- Jardin clos et arboré sur une parcelle de 600 m2
- Très bon état de la maison
- Maison construite en 2016
- Présence d'un garage avec espace de rangement
- Présence d'une buanderie séparée
- Double vitrage performant
- Calme dans une rue peu passante
- Pas de travaux à prévoir
- Présence d'une terrasse
- Présence de places de parking

Nombre de salles de bain 2
Nombre de toilettes 2
Chauffage Individuel - Gaz
Eau Individuel (gaz)
Type de cuisine Ouverte
Exposition du séjour Nord Ouest
Dépense énergétique
Performance énergétique (DPE)

A

B

C

82 kWh/m2 par an

D

E

F

G

Émissions de gaz à effet de serre (GES)

A

B

C

16 kg CO2/m2 par an

D

E

F

G

Votre expert Hosman

Logement très performant : faible consommation énergétique.

Localisation et quartier

Financer ce bien

Prix du bien : 370 000 €
Frais de notaire indicatifs (7,5%)
Les frais de notaire dans l'ancien sont entre 7% et 8% du prix du bien
: 27 750 €
Montant total à financer : 397 750 €
Vos mensualités
/ mois
Taux de marché
Source : creditadvisor.fr - Février 2026
À durée égale, les taux varient fortement d'un prêt à l'autre et des critères qui entrent en jeu comme votre profil emprunteur, votre projet immobilier ou la négociation avec les banques.
%
Votre apport
Durée du prêt
ans

Soyez alerté quand de nouvelles annonces correspondent à votre recherche !

Votre expert immobilier
Expert Hosman Ambre
Réserver une visite
Réservez votre visite en 1 clic !

Recevoir des biens similaires

Vous cherchez un bien ou souhaitez vendre votre bien à Vertou ?

Consulter la page de notre agence immobilière à Vertou

Vous avez un bien à vendre ?
Vous souhaitez vendre un bien immobilier ? N'hésitez pas à contacter nos experts pour effectuer l'estimation du bien immobilier concerné ou réalisez sans plus attendre une première estimation en ligne, totalement gratuite.
Estimation 100% gratuite et sans engagement !
visual product