Magnifique propriété en pierres de 125 m² avec dépendance et grand terrain - La Surmenière à Couëron

Route de Saint Etienne de Montluc, Couëron - 6 pièces - 125.0 m² - 2 chambres

Voir la localisation

450 000 €

3 600 € / m²
Votre agent Hosman

Maïwenne Martin

06 64 81 08 61

Informations clés

Prix de mise en vente 450 000 €
Type de bien Maison
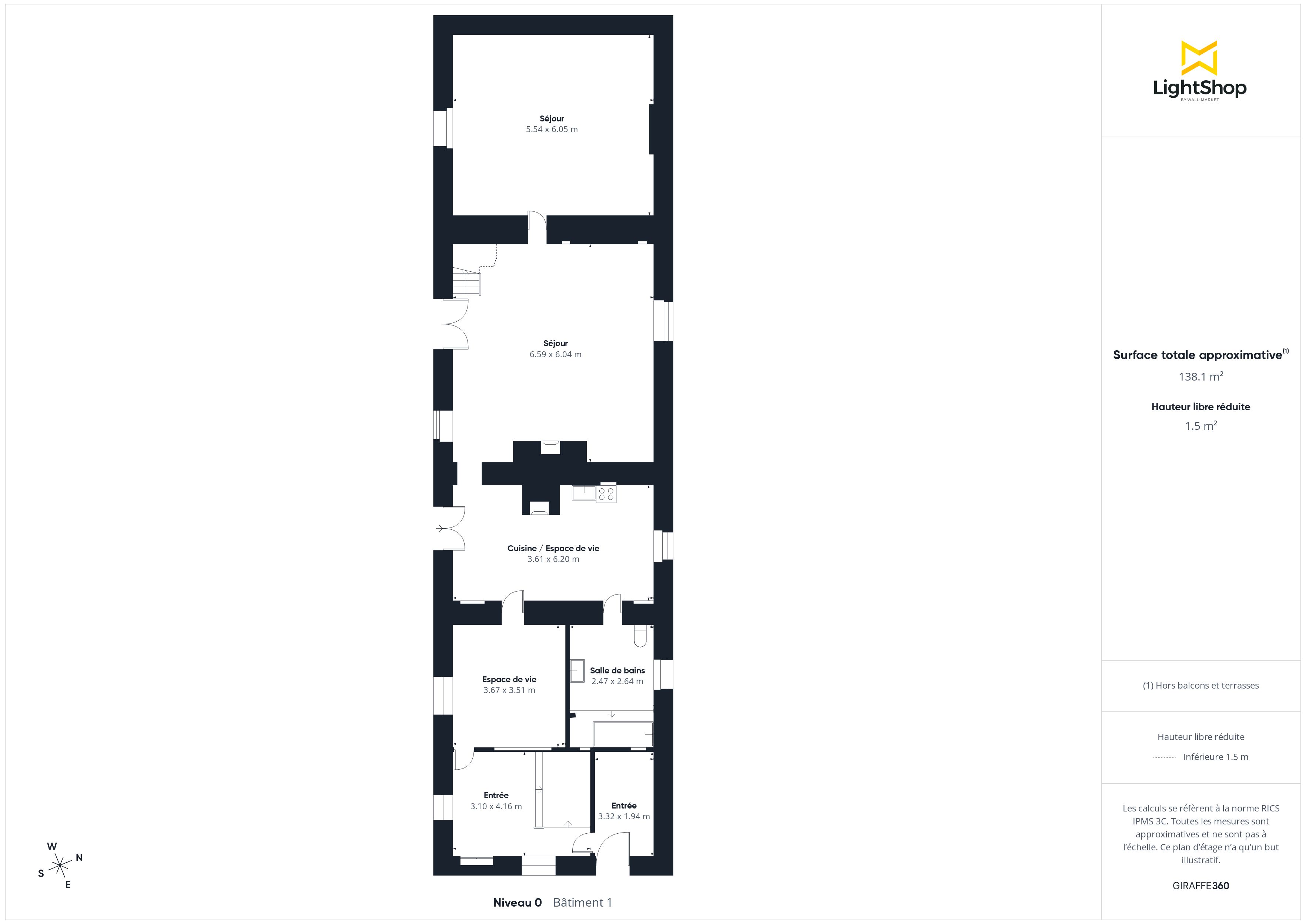
Surface habitable 125 m²
Surface au sol 125 m²
Nombre de pièces 6
Nombre de chambres 2
Période de construction De 1850 à 1913

Prestations

10 parkings
Garage
Terrasse
Jardin

L'œil de l'agent

Située à Couëron sur la Route de Saint Etienne de Montluc, cette maison de 125 m² offre un cadre unique avec un terrain agricole d'environ 17 000 m² incluant un étang et un puit.

Construite en 1850, cette propriété a été rénovée en 1976. Elle se compose de six pièces réparties sur deux étages. Le salon traversant de 38,28 m² est exposé plein sud et doté d'une cheminée fonctionnelle. La cuisine séparée mesure 21,50 m².
La maison comprend trois chambres, de 12,08 m² à 32,34 m², celle de 32,34 m² étant agrémentée d'une cheminée décorative. La salle de bains offre une surface de 8,83 m².

Planifiez facilement votre visite en choisissant le créneau qui vous convient depuis le site d’Hosman.

Un garage et un parking pouvant accueillir jusqu'à dix véhicules sont présents.
La propriété dispose également d'une cave de 15 m² avec un four à pain fonctionnel et une dépendance de 52,50 m².
Le système de chauffage et d’eau chaude est électrique, renouvelé par un ballon d’eau récent.
La maison est dotée d'huisseries en double vitrage et d'une toiture en tuiles refaite il y a quelques années.
La taxe foncière annuelle est de 2000 €.

Le bourg de Couëron et la gare est à moins de 10 minutes en voiture.

Hosman s'efforce de réinventer l'agence immobilière en offrant un service innovant et transparent aux acheteurs et aux vendeurs. Nos frais d'agence sont de 10900 euros fixes à la charge du vendeur.

Si vous êtes un professionnel de l'immobilier (agent, mandataire ou chasseur immobilier), sachez que toutes les annonces Hosman sont ouvertes à la collaboration. N'hésitez pas à nous contacter pour en discuter.

Les + du bien

Maison en pierres de 125 m2 sur terrain de 17000m2, idéale pour une vie de famille ou un projet immobilier type maison d'hôtes

Dépendance de plus de 50m2

Grand étang sur le terrain

Charme de l'ancien avec les belles pierres et la grande cheminée notamment

Cave, pigeonniers, four à pain

Présence d'un puit

Toiture et isolation refaite

Combles a aménager

Pièce de vie spacieuse et cuisine séparée

Huisseries en double vitrage

En report de la route

Beaux volumes et beau potentiel

Secteur de la Surmenière entre Couëron et Saint-Etienne-de-Montluc, à moins de 10min du bourg de Couëron

Intérieur

Nombre de salles de bain 1
Nombre de toilettes 1
Chauffage Individuel - Électrique
Eau Individuel (électrique)
Type de cuisine Séparée
Exposition du séjour Sud

Dépense énergétique

Performance énergétique (DPE)

A
B
C
D
E
F
375
kWh/m2 par an
G

Émissions de gaz à effet de serre (GES)

A
B
C
15
kg CO2/m2 par an
D
E
F
G

Localisation et quartier

<span class="translation_missing" title="translation missing: fr.advert_map_alt">Advert Map Alt</span>

Financer ce bien

Prix du bien : 450 000 €

Frais de notaire indicatifs (7,5%)
Les frais de notaire dans l'ancien sont entre 7% et 8% du prix du bien

33 750 €

Montant total à financer :

483 750 €

Vos mensualités

/ mois
Taux de marché

Source : creditadvisor.fr - Mai 2026

À durée égale, les taux varient fortement d'un prêt à l'autre et des critères qui entrent en jeu comme votre profil emprunteur, votre projet immobilier ou la négociation avec les banques.

%

ans

Soyez alerté quand de nouvelles annonces correspondent à votre recherche !

Vous cherchez un bien ou souhaitez vendre votre bien à Couëron ?

Consulter la page de notre agence immobilière à Couëron

Photo 1 - Maison 125.0 Couëron
Photo 2 - Maison 125.0 Couëron
Photo 3 - Maison 125.0 Couëron
Photo 4 - Maison 125.0 Couëron
Photo 5 - Maison 125.0 Couëron
Photo 6 - Maison 125.0 Couëron
Photo 7 - Maison 125.0 Couëron
Photo 8 - Maison 125.0 Couëron
Photo 9 - Maison 125.0 Couëron
Photo 10 - Maison 125.0 Couëron
Photo 11 - Maison 125.0 Couëron
Photo 12 - Maison 125.0 Couëron
Photo 13 - Maison 125.0 Couëron
Photo 14 - Maison 125.0 Couëron
Photo 15 - Maison 125.0 Couëron
Photo 16 - Maison 125.0 Couëron
Photo 17 - Maison 125.0 Couëron
Plan 2D - Maison 125.0 Couëron

Vous avez un bien à vendre ?

Vous souhaitez vendre un bien immobilier ? N'hésitez pas à contacter nos agents pour effectuer l'estimation du bien immobilier concerné ou réalisez sans plus attendre une première estimation en ligne, totalement gratuite.

Estimer mon bien

Estimation 100% gratuite et sans engagement !

visual product
Découvrez La Boussole,
le point immo par Hosman.
Recevez un décryptage du marché et des conseils d'agents pour vous guider dans votre projet immobilier.
Fait à Paris - © 2017 - 2026 tous droits réservés Hosman