Ce bien a été vendu par Amaury
Appartement de 72.0 m² à Gentilly
13 photos
Plan 2D

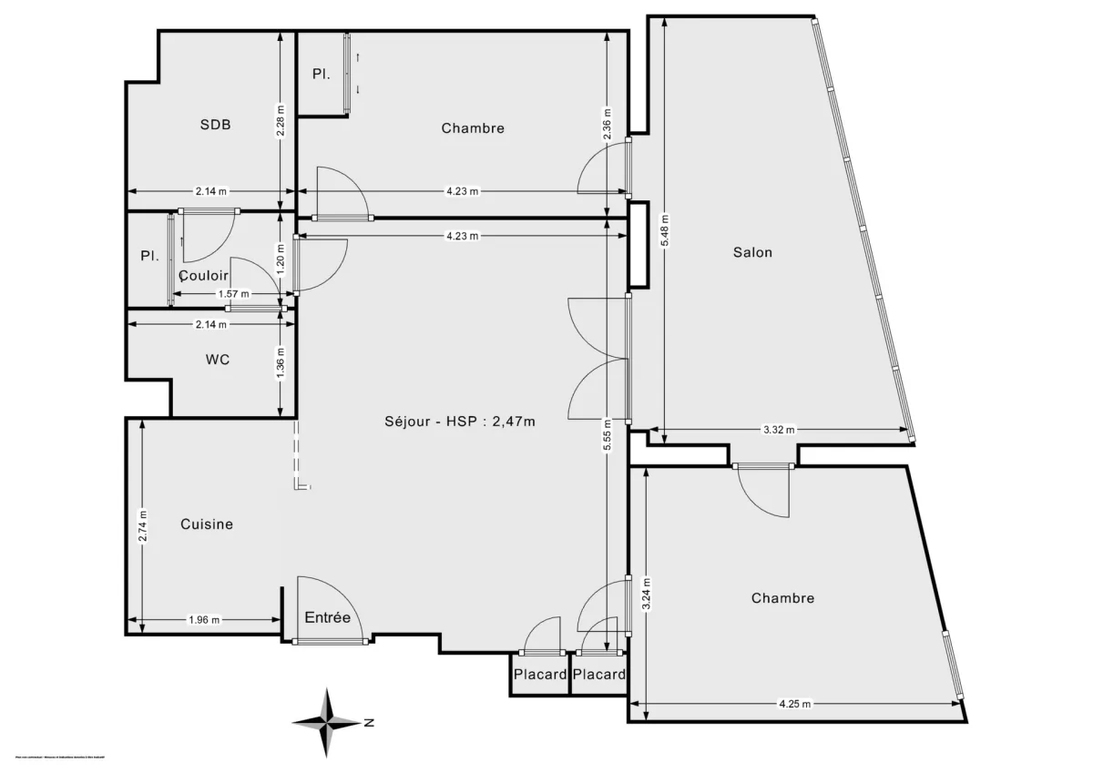
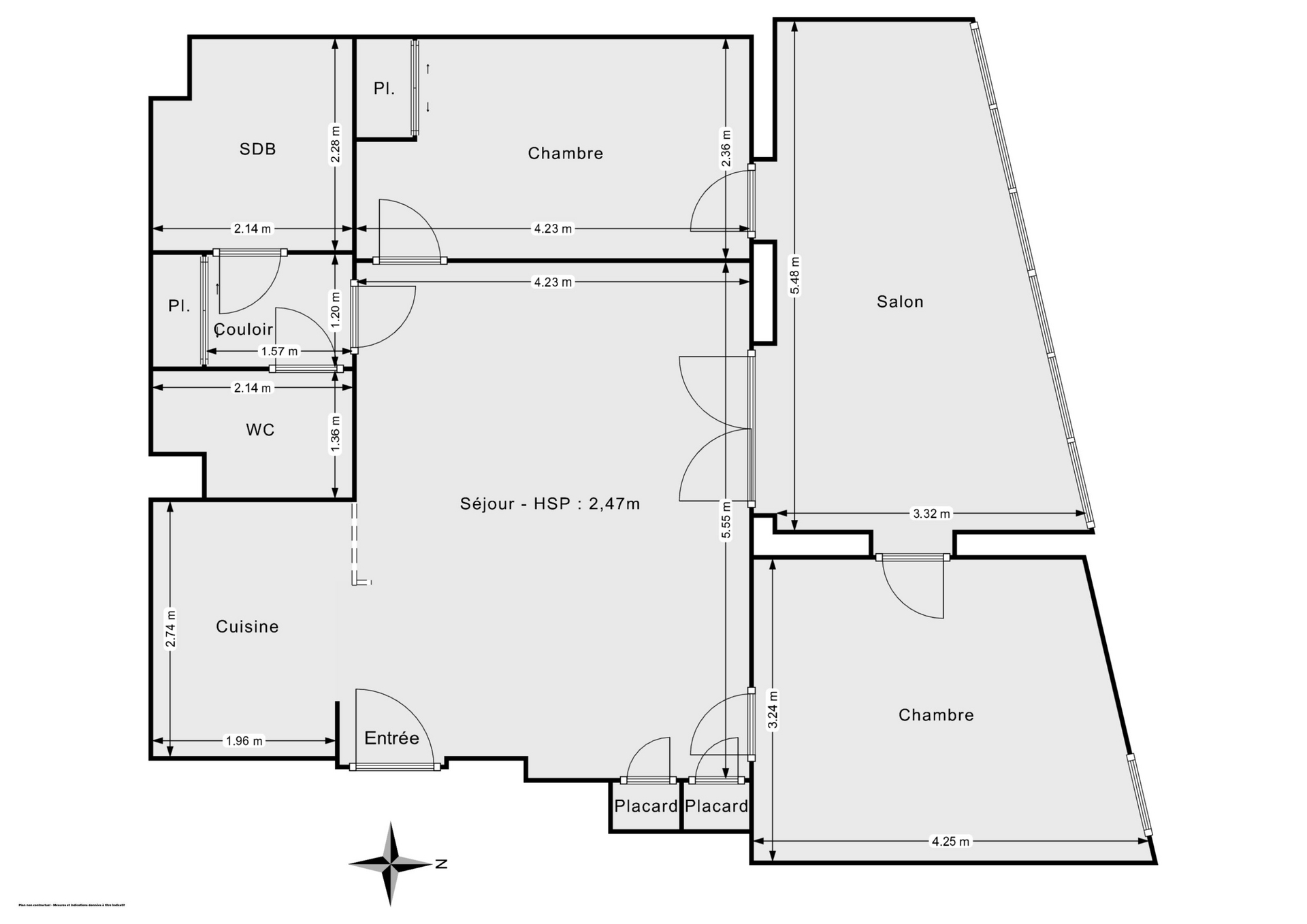
Appartement 3 pièces 62 m² et Loggia 15 m² - Parking - Rue de la Division du Général Leclerc, Gentilly

Rue de la Division du Général Leclerc, Gentilly - 3 pièces - 72.0 m² - 2 chambres

Voir la localisation

395 000 €

5 486 € / m²
Votre agent Hosman

Amaury Prot

06 56 66 15 04


Informations clés

Prix de mise en vente 395 000 €
Type de bien Appartement
Surface Carrez 72 m²
Surface au Sol 61,6 m²
Étage 1 sur 6
Nombre de pièces 3
Nombre de chambres 2
Période de construction Après 2011

Prestations

Ascenseur
Parking
Local à vélo
Balcon
Fibre optique

L'œil de l'agent

Découvrez cet appartement de type 3 pièces situé au premier étage d'un immeuble de six étages sur la Rue de la Division du Général Leclerc à Gentilly. Exposé Sud-Ouest, cet appartement offre une surface Carrez de 61.60 m².

Planifiez facilement votre visite en choisissant le créneau qui vous convient depuis le site d’Hosman.

L'appartement comprend une entrée, suivie d'une pièce de vie avec cuisine ouverte entièrement équipée. Cette configuration intègre deux chambres distinctes avec rangements et une salle de bain (baignoire), complétée par un WC séparé.
Une loggia (15 m²) prolonge la pièce principale, offrant un espace supplémentaire.

Une place de stationnement abritée est incluse dans l'offre, facilitant ainsi le stationnement.

Localisation du bien :

Commodités : Partez à la découverte de Gentilly avec ses commerces de proximité et restaurants variés. Situé à quelques minutes à pied de la bibliothèque Anne Frank et du cinéma Le Luxy.

Espaces verts : Profitez du Parc Départemental Kellermann et de ses vastes zones de promenade.

Écoles : Complexe scolaire accueillant des niveaux maternelle au lycée à proximité immédiate.

Transports : La station de RER B Gentilly est à environ 10 minutes à pied, assurant une connexion rapide vers Paris.

Le bien est soumis au statut de copropriété. L'immeuble, construit en 2018, dispose d'un local à vélos. Les parties communes sont en parfait état. Les charges de copropriété s'élèvent à 750 € par trimestre comprenant le chauffage et l'eau chaude.

Hosman s'efforce de réinventer l'agence immobilière en offrant un service innovant et transparent aux acheteurs et aux vendeurs. Nos frais d'agence sont de 9900 euros fixes à la charge du vendeur.

Si vous êtes un professionnel de l'immobilier (agent, mandataire ou chasseur immobilier), sachez que toutes les annonces Hosman sont ouvertes à la collaboration. N'hésitez pas à nous contacter pour en discuter.

Les + du bien

Présence d'une loggia
Double vitrage performant
Exposition du séjour recherchée
Calme dans une rue peu passante
Pas de travaux à prévoir
Idéalement agencé - pas de perte d'espace
Rangement optimisé
Cuisine ouverte
Cuisine entièrement équipée
Baignoire dans la salle de bain
Toilettes séparées
Copropriété bien entretenue
Présence d'un local à vélos
Présence d'une place de parking
Présence d'un ascenseur
Proche des transports en commun
Proche des commerces

Intérieur

Nombre de salles de bain 1
Nombre de toilettes 1
Chauffage Collectif
Eau Collectif
Type de cuisine Ouverte
Exposition du séjour Sud Ouest

Dépense énergétique

Performance énergétique (DPE)

A
B
C
89
kWh/m2 par an
D
E
F
G

Émissions de gaz à effet de serre (GES)

A
B
C
18
kg CO2/m2 par an
D
E
F
G
Votre agent Hosman

Logement très performant : faible consommation énergétique.

Localisation et quartier

Hôpital Bicêtre (à 340 m)
Transport
<span class="translation_missing" title="translation missing: fr.advert_map_alt">Advert Map Alt</span>

Financer ce bien

Prix du bien : 395 000 €

Frais de notaire indicatifs (7,5%)
Les frais de notaire dans l'ancien sont entre 7% et 8% du prix du bien

29 625 €

Montant total à financer :

424 625 €

Vos mensualités

/ mois
Taux de marché

Source : creditadvisor.fr - Mai 2026

À durée égale, les taux varient fortement d'un prêt à l'autre et des critères qui entrent en jeu comme votre profil emprunteur, votre projet immobilier ou la négociation avec les banques.

%

ans

Soyez alerté quand de nouvelles annonces correspondent à votre recherche !

Vous cherchez un bien ou souhaitez vendre votre bien à Gentilly ?

Consulter la page de notre agence immobilière à Gentilly

Photo 1 - Appartement 72.0 Gentilly
Photo 2 - Appartement 72.0 Gentilly
Photo 3 - Appartement 72.0 Gentilly
Photo 4 - Appartement 72.0 Gentilly
Photo 5 - Appartement 72.0 Gentilly
Photo 6 - Appartement 72.0 Gentilly
Photo 7 - Appartement 72.0 Gentilly
Photo 8 - Appartement 72.0 Gentilly
Photo 9 - Appartement 72.0 Gentilly
Photo 10 - Appartement 72.0 Gentilly
Photo 11 - Appartement 72.0 Gentilly
Photo 12 - Appartement 72.0 Gentilly
Plan 2D - Appartement 72.0 Gentilly

Vous avez un bien à vendre ?

Vous souhaitez vendre un bien immobilier ? N'hésitez pas à contacter nos agents pour effectuer l'estimation du bien immobilier concerné ou réalisez sans plus attendre une première estimation en ligne, totalement gratuite.

Estimer mon bien

Estimation 100% gratuite et sans engagement !

visual product
Découvrez La Boussole,
le point immo par Hosman.
Recevez un décryptage du marché et des conseils d'agents pour vous guider dans votre projet immobilier.
Fait à Paris - © 2017 - 2026 tous droits réservés Hosman