Ce bien a été vendu par Baptiste
Appartement de 69.0 m² à Sèvres
Ce bien est vendu
14 photos
Plan 2D

Bel Appartement familial - 68,5m² - Calme et Lumineux, 2 chambres, 1 jardin et 1 box - Rue Fréville le Vingt, Sèvres

Rue Fréville le Vingt, Sèvres - 3 pièces - 69.0 m² - 2 chambres

Voir la localisation

538 000 €

7 797 € / m²
Ce bien est vendu
14 photos
Plan 2D

Bel Appartement familial - 68,5m² - Calme et Lumineux, 2 chambres, 1 jardin et 1 box - Rue Fréville le Vingt, Sèvres Voir la localisation

Rue Fréville le Vingt, Sèvres - 3p - 2c - 69.0 m²

538 000 €

7 797 € / m²
Votre expert immobilier
Expert Hosman Baptiste
Prix de mise en vente 538 000 €
Type de bien Appartement
Surface Carrez 69 m²
Surface au Sol 69 m²
Étage RDC sur 3
Période de construction De 1970 à 1980
Nombre de pièces 3
Nombre de chambres 2

Prestations

Parking Cave Terrasse Fibre optique

L'œil de l'expert

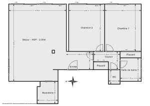
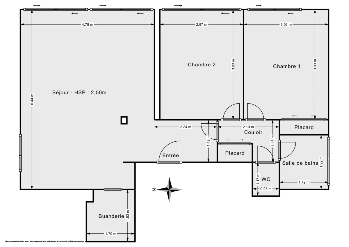
Hosman vous propose à la vente ce 3 pièces d'une surface de 68,5m² Carrez en bon état général, situé Rue Freville le Vingt, Sèvres

Cet appartement est situé au RDJ sur 2 étages d'une copropriété de 1975 très bien entretenue.

Ce bien, calme et lumineux bénéficie d'un plan étoile très facilement modifiable. Il se compose :
- d'une entrée avec rangements.
- d'une cuisine ouverte, aménagée et équipée +un espace buanderie.
- d'un séjour spacieux donnant sur un jardin / terrasse de 33m² exposée Est.
- d'une première chambre donnant sur jardin.
- d'une seconde chambre donnant aussi sur jardin.
- d'une salle de bain.
- d'un WC séparé.

Une cave et un box sont comprissent dans cette vente.

Système de chauffage : Collectif gaz
Production d'eau chaude : Collectif gaz

Les charges de copropriété s'élèvent à 350€ par mois, entretien des espaces verts, l'eau froide, l'eau chaude, le chauffage etc.

La taxe foncière est de 1500€.

Hosman s'efforce de réinventer l’agence immobilière en offrant un service innovant et transparent aux acheteurs et aux vendeurs.
Nos frais d'agence sont de 5900 euros fixes à la charge du vendeur.

Les + du bien

- Bon état général
- Bien lumineux
- Jardin
- Environnement calme
- Espace optimisé
- Une cave
- Box
- Proche de toutes les commodités
- Proximité créche, école et collègue 
- Quartier recherché

Nombre de salles de bain 1
Nombre de toilettes 1
Chauffage Collectif
Eau Collectif
Type de cuisine Ouverte
Exposition du séjour Est
Dépense énergétique
Performance énergétique (DPE)

A

B

C

D

E

F

384 kWh/m2 par an

G

Émissions de gaz à effet de serre (GES)

A

B

C

D

E

F

84 kg CO2/m2 par an

G

Localisation et quartier

Sèvres - Ville-d'Avray (à 390 m)

Financer ce bien

Prix du bien : 538 000 €
Frais de notaire indicatifs (7,5%)
Les frais de notaire dans l'ancien sont entre 7% et 8% du prix du bien
: 40 350 €
Montant total à financer : 578 350 €
Vos mensualités
/ mois
Taux de marché
Source : creditadvisor.fr - Novembre 2025
À durée égale, les taux varient fortement d'un prêt à l'autre et des critères qui entrent en jeu comme votre profil emprunteur, votre projet immobilier ou la négociation avec les banques.
%
Votre apport
Durée du prêt
ans

Soyez alerté quand de nouvelles annonces correspondent à votre recherche !

Votre expert immobilier
Expert Hosman Baptiste

Vous cherchez un bien ou souhaitez vendre votre bien à Sèvres ?

Consulter la page de notre agence immobilière à Sèvres

Vous avez un bien à vendre ?
Vous souhaitez vendre un bien immobilier ? N'hésitez pas à contacter nos experts pour effectuer l'estimation du bien immobilier concerné ou réalisez sans plus attendre une première estimation en ligne, totalement gratuite.
Estimation 100% gratuite et sans engagement !
visual product