Ravissant 2 pièces de 43 m² – Boulevard Félix Faure, Saint-Denis

Boulevard Félix Faure, Saint-Denis - 2 pièces - 43.0 m² - 1 chambre

Voir la localisation

180 000 €

4 186 € / m²
Réserver une visite
DPE D

Ravissant 2 pièces de 43 m² – Boulevard Félix Faure, Saint-Denis Voir la localisation

Boulevard Félix Faure, Saint-Denis - 2p - 1c - 43.0 m²

180 000 €

4 186 € / m²
Votre expert immobilier
Expert Hosman Thomas
Réserver une visite
Réservez votre visite en 1 clic !

Recevoir des biens similaires
Réserver une visite
Réservez votre visite en 1 clic !
Prix de mise en vente 180 000 €
Type de bien Appartement
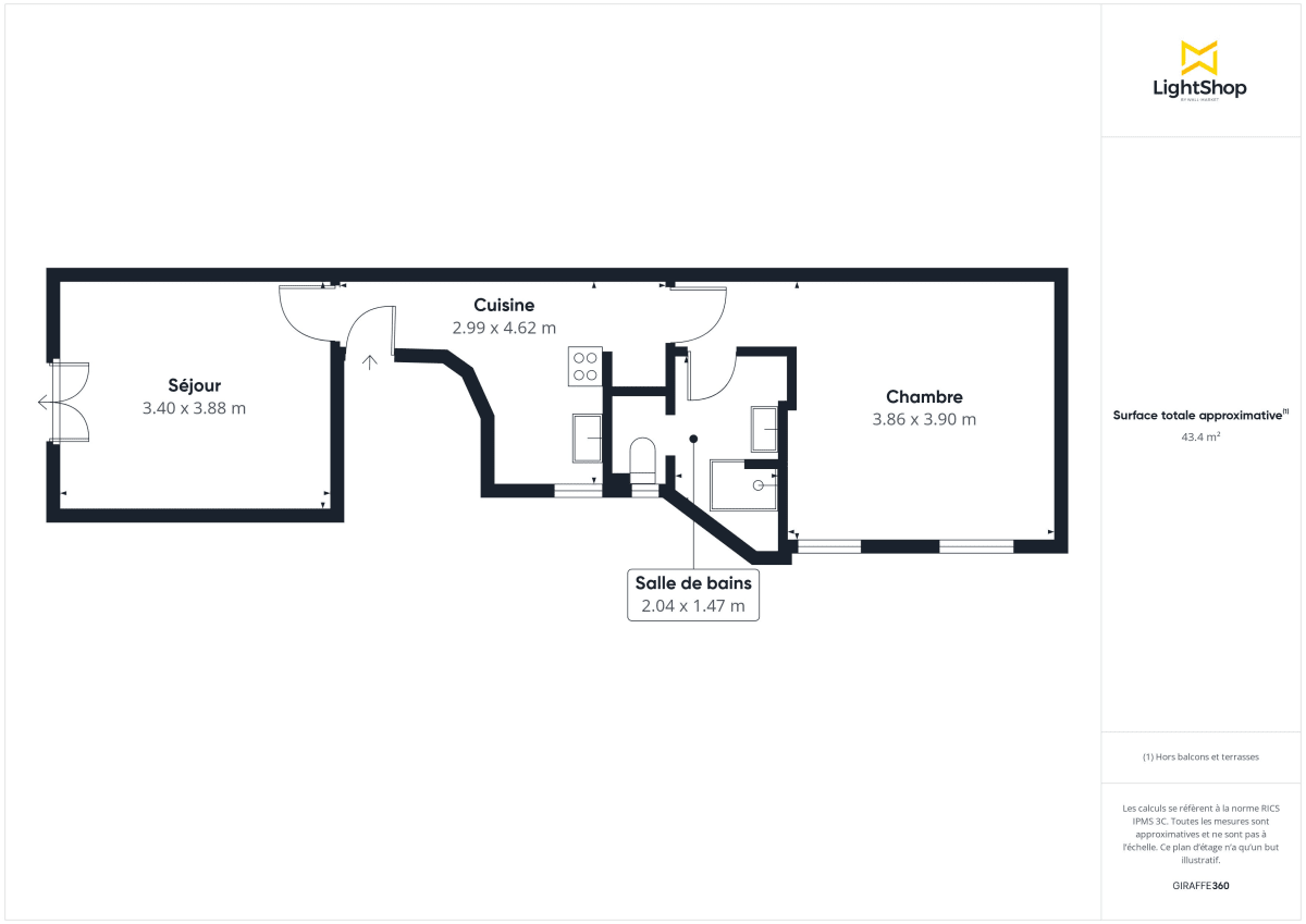
Surface Carrez 43 m²
Surface au Sol 43 m²
Étage 2 sur 4
Période de construction De 1914 à 1947
Nombre de pièces 2
Nombre de chambres 1

Prestations

Cave

L'œil de l'expert

L’appartement est situé au 2ᵉ étage d’un immeuble de caractère datant de 1900, sur le boulevard Félix Faure. Il présente une surface Carrez de 42,55m² (42,92m² au sol) et bénéficie d’une exposition plein sud, apportant une bonne luminosité.

Planifiez facilement votre visite en choisissant le créneau qui vous convient depuis le site d’Hosman.

Il comprend une pièce de vie avec parquet et moulures, une cuisine séparée équipée, une salle de bain avec douche à l’italienne et WC, ainsi qu’une chaudière à gaz individuelle installée en 2023.
La chambre, située côté cour, dispose d’un dressing intégré.

Une cave est rattachée au bien.

Le chauffage et l’eau chaude fonctionnent par un système individuel au gaz.
La taxe foncière est de 680 € par an.
Les charges de copropriété s’élèvent à 215 € par trimestre.

Le bien se situe à proximité immédiate des commerces, restaurants et infrastructures culturelles du boulevard Félix Faure.
Le parc de la Légion d’Honneur se trouve à quelques minutes.
Des établissements scolaires (maternelle et primaire) sont accessibles à pied.
La ligne 13 et une station de tramway se situe à proximité, permettant un accès rapide à Paris et aux quartiers voisins.

Le bien est soumis au statut de copropriété.

Les frais d’agence Hosman, d’un montant de 6 900 €, sont à la charge du vendeur.
Les professionnels de l’immobilier (agents, mandataires, chasseurs) peuvent collaborer sur cette annonce.

Les + du bien

Salle de bain récente
Exposition du séjour recherchée
Idéalement agencé - pas de perte d'espace
Pas de vis-à-vis direct
Traversant
Chambre sur cour
Proche des transports en commun
Proche des commerces

Nombre de salles de bain 1
Nombre de toilettes 1
Chauffage Individuel - Gaz
Eau Individuel (gaz)
Type de cuisine Semi-ouverte
Exposition du séjour Sud
Dépense énergétique
Performance énergétique (DPE)

A

B

C

D

179 kWh/m2 par an

E

F

G

Émissions de gaz à effet de serre (GES)

A

B

C

D

37 kg CO2/m2 par an

E

F

G

Votre expert Hosman

Logement très performant : faible consommation énergétique.

Localisation et quartier

Street view
Basilique de Saint-Denis (à 130 m)
Marché de Saint-Denis (à 220 m)
Baudelaire (à 400 m)
Cimetière de Saint-Denis (à 410 m)

Financer ce bien

Prix du bien : 180 000 €
Frais de notaire indicatifs (7,5%)
Les frais de notaire dans l'ancien sont entre 7% et 8% du prix du bien
: 13 500 €
Montant total à financer : 193 500 €
Vos mensualités
/ mois
Taux de marché
Source : creditadvisor.fr - Octobre 2025
À durée égale, les taux varient fortement d'un prêt à l'autre et des critères qui entrent en jeu comme votre profil emprunteur, votre projet immobilier ou la négociation avec les banques.
%
Votre apport
Durée du prêt
ans

Soyez alerté quand de nouvelles annonces correspondent à votre recherche !

Votre expert immobilier
Expert Hosman Thomas
Réserver une visite
Réservez votre visite en 1 clic !

Recevoir des biens similaires

Vous cherchez un bien ou souhaitez vendre votre bien à Saint-Denis ?

Consulter la page de notre agence immobilière à Saint-Denis

Vous avez un bien à vendre ?
Vous souhaitez vendre un bien immobilier ? N'hésitez pas à contacter nos experts pour effectuer l'estimation du bien immobilier concerné ou réalisez sans plus attendre une première estimation en ligne, totalement gratuite.
Estimer mon bien
Estimation 100% gratuite et sans engagement !
visual product