Rare ! 6 pièces de 132 m² - Balcon - DPE D - Franklin Roosevelt - Rue de Ponthieu, Paris 8

Paris - 6 pièces - 125.28 m² - 4 chambres

Voir la localisation

1 650 000 €

12 487 € / m²
Votre agent Hosman

Thomas Rol

07 65 19 01 04

Informations clés

Prix de mise en vente 1 650 000 €
Type de bien Appartement
Surface Carrez 125,28 m²
Surface au Sol 132,14 m²
Étage 2 sur 5
Nombre de pièces 6
Nombre de chambres 4
Période de construction De 1948 à 1969

Prestations

Ascenseur
Cave
Balcon

L'œil de l'agent

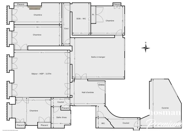
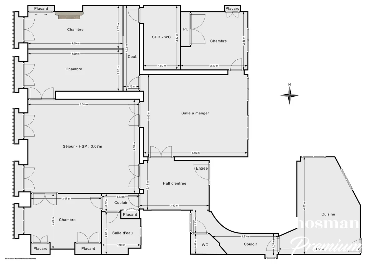
Situé au 2ème étage sur 5 avec ascenseur d'un bel immeuble Haussmannien, cet appartement traversant offre une surface de 126 m² Carrez et de 132 m² au sol, avec une hauteur sous plafond de 3,07m. Exposé plein sud, il bénéficie d'une excellente luminosité grâce à ses grandes ouvertures. Le bien se compose de six pièces, 4 chambres et d'un balcon de 7m2.

L'agencement propose une entrée qui dessert un grand double séjour de 46m2 ainsi qu'une cuisine séparée. La partie nuit est composée de quatre chambres et de deux salles de bains. Surfaces des chambres : 10,5m2 - 9,5m2 - 9,5m2 - 8,5m2.

La taxe foncière annuelle est de 2600 €. Une cave complète le bien. Charges trimestrielles de copropriété 1 149€.

La localisation au 48 Rue de Ponthieu, Paris 8, vous place à proximité de nombreuses commodités. Des commerces, restaurants, et infrastructures culturelles sont accessibles. Les espaces verts incluent le magnifique Parc Monceau non loin de là. Les établissements scolaires tels que l'école maternelle d'Anjou, l'école primaire La Boétie, les collèges Fénelon et Gustave Gréard se trouvent à proximité. Les transports en commun sont aisément accessibles avec les stations de métro Saint-Philippe-du-Roule (ligne 9), Franklin Roosevelt (lignes 1 & 9) à environ 2 minutes à pied et Champs-Elysées Clémenceau (lignes 1 & 13).

Hosman s'efforce de réinventer l'agence immobilière en offrant un service innovant et transparent aux acheteurs et aux vendeurs. Nos frais d'agence sont de 33000 euros au pourcentage à la charge du vendeur. Si vous êtes un professionnel de l'immobilier (agent, mandataire ou chasseur immobilier), sachez que toutes les annonces Hosman sont ouvertes à la collaboration. N'hésitez pas à nous contacter pour en discuter.

Les + du bien

Immeuble Haussmannien
Balcon exposé plein Sud
Très belle hauteur sous plafond
Copropriété bien entretenue
Présence d'une cave
DPE D

Intérieur

Nombre de salles de bain 2
Nombre de toilettes 2
Chauffage Individuel - Gaz
Eau Individuel (gaz)
Type de cuisine Séparée
Exposition du séjour Sud

Dépense énergétique

Performance énergétique (DPE)

A
B
C
D
228
kWh/m2 par an
E
F
G

Émissions de gaz à effet de serre (GES)

A
B
C
D
49
kg CO2/m2 par an
E
F
G
Votre agent Hosman

Logement très performant : faible consommation énergétique.

Localisation et quartier

Saint-Philippe du Roule (à 210 m)
Transport
Franklin D. Roosevelt (à 270 m)
Transport Transport
George V (à 480 m)
Transport
<span class="translation_missing" title="translation missing: fr.advert_map_alt">Advert Map Alt</span>

Financer ce bien

Prix du bien : 1 650 000 €

Frais de notaire indicatifs (7,5%)
Les frais de notaire dans l'ancien sont entre 7% et 8% du prix du bien

123 750 €

Montant total à financer :

1 773 750 €

Vos mensualités

/ mois
Taux de marché

Source : creditadvisor.fr - Mai 2026

À durée égale, les taux varient fortement d'un prêt à l'autre et des critères qui entrent en jeu comme votre profil emprunteur, votre projet immobilier ou la négociation avec les banques.

%

ans

Soyez alerté quand de nouvelles annonces correspondent à votre recherche !

Vous cherchez un bien ou souhaitez vendre votre bien à Paris 8 ?

Consulter la page de notre agence immobilière à Paris 8

Photo 1 - Appartement 125.28 Paris
Photo 2 - Appartement 125.28 Paris
Photo 3 - Appartement 125.28 Paris
Photo 4 - Appartement 125.28 Paris
Photo 5 - Appartement 125.28 Paris
Photo 6 - Appartement 125.28 Paris
Photo 7 - Appartement 125.28 Paris
Photo 8 - Appartement 125.28 Paris
Photo 9 - Appartement 125.28 Paris
Photo 10 - Appartement 125.28 Paris
Photo 11 - Appartement 125.28 Paris
Photo 12 - Appartement 125.28 Paris
Photo 13 - Appartement 125.28 Paris
Photo 14 - Appartement 125.28 Paris
Plan 2D - Appartement 125.28 Paris

Vous avez un bien à vendre ?

Vous souhaitez vendre un bien immobilier ? N'hésitez pas à contacter nos agents pour effectuer l'estimation du bien immobilier concerné ou réalisez sans plus attendre une première estimation en ligne, totalement gratuite.

Estimer mon bien

Estimation 100% gratuite et sans engagement !

visual product
Découvrez La Boussole,
le point immo par Hosman.
Recevez un décryptage du marché et des conseils d'agents pour vous guider dans votre projet immobilier.
Fait à Paris - © 2017 - 2026 tous droits réservés Hosman