Ce bien a été vendu par Léopold
Appartement de 104.26 m² à Paris
17 photos
Plan 2D

Appartement familial - 104.26 m2 - 3ème étage, Lumineux et Calme - Ternes (Ligne 2) - Rue de l'Étoile, Paris 17ème

Rue de l'Étoile, Paris - 4 pièces - 104.26 m² - 3 chambres

Voir la localisation

1 295 000 €

12 421 € / m²
Votre agent Hosman

Léopold Nouveau

01 84 80 61 19


Informations clés

Prix de mise en vente 1 295 000 €
Type de bien Appartement
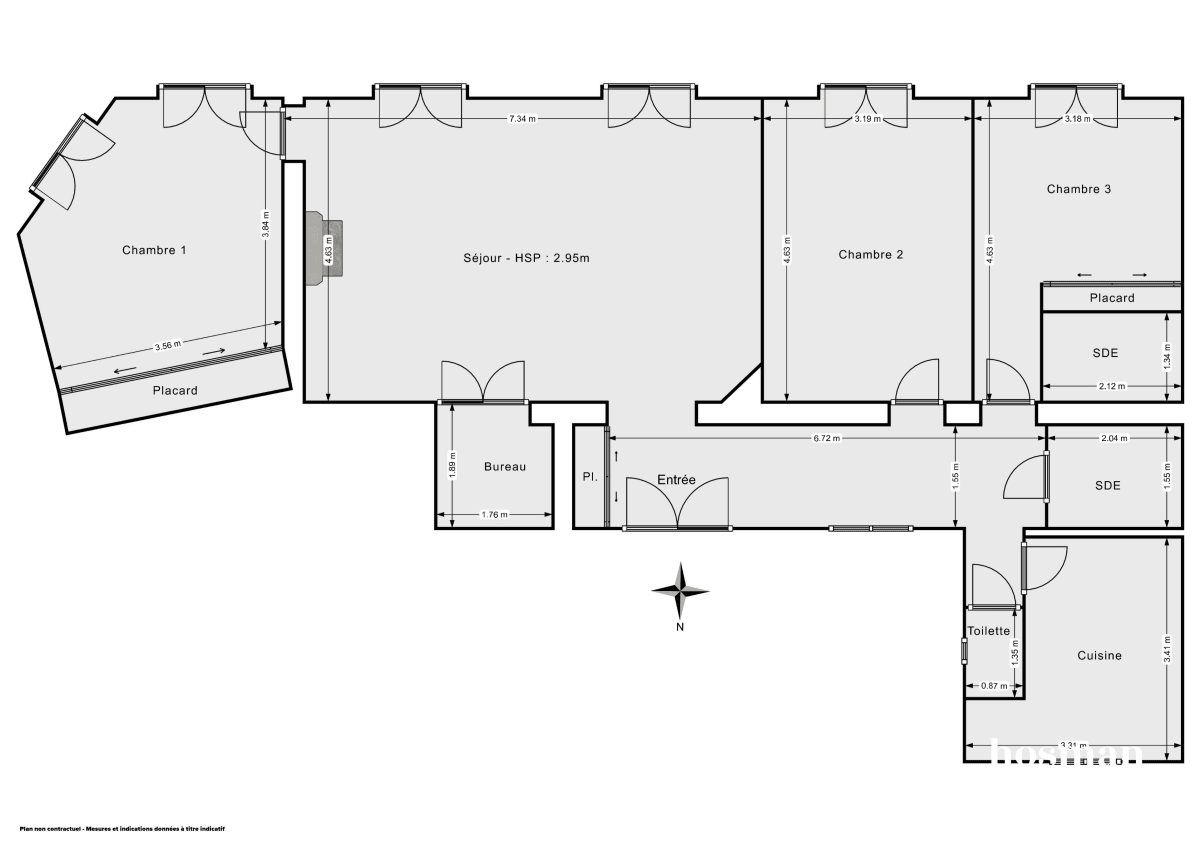
Surface Carrez 104,26 m²
Surface au Sol 106,29 m²
Étage 3 sur 6
Nombre de pièces 4
Nombre de chambres 3
Période de construction De 1850 à 1913

Prestations

Ascenseur
Chambre de service
Cave

L'œil de l'agent

Hosman vous propose à la vente ce beau 4 pièces d'une surface de 104.26 m2 Carrez, situé Rue de l'Étoile à Paris 17ème.

L’appartement est situé au 3ème étage sur 6, avec ascenseur d'un immeuble de 1880 bien entretenu et sécurisé par un gardien.

Le bien se compose :
- d'une entrée de 11m2 avec des rangements intégrés.
- d'un séjour de 32m2, exposé Sud donnant sur la rue de l'Étoile, avec du parquet en chêne et d'une cheminée décorative.
- d'un espace bureau de 3m2 aménagé.
- de 3 chambres d’une surface de 12.2 m2, 13.2m2 et 16,6m2m2, munies de placards intégrés.
- d’une cuisine séparée de 8.4m2 fonctionnelle et toute équipée.
- d’une salle de bain de 3,1 m2, équipée d’une simple vasque et d'une douche
- d'une seconde salle d'eau attenante à l'une des chambres.
Ce bien comporte également des toilettes séparées.

Une cave de 6m2 et une chambre de service de 6,7m2 (accessible par ascenseur). complètent ce bien.
Possibilité de louer un parking pour 150€/mois.

Le bien se situe à 5 minute de la station Ternes (Ligne 2) et à 7 minutes à pied de la station Charles de Gaulle Etoile (Ligne 1-2-6 et RER A). La place de l'Étoile est à 7 minutes à pied. La porte Maillot est à 5 minutes en voiture.

Le système de chauffage est individuel au gaz.

Les charges de copropriété s'élèvent à 915 € par trimestre (incluant l'eau froide, l'ascenseur, et l'entretien des parties communes).
La taxe foncière est de 1 547€.

Le bien est soumis au statut de copropriété.

Hosman s'efforce de réinventer l’agence immobilière en offrant un service innovant et transparent aux acheteurs et aux vendeurs.
Nos frais d'agence sont de 8900 euros fixes à la charge du vendeur.

Les + du bien

- 3ème étage sur 6, avec ascenseur
- Lumineux, exposition Sud
- Charme de l'ancien, confort du contemporain
- Proche des Ternes et de l'Étoile
- 3 chambres
- Grand séjour
- Espace bureau aménagé
- Gardien
- Cave
- Chambre de service au 6eme étage, desservie par ascenseur

Intérieur

Nombre de salles de bain 2
Nombre de toilettes 1
Chauffage Individuel - Gaz
Eau Individuel (gaz)
Type de cuisine Séparée
Exposition du séjour Sud

Dépense énergétique

Performance énergétique (DPE)

A
B
C
111
kWh/m2 par an
D
E
F
G

Émissions de gaz à effet de serre (GES)

A
B
C
D
26
kg CO2/m2 par an
E
F
G
Votre agent Hosman

Logement très performant : faible consommation énergétique.

Localisation et quartier

Ternes (à 240 m)
Transport
Charles-de-Gaulle Étoile (à 290 m)
Transport Transport Transport Transport
Argentine (à 440 m)
Transport
<span class="translation_missing" title="translation missing: fr.advert_map_alt">Advert Map Alt</span>

Financer ce bien

Prix du bien : 1 295 000 €

Frais de notaire indicatifs (7,5%)
Les frais de notaire dans l'ancien sont entre 7% et 8% du prix du bien

97 125 €

Montant total à financer :

1 392 125 €

Vos mensualités

/ mois
Taux de marché

Source : creditadvisor.fr - Mai 2026

À durée égale, les taux varient fortement d'un prêt à l'autre et des critères qui entrent en jeu comme votre profil emprunteur, votre projet immobilier ou la négociation avec les banques.

%

ans

Soyez alerté quand de nouvelles annonces correspondent à votre recherche !

Vous cherchez un bien ou souhaitez vendre votre bien à Paris 17 ?

Consulter la page de notre agence immobilière à Paris 17

Photo 1 - Appartement 104.26 Paris
Photo 2 - Appartement 104.26 Paris
Photo 3 - Appartement 104.26 Paris
Photo 4 - Appartement 104.26 Paris
Photo 5 - Appartement 104.26 Paris
Photo 6 - Appartement 104.26 Paris
Photo 7 - Appartement 104.26 Paris
Photo 8 - Appartement 104.26 Paris
Photo 9 - Appartement 104.26 Paris
Photo 10 - Appartement 104.26 Paris
Photo 11 - Appartement 104.26 Paris
Photo 12 - Appartement 104.26 Paris
Photo 13 - Appartement 104.26 Paris
Photo 14 - Appartement 104.26 Paris
Photo 15 - Appartement 104.26 Paris
Photo 16 - Appartement 104.26 Paris
Plan 2D - Appartement 104.26 Paris

Vous avez un bien à vendre ?

Vous souhaitez vendre un bien immobilier ? N'hésitez pas à contacter nos agents pour effectuer l'estimation du bien immobilier concerné ou réalisez sans plus attendre une première estimation en ligne, totalement gratuite.

Estimer mon bien

Estimation 100% gratuite et sans engagement !

visual product
Découvrez La Boussole,
le point immo par Hosman.
Recevez un décryptage du marché et des conseils d'agents pour vous guider dans votre projet immobilier.
Fait à Paris - © 2017 - 2026 tous droits réservés Hosman